Chitila 10000 mp

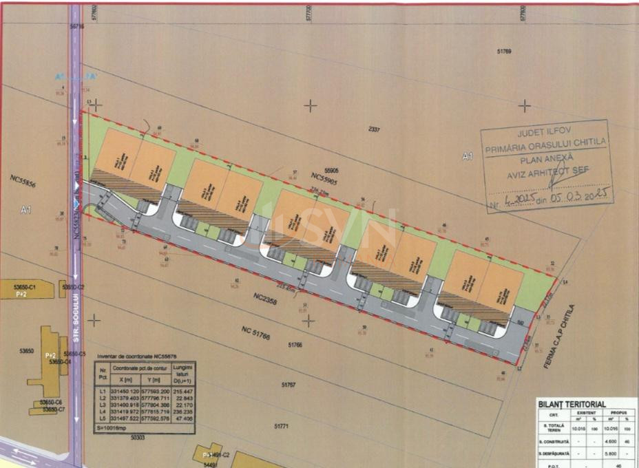
Vanzare teren industrial Chitila - Centura - Rudeni - Macului, Ilfov. Imobilul este compus din teren suprafata 10.000mp, deschidere 47ml la strada asfaltata. Terenul se vinde cu autorizatie de construire, viitoarea contructie va fi formata din 10 cladiri cu suprafata totala desfasurata de 5.100mp(hale-4.100mp, birouri - 1.000mp). Terenul se preteaza pentru construire de cladiri cu activitati de depozitare/industriale/logistice.

Deschidere stradala 42

Suprafata 10000 mp

Disponibila incepand cu 2025-11-06

Judet Bucuresti

Oras/ Sector Sector 1

Zona Chitila

Gps lat 44.479755

Gps lng 25.973832

Valoare proprietate (€)

Perioada (ani)

Procent avans (120.000 €)


Suma creditata 680.000

Dobanda 4.9%

Rata lunara 16.812 lei

Broker Imobiliar

Elefteria Ciota , Consultant imobiliar Vezi toate proprietatile

0317100200

teren industrial I Chitila - Rudeni I

Pret vanzare
800.000 €

Telefon Consultant imobiliar
0317100200

Cod: REL4001215

Proprietati similare

Bucuresti, Bucurestii Noi, Damaroaia

Teren 2000 mp

800.000 EUR

Detalii

Bucuresti, Militari, Grozavesti

Teren 475 mp

736.000 EUR

Detalii
Exclusiv

Bucuresti, Dorobanti, Primaverii

Teren 415 mp

849.000 EUR

Detalii
Exclusiv Discount

Bucuresti, Dacia, Polona

Teren 1060 mp

750.000 EUR

Detalii

Bucuresti, Pipera

Teren 2834 mp

750.000 EUR

Detalii
Terenuri vandute in Bucurestii Noi, Bucuresti Terenuri de vanzare in Bucurestii Noi, Bucuresti

Afla primul de cele mai bune oferte
inainte sa ajunga pe piata

Aboneaza-te la newsletter

Aboneaza-te la notificari