Floreasca 490 mp

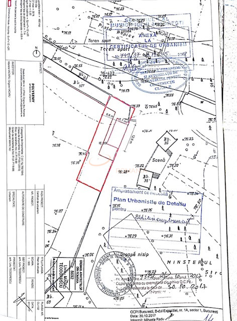
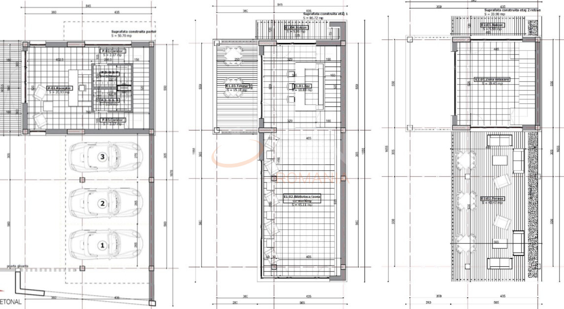
Echipa SVN Romania va prezinta un teren de 490 de mp in zona Floreasca, cu posibilitatea de a construi S+P+2E +M sau S+P+1E+2R conform certificatului de urmanism de contruire.

Accesul la teren se fare pe un drum asfaltat avand o deschidere generoasa deb 13 ml

Terenul prezentat este localizat in Sectorul 1 al Bucurestiului in cea mai cautata zona pentru locuinte cu acces facil la mijloacele de transport in comun si cu posibilitatea de comstruire conform PUZ zonei.

Deschidere stradala 13 m

Suprafata 490 mp

POT 30

CUT 0.35

Disponibila incepand cu 2022-11-11

Judet Bucuresti

Oras/ Sector Sector 2

Zona Floreasca

Gps lat 44.472799

Gps lng 26.100349

Teren Floreasca Lac 490 mp

Proprietate vanduta

Ai o proprietate similara? Vinde-o cu noi.
Vinde apartament

Cod: REL4000541

Proprietati similare

Bucuresti, 1 Mai, Domenii

Teren 363 mp

645.000 EUR

Detalii

Bucuresti, Pipera

Teren 3130 mp

657.300 EUR

Detalii
Terenuri vandute in Floreasca, Bucuresti Terenuri de vanzare in Floreasca, Bucuresti

Afla primul de cele mai bune oferte
inainte sa ajunga pe piata

Aboneaza-te la newsletter

Aboneaza-te la notificari