Damaroaia 3 camere 63 mp 2 2023

SVN Romania va propune spre inchiriere un apartament nou cu 3 camere, situat in ansamblul rezidential Escape Synergy, Bucuresti.

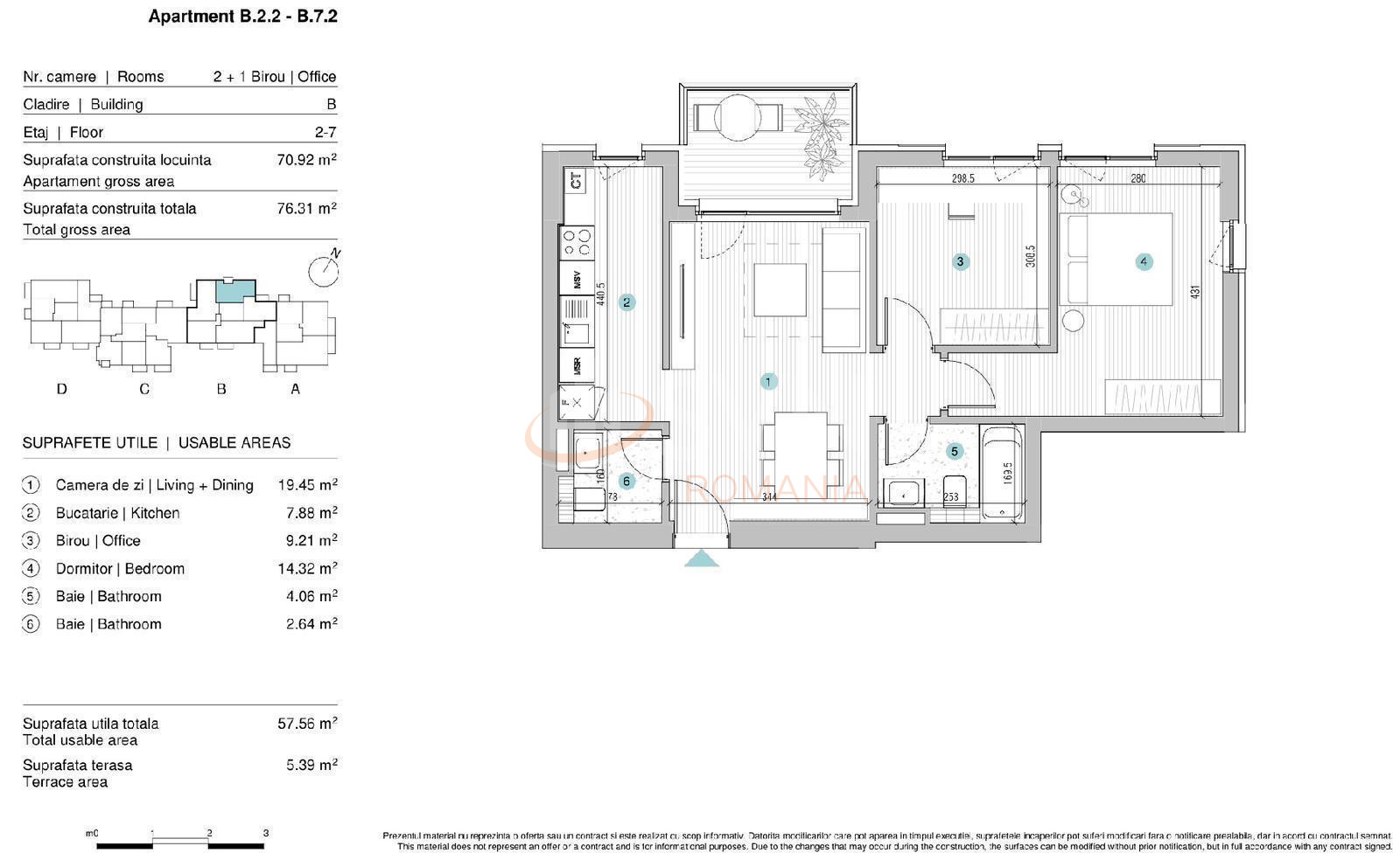
Proprietatea are o suprafata utila de 57,56 mp, completata de o terasa de 5,39 mp, fiind amplasata la etajul 2 din 7 intr-un imobil finalizat in 2023.

? Compartimentare: living cu zona de dining, bucatarie separata, 2 dormitoare si 2 bai.
? Dotari premium: electrocasnice Bosch, TV, aer conditionat, masina de spalat + uscator, mobilier modern si finisaje de calitate.
? Facilitati suplimentare: boxa de 4 mp la subsol si loc de parcare exterior inclus.

? Locatie excelenta, cu acces rapid la mijloace de transport, zone comerciale si parcuri.
Ideal pentru familie, cuplu sau pentru cei care lucreaza remote.

Pentru mai multe detalii ,nu ezitati sa ne contactati !

An constructie 2023

Suprafata construita 73 mp

Suprafata utila 63 mp

Regim Inaltime 2 / 7

Etaj 2

Nr. camere 3 camere

Nr. bai 2

Nr. balcoane 0 balcoane

Confort 1

Compartimentare Semidecomandat

Tip constructie In bloc

Status constructie Finalizat

Disponibila incepand cu 2025-09-15

Judet Bucuresti

Oras/ Sector Sector 1

Zona Damaroaia

Gps lat 44.487867

Gps lng 26.065727

Interfon

Geamuri termopan

Parchet

Boxa

Gresie

Faianta

Loc parcare exterior

Calorifere

Mobilat

Aer conditionat

Bucatarie mobilata

Lift

Broker Imobiliar

Nicoleta Baroianu , Consultant imobiliar Vezi toate proprietatile

0317100200

APARTAMENT 3 CAMERE I DE INCHIRIAT I COMPLEX ESCAPE SYNERGY.

Pret inchiriere
800 € /luna

Telefon Consultant imobiliar
0317100200

Cod: REA1025457

Proprietati similare

Bucuresti, Kiseleff, Piata Presei Libere

Apartament, 3 camere

70 mp 5 2000

850 EUR/luna

Detalii

Bucuresti, Bucurestii Noi

Apartament, 3 camere

87 mp 2 2010

750 EUR/luna

Detalii

Bucuresti, 1 Mai

Apartament, 3 camere

70 mp 8 1977

750 EUR/luna

Detalii

Bucuresti, Aviatiei

3 camere cu loc parcare subteran inclus

74 mp 4 2022

850 EUR/luna

Detalii

Bucuresti, Baneasa, Sisesti

Apartament, 3 camere

80 mp 1 2021

850 EUR/luna

Detalii

Bucuresti, Floreasca

Apartament, 3 camere

65 mp P 1986

750 EUR/luna

Detalii

Bucuresti, Pipera

Apartament, 3 camere

82 mp 4 2010

750 EUR/luna

Detalii

Bucuresti, Pipera

Apartament, 3 camere

66.3 mp 1 2025

800 EUR/luna

Detalii
Apartamente 3 camere inchiriate in Bucurestii Noi, Bucuresti Apartamente 3 camere de inchiriere in Bucurestii Noi, Bucuresti

Afla primul de cele mai bune oferte
inainte sa ajunga pe piata

Aboneaza-te la newsletter

Aboneaza-te la notificari