Domenii 2 camere 59.35 mp P 2019

SVN Residentialist Pipera va propune spre inchiriere un apartament cu 2 Camere de inchiriat, in zona Domenii.

Imobilul este situat in cartierul Domenii, intre Bd. Ion Mihalache, Piata Chibrit si Bd. Expozitiei, cu acces facil la metrou, tramvaie si autobuze.

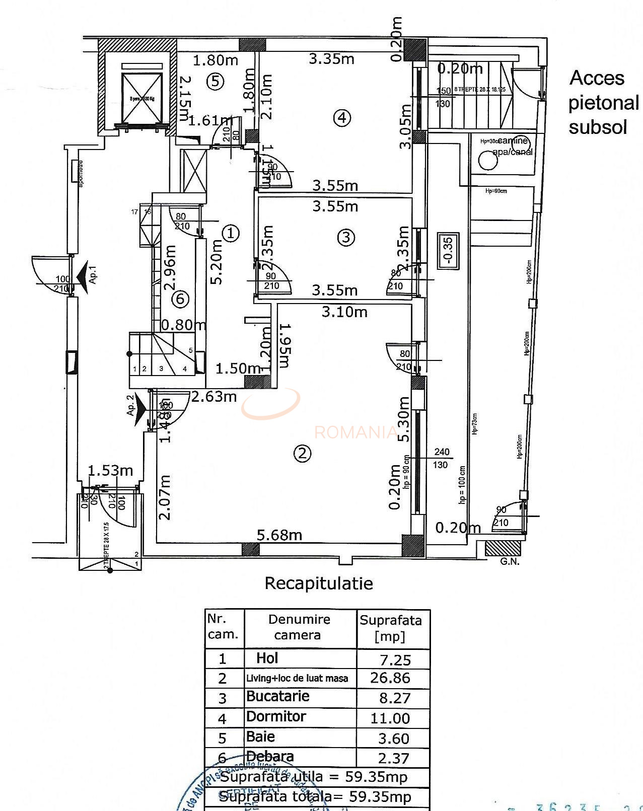
Apartamentul se afla intr-un imobil nou S+P+3E modern, avand suprafata utila de 59 mp si o curte cu terasa in suprafata de 24 mp.

Apartamentul este dotat cu centrala termica in condensatie Viessman Vitodens 050-W pe gaz, incalzire in pardoseala cu materiale Rehau-Germania si termostat in fiecare camera, aparate de aer conditionat tip inverter 12000 BTU model Meister in fiecare camera, usi blindate tip Defender clasa 3 antiefractie la intrarea in apartamente si usi interioare Revo Ambra cu balamale ascunse si broasca magnetica, produse in Italia.

Pretul de inchiriere al apartamentului este de 770 euro/luna.

Imobilul este prevazut cu garaj subteran pentru 7 autoturisme si o parcare exterioara in curte pentru alte 3 autoturisme, intrarea in parcari fiind asigurata cu porti batante, culisante si usa garaj automatizate tip Hormann. Chiria unui loc de parcare este de 85 Euro in garajul subteran.

Pentru mai multe detalii sau pentru a programa o vizionare nu ezitati sa ne contactati.

An constructie 2019

Suprafata construita 90 mp

Suprafata utila 59.35 mp

Suprafata terasa 24

Regim Inaltime P / 3

Etaj P

Nr. camere 2 camere

Nr. bai 1

Nr. balcoane 0 balcoane

Confort Lux

Compartimentare Semidecomandat

Tip constructie Bloc

Status constructie Finalizat

Disponibila incepand cu 2026-03-26

Judet Bucuresti

Oras/ Sector Sector 1

Zona Domenii

Gps lat 44.470790

Gps lng 26.057529

Nr. terase 1

Interfon

Internet Wireless

Internet prin fibra optica

Internet prin cablu

Curent electric

Cablu TV

Detector de gaze

Geamuri termopan

Parchet

Apometre

Gresie

Loc parcare subteran

Faianta

Gaz

Loc parcare exterior

Incalzire prin pardoseala

Incalzire proprie

Mobilat

Aer conditionat

Bucatarie mobilata

Lift

Broker Imobiliar

Larisa Uruc , Consultant imobiliar Vezi toate proprietatile

0730177259

Apartament 2 Camere Modern I Domenii I Terasa 24 MP I De Inchiriat

Pret inchiriere
770 € /luna

Telefon Consultant imobiliar
0730177259

Cod: REA1017802

Proprietati similare

Bucuresti, 1 Mai, Domenii

Apartament, 2 camere

55 mp 7 2020

700 EUR/luna

Detalii

Bucuresti, Kiseleff

2 camere cu loc parcare subteran inclus

50 mp 1 2020

700 EUR/luna

Detalii

Bucuresti, 1 Mai, Domenii

2 camere cu loc parcare subteran inclus

60 mp 1 2021

750 EUR/luna

Detalii

Bucuresti, 1 Mai, Domenii

2 camere cu loc parcare subteran inclus

60 mp 10 2021

800 EUR/luna

Detalii

Bucuresti, Bucurestii Noi

2 camere cu loc parcare subteran inclus

50 mp 3 2021

800 EUR/luna

Detalii

Bucuresti, Giulesti

2 camere cu loc parcare subteran inclus

59 mp 7 2024

720 EUR/luna

Detalii

Bucuresti, Bucurestii Noi, Straulesti

Apartament, 2 camere

50 mp 6 2024

800 EUR/luna

Detalii

Bucuresti, Militari, Grozavesti

Apartament, 2 camere

61 mp 3 2024

749 EUR/luna

Detalii
Apartamente 2 camere inchiriate in 1 Mai, Bucuresti Apartamente 2 camere de inchiriere in 1 Mai, Bucuresti

Afla primul de cele mai bune oferte
inainte sa ajunga pe piata

Aboneaza-te la newsletter

Aboneaza-te la notificari