Herastrau 4 camere 142.37 mp 9 2020

SVN Romania va invita sa descoperiti rafinamentul si eleganta unui apartament de 4 camere, situat in prestigiosul complex One Herastrau Park, una dintre cele mai exclusiviste zone din Bucuresti. Pozitionat la etajul 9 din 11, acest apartament nemobilat iti ofera libertatea de a-l amenaja dupa propriul stil, beneficiind in acelasi timp de finisaje premium si de o priveliste spectaculoasa.


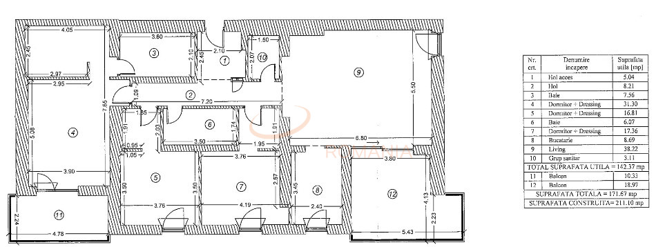
Suprafata utila totala: 142.37 mp
Living generos, perfect pentru relaxare sau socializare
Bucatarie separata, ideala pentru pasionatii de gatit
3 dormitoare spatioase, cu multa lumina naturala
3 bai moderne, cu finisaje premium
Terasa cu vedere panoramica asupra orasului

Avantaje & locatie:
Situat in zona Herastrau – Aviatiei, una dintre cele mai exclusiviste si bine cotate zone ale capitalei
Parcul Herastrau la doar cativa pasi, perfect pentru plimbari si sport in aer liber
Acces rapid catre centre de afaceri, restaurante fine dining, scoli internationale si zone comerciale
Complex rezidential modern, cu paza 24/7, receptie eleganta si servicii de top

Un apartament ideal pentru cei care isi doresc un stil de viata sofisticat, confort si acces la toate facilitatile unui cartier premium.

Contactati-ma pentru mai multe detalii si programarea unei vizionari!

An constructie 2020

Suprafata construita 211.1 mp

Suprafata utila 142.37 mp

Suprafata terasa 19 mp

Regim Inaltime 9 / 11

Etaj 9

Nr. camere 4 camere

Nr. bai 3

Nr. balcoane 0 balcoane

Confort Lux

Compartimentare Decomandat

Tip constructie In bloc

Status constructie Finalizat

Disponibila incepand cu 2025-04-04

Judet Bucuresti

Oras/ Sector Sector 1

Zona Herastrau

Gps lat 44.458468

Gps lng 26.100861

Nr. terase 2

Sistem de alarma

Detector de gaze

Cablu TV

Supraveghere video

Curent electric

Supraveghere 24/7

Internet prin fibra optica

Internet Wireless

Interfon

Geamuri termopan

Parchet

Apometre

Gresie

Telefon

Loc parcare subteran

Faianta

Gaz

Incalzire proprie

WC serviciu

Lift

Broker Imobiliar

Raluca Dobrisan , Consultant imobiliar Vezi toate proprietatile

0317100200

Apartament 4 Camere l One Herastrau Park I 2 Locuri de Parcare

Pret inchiriere + TVA
2.990 € /luna

Telefon Consultant imobiliar
0317100200

Cod: REA1023049

Proprietati similare

Bucuresti, Dorobanti

Apartament, 4 camere

210 mp 1 2005

2.800 EUR/luna

Detalii

Bucuresti, Dorobanti

Apartament, 4 camere

136 mp 2 2014

2.800 EUR/luna

Detalii

Bucuresti, Dorobanti, Primaverii

Apartament, 4 camere

177 mp 3 2009

3.000 EUR/luna

Detalii
Exclusiv Discount

Bucuresti, Dorobanti, Primaverii

Apartament, 4 camere

150 mp 1 1960

2.700 EUR/luna

Detalii

Bucuresti, Kiseleff

4 camere cu loc parcare subteran inclus

137 mp 4 2012

3.000 EUR/luna

Detalii

Bucuresti, Floreasca

4 camere cu loc parcare subteran inclus

150.84 mp 5 2023

3.000 EUR/luna

Detalii

Bucuresti, Floreasca

4 camere cu loc parcare subteran inclus

146 mp 1 2016

2.950 EUR/luna

Detalii

Bucuresti, Ultracentral, Cismigiu

Apartament, 4 camere

130 mp 4 2018

3.000 EUR/luna

Detalii
Apartamente 4 camere inchiriate in Herastrau, Bucuresti Apartamente 4 camere de inchiriere in Herastrau, Bucuresti

Afla primul de cele mai bune oferte
inainte sa ajunga pe piata

Aboneaza-te la newsletter

Aboneaza-te la notificari