Kiseleff 4 camere 140 mp 1 1940

SVN Residentialist vine in intampinarea dv. cu o oportunitate unica de inchiriere intregul etaj al unei vile interbelice de 4 camere, ideala pentru spatiu de birouri.

Aceasta vila ofera un loc ideal pentru desfasurarea activitatii dvs. intr-o zona exclusivista, situata in inima Capitalei, in apropierea Parcului Kiseleff si la doar 8 minute de statia de metrou Aviatorilor.


Iata cateva dintre caracteristicile cheie ale acestei proprietati:

Recent Renovata: Vila a fost recent renovata, asigurand conditii moderne si un mediu proaspat pentru activitatea dvs.

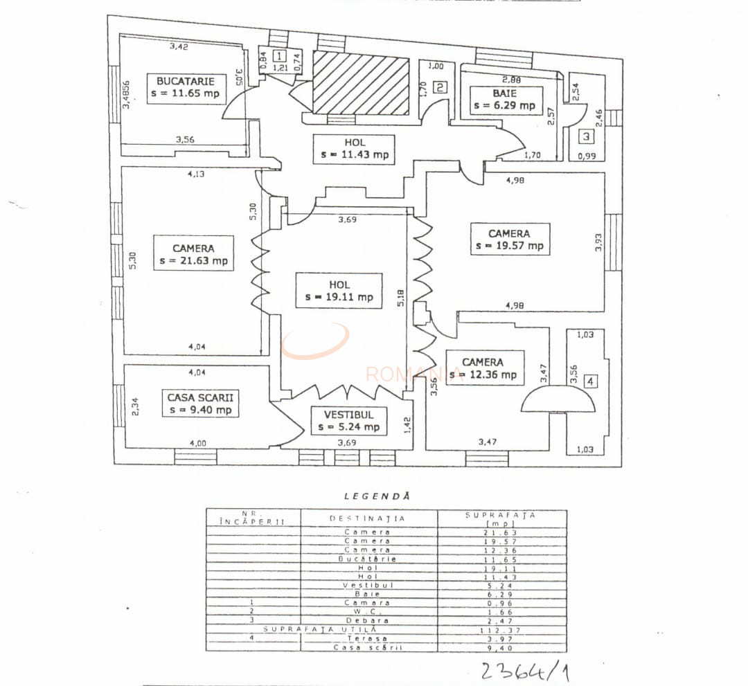
Spatioasa si Cu Spatii de Depozitare: Cu 4 camere, vila ofera spatiu generos si spatii de depozitare suplimentare pentru documente si echipamente.

Luminoasa: Cu lumina naturala generoasa, aceasta vila creeaza un mediu de lucru placut si productiv.

Terasa si Curte: Vila dispune de o terasa si o curte, oferind un spatiu ideal pentru pauzele de lucru si intalniri in aer liber.

Aceasta vila reprezinta un loc ideal pentru desfasurarea activitatii dvs. intr-o zona linistita si prestigioasa din Bucuresti. Este potrivita atat pentru birouri mici, cat si pentru companii care doresc sa aiba un spatiu reprezentativ.

Pentru mai multe informatii si pentru a programa o vizionare, va rugam sa ne contactati. Suntem aici pentru a va ajuta sa gasiti spatiul de birouri ideal pentru nevoile dvs.

Nu ratati ocazia de a lucra intr-o ambianta cu aer clasic, intr-o zona de prestigiu din Bucuresti.

An constructie 1940

Suprafata construita 160 mp

Suprafata utila 140 mp

Suprafata terasa 8 mp

Regim Inaltime 1 / 1

Etaj 1

Nr. camere 4 camere

Nr. bai 2

Nr. balcoane 1 balcon

Confort 1

Compartimentare Decomandat

Tip constructie In bloc

Status constructie Finalizat

Disponibila incepand cu 2024-02-07

Judet Bucuresti

Oras/ Sector Sector 1

Zona Kiseleff

Gps lat 44.462232

Gps lng 26.083061

Internet Wireless

Supraveghere video

Interfon

Supraveghere 24/7

Curent electric

Sistem de alarma

Geamuri termopan

Repartitoare

Parchet

Apometre

Boxa

Gresie

Telefon

Loc parcare subteran

Faianta

Gaz

Incalzire proprie

Calorifere

WC serviciu

Aer conditionat

Spatiu Birouri in Vila Interbelica Kiseleff

Proprietate inchiriata

Ai o proprietate similara? Vinde-o cu noi.
Vinde apartament

Cod: REA1016864

Proprietati similare

Bucuresti, Dorobanti

Apartament, 4 camere

160 mp 1 2005

3.200 EUR/luna

Detalii

Bucuresti, Herastrau

4 camere cu loc parcare subteran inclus

200 mp 4 2016

3.000 EUR/luna

Detalii

Bucuresti, Herastrau

4 camere cu loc parcare subteran inclus

215 mp 4 2003

2.750 EUR/luna

Detalii

Bucuresti, Floreasca, Barbu Vacarescu

4 camere cu loc parcare exterior inclus

199.46 mp 7 2009

2.750 EUR/luna

Detalii

Bucuresti, Herastrau

4 camere cu loc parcare subteran inclus

219.08 mp 4 2002

2.750 EUR/luna

Detalii

Bucuresti, Floreasca, Barbu Vacarescu

Apartament, 4 camere

200 mp 4 2008

2.800 EUR/luna

Detalii

Bucuresti, Herastrau

4 camere cu loc parcare subteran inclus

163 mp 2 2007

2.800 EUR/luna

Detalii

Bucuresti, Baneasa

4 camere cu loc parcare exterior inclus

280 mp 7 2010

2.800 EUR/luna

Detalii
Apartamente 4 camere inchiriate in Kiseleff, Bucuresti Apartamente 4 camere de inchiriere in Kiseleff, Bucuresti

Afla primul de cele mai bune oferte
inainte sa ajunga pe piata

Aboneaza-te la newsletter

Aboneaza-te la notificari