Pipera 2 camere 58 mp P 2025

SVN Residentialist Pipera va ofera spre Inchiriere un apartament cu 2 camerein Pipera – Residence 5 Forest Apartments, langa Scoala Americana

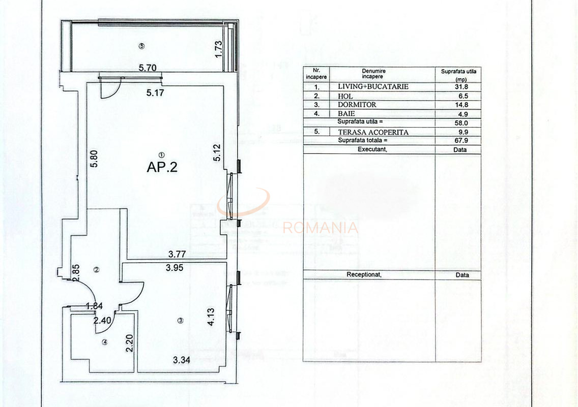
Apartamentul se afla la parter si are urmatoarea compartimentare: hol 6,5 mp, living cu bucatarie open space 31,8 mp, dormitor 14,8 mp, baie cu cabina de dus 4,9 mp, terasa acoperita si gradina proprie de aproximativ 40 mp.

Locuinta se inchiriaza complet mobilata si utilata, este la prima inchiriere si include loc de parcare subteran.

Pentru mai multe informatii sau pentru a stabili o vizionare, nu ezitati sa ma contactati!

An constructie 2025

Suprafata construita 65 mp

Suprafata utila 58 mp

Suprafata terasa 9.9 mp

Regim Inaltime P / 5

Etaj P

Nr. camere 2 camere

Nr. bai 1

Nr. balcoane 0 balcoane

Confort 1

Compartimentare Semidecomandat

Tip constructie In bloc

Status constructie Finalizat

Disponibila incepand cu 2026-02-26

Judet Bucuresti

Oras/ Sector Sector 1

Zona Pipera

Gps lat 44.518176

Gps lng 26.141757

Nr. terase 1

Curent electric

Interfon

Geamuri termopan

Parchet

Gresie

Loc parcare subteran

Faianta

Gaz

Incalzire prin pardoseala

Mobilat

Aer conditionat

Bucatarie mobilata

Lift

Broker Imobiliar

Larisa Uruc , Consultant imobiliar Vezi toate proprietatile

0317100200

Apartament 2 camere cu loc de parcare subteran Pipera Scoala Americana

Pret inchiriere
900 € /luna

Telefon Consultant imobiliar
0317100200

Cod: REA1027964

Proprietati similare

Bucuresti, Pipera, Iancu Nicolae

2 camere cu loc parcare subteran inclus

59.64 mp 2 2021

900 EUR/luna

Detalii

Bucuresti, Pipera

2 camere cu loc parcare subteran inclus

50 mp 4 2023

820 EUR/luna

Detalii

Bucuresti, Pipera

2 camere cu loc parcare subteran inclus

55 mp 4 2022

850 EUR/luna

Detalii

Bucuresti, Pipera

Apartament, 2 camere

55 mp 7 2023

825 EUR/luna

Detalii

Bucuresti, Pipera

2 camere cu loc parcare subteran inclus

62 mp 10 2023

900 EUR/luna

Detalii

Bucuresti, Aviatiei

2 camere cu loc parcare subteran inclus

58 mp 3 2023

850 EUR/luna

Detalii

Bucuresti, Pipera

Apartament, 2 camere

54.7 mp P 2024

950 EUR/luna

Detalii

Bucuresti, Aviatiei

Apartament, 2 camere

43 mp 6 2021

835 EUR/luna

Detalii
Apartamente 2 camere inchiriate in Pipera, Bucuresti Apartamente 2 camere de inchiriere in Pipera, Bucuresti

Afla primul de cele mai bune oferte
inainte sa ajunga pe piata

Aboneaza-te la newsletter

Aboneaza-te la notificari