Pipera 3 camere 73.09 mp 2 2021

SVN Romania va propune spre inchiriere un apartament cu 3 camere, situat in complexul rezidential Ambiance Residence. Proprietatea se afla la etajul 2 al unui bloc modern, construit in 2021, si ofera un spatiu generos si bine compartimentat.

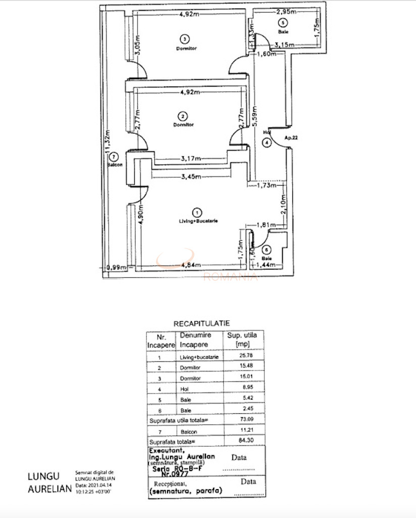
Apartamentul are o compartimentare de tip decomandat cu o suprafata interiora de 73,09 mp la care se adauga un balcon de 11,21 mp. Dispune de 2 dormitoare, un living cu bucatarie open space, 2 bai moderne si un balcon. Se inchiriaza complet mobilat si utilat, fiind gata pentru a te muta imediat. Beneficiaza de centrala proprie Viessmann, incalzire prin pardoseala si aer conditionat, asigurand confortul necesar in orice sezon. Holul este dotat cu spatii de depozitare bine gandite.

In pret este inclus si un loc de parcare. Complexul este situat intr-o zona cu acces facil la facilitati, iar in apropiere se va construi un supermarket Kaufland. De asemenea, distanta pana la Parcul Herastrau si zona de birouri din Aviatiei este de aproximativ 10 minute, ceea ce face acest apartament ideal pentru familii sau persoanele care lucreaza in zona.

Contacteaza-ne pentru mai multe detalii si programarea unei vizionari!

An constructie 2021

Suprafata construita 84.3 mp

Suprafata utila 73.09 mp

Suprafata terasa 11.21 mp

Regim Inaltime 2 / 7

Etaj 2

Nr. camere 3 camere

Nr. bai 2

Nr. balcoane 1 balcon

Confort 1

Compartimentare Decomandat

Tip constructie In bloc

Status constructie Finalizat

Disponibila incepand cu 2025-09-19

Judet Bucuresti

Oras/ Sector Sector 1

Zona Pipera

Gps lat 44.489832

Gps lng 26.119223

Interfon

Geamuri termopan

Parchet

Apometre

Gresie

Loc parcare subteran

Faianta

Incalzire prin pardoseala

Incalzire proprie

WC serviciu

Mobilat

Aer conditionat

Bucatarie mobilata

Lift

Ambiance Residence - 3 camere - mobilat - parcare inclusa

Proprietate inchiriata

Ai o proprietate similara? Vinde-o cu noi.
Vinde apartament

Cod: REA1024058

Proprietati similare

Bucuresti, Pipera

3 camere cu loc parcare subteran inclus

70 mp 5 2016

750 EUR/luna

Detalii

Bucuresti, Pipera

3 camere cu loc parcare exterior inclus

100 mp 1 2020

870 EUR/luna

Detalii

Bucuresti, Baneasa

Apartament, 3 camere

90 mp 1 2006

800 EUR/luna

Detalii

Bucuresti, Tei, Lacul Tei

3 camere cu loc parcare subteran inclus

77.2 mp 4 2008

880 EUR/luna

Detalii

Bucuresti, Stefan Cel Mare

Apartament, 3 camere

80 mp 2 1960

800 EUR/luna

Detalii

Bucuresti, 1 Mai

Apartament, 3 camere

104 mp 12 1980

780 EUR/luna

Detalii

Bucuresti, Colentina, Fundeni

3 camere cu loc parcare subteran inclus

74 mp 9 2025

850 EUR/luna

Detalii

Bucuresti, Sector 3, P-ta Unirii

Apartament, 3 camere

80 mp 8 1994

850 EUR/luna

Detalii
Apartamente 3 camere inchiriate in Pipera, Bucuresti Apartamente 3 camere de inchiriere in Pipera, Bucuresti

Afla primul de cele mai bune oferte
inainte sa ajunga pe piata

Aboneaza-te la newsletter

Aboneaza-te la notificari