Apartament, 4 camere, Bucuresti / Pipera
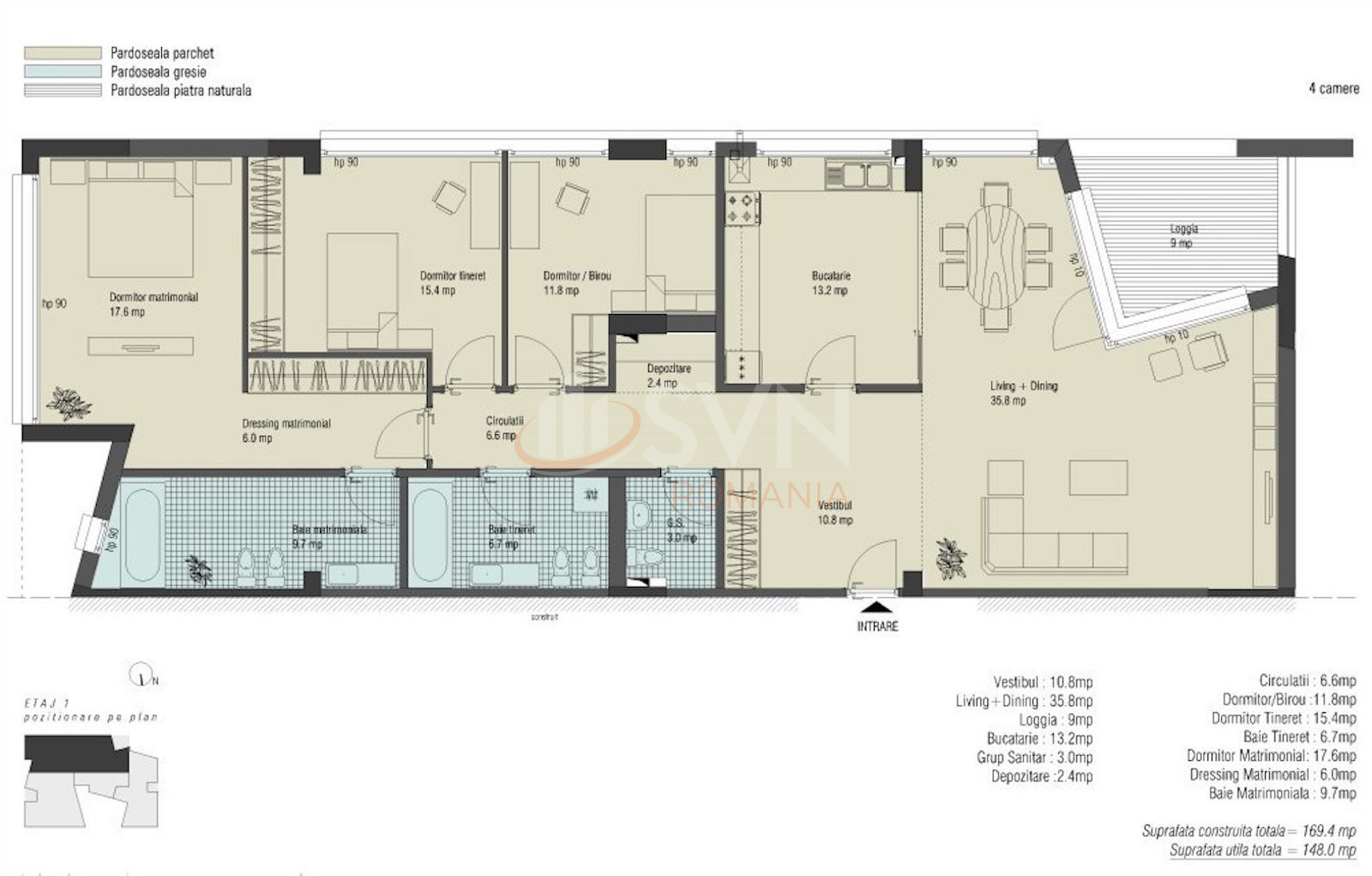
Apartamentul este foarte spatios (148 mp), luminos, beneficiaza de un living + dining de 35,8 mp, 3 dormitoare, un dressing, 2 bai, un grup sanitar si un dressing. Acesta este dotat cu centrala termica proprie si aer conditionat. Finisajele interioare sunt de inalta calitate.
Apartamentul beneficiaza de loc de parcare subteran.
Vecinatati:
-1 km de British School
-Restaurante
-Centru comercial Jolie Ville
-Supermarket-uri
-Farmacii
-Parcuri
-Scoli
-Gradinite
Pentru vizionari sau informatii suplimentare, ma puteti contacta.
Atribute
An constructie 2015
Suprafata construita 169.4 mp
Suprafata utila 148 mp
Suprafata terasa 9 mp
Regim Inaltime 1 / 3
Etaj 1
Nr. camere 4 camere
Nr. bai 3
Nr. balcoane 0 balcoane
Confort 1
Tip constructie In bloc
Status constructie Finalizat
Disponibila incepand cu 2022-06-01
Judet Bucuresti
Oras/ Sector Sector 1
Zona Pipera
Gps lat 44.515364
Gps lng 26.141472
Facilitati
Interfon
Curent electric
Internet Wireless
Cablu TV
Geamuri termopan
Parchet
Gresie
Faianta
Gaz
Incalzire proprie
WC serviciu
Aer conditionat
4 CAMERE SUPERB 148 MP PIPERA LOC DE PARCARE
Proprietate inchiriata
Ai o proprietate similara? Vinde-o cu noi.
  Vinde apartament  
 
  
  
  
  
  
  
  
  
  
  
  
  
  
  
   
   
   
   
   
  
  
   
   
   
   
   
  
  
   
   
   
  