Floreasca 3 camere 82 mp 6 2023

SVN Residentialist propune spre inchiriere un apartament modern si elegant, situat in exclusivistul ansamblu One Verdi Park – una dintre cele mai noi si apreciate dezvoltari din nordul Capitalei.

Aflat la etajul 6, apartamentul ofera vederi spectaculoase catre Parcul Verdi si zona de nord, vizibile din toate camerele si din balconul inchis de 8 mp.

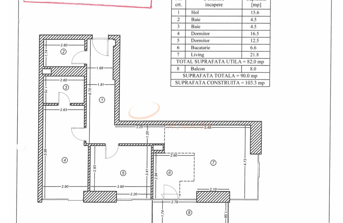
Cu o suprafata utila de 82 mp, locuinta este complet mobilata si utilata exact ca in imagini. Livingul, decorat in tonuri calde si accente moderne, impresioneaza prin eleganta, iar bucataria este complet echipata cu electrocasnice de ultima generatie. Dormitorul principal dispune de dressing generos si vedere directa catre parc, iar finisajele premium si iluminatul ambiental adauga un plus de confort si rafinament.

One Verdi Park redefineste locuirea urbana, oferind servicii premium, arhitectura contemporana si o pozitionare strategica pe Bulevardul Barbu Vacarescu, in apropiere de Floreasca, Aviatiei si Pipera, precum si de restaurante, cafenele, parcuri si centre comerciale.

Disponibil imediat, pentru inchiriere sau vanzare
Chirie: 1.750 €/luna + TVA (include loc de parcare subteran)

Un apartament ideal pentru cei care cauta confort, stil si o locatie premium in nordul Bucurestiului.

An constructie 2023

Suprafata construita 130 mp

Suprafata utila 82 mp

Suprafata terasa 8 mp

Regim Inaltime 6 / 20

Etaj 6

Nr. camere 3 camere

Nr. bai 2

Nr. balcoane 1 balcon

Confort Lux

Compartimentare Decomandat

Tip constructie Bloc

Status constructie Finalizat

Disponibila incepand cu 2026-04-14

Judet Bucuresti

Oras/ Sector Sector 2

Zona Floreasca

Gps lat 44.468176

Gps lng 26.110005

Complex rezidential ONE VERDI PARK

Interfon

Supraveghere 24/7

Internet Wireless

Curent electric

Cablu TV

Supraveghere video

Geamuri termopan

Parchet

Apometre

Gresie

Loc parcare subteran

Faianta

Gaz

Incalzire prin pardoseala

Incalzire proprie

WC serviciu

Mobilat

Aer conditionat

Bucatarie mobilata

Lift

Broker Imobiliar

Oana Dumitrascu , Consultant imobiliar Vezi toate proprietatile

0317100200

Apartament superb 3 camere One Verdi Park I Design modern I Floreasca

Pret inchiriere + TVA
1.750 € /luna

Telefon Consultant imobiliar
0317100200

Cod: REA1028392

Proprietati similare

Bucuresti, Floreasca

3 camere cu loc parcare subteran inclus

82 mp 10 2023

1.750 EUR/luna

Detalii

Bucuresti, Floreasca

3 camere cu loc parcare subteran inclus

80 mp 10 2023

1.800 EUR/luna

Detalii

Bucuresti, Floreasca, Barbu Vacarescu

3 camere cu loc parcare subteran inclus

76 mp 9 2024

1.800 EUR/luna

Detalii

Bucuresti, Floreasca

3 camere cu loc parcare subteran inclus

75 mp 4 2022

1.800 EUR/luna

Detalii

Bucuresti, Floreasca

3 camere cu loc parcare subteran inclus

75 mp 4 2022

1.800 EUR/luna

Detalii

Bucuresti, Floreasca

Apartament, 3 camere

60 mp 10 2023

1.800 EUR/luna

Detalii

Bucuresti, Floreasca

3 camere cu loc parcare subteran inclus

75 mp 3 2023

1.800 EUR/luna

Detalii

Bucuresti, Floreasca

3 camere cu loc parcare subteran inclus

90 mp 2 2021

1.750 EUR/luna

Detalii
Apartamente 3 camere inchiriate in Floreasca, Bucuresti Apartamente 3 camere de inchiriere in Floreasca, Bucuresti

Afla primul de cele mai bune oferte
inainte sa ajunga pe piata

Aboneaza-te la newsletter

Aboneaza-te la notificari