Floreasca 4 camere 146 mp 1 2016

Apartament elegant de 4 camere, situat in complexul rezidential exclusivist One Floreasca Lake – una dintre cele mai dorite locatii din nordul Capitalei, in apropierea Parcului Bordei si Parcului Herastrau.

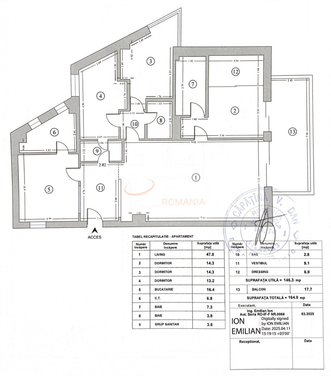
Proprietatea are o suprafata utila de 164 mp si este compartimentata astfel: living generos de 56 mp cu deschidere catre balcon si curtea interioara, bucatarie inchisa complet mobilata si utilata, trei dormitoare, doua bai si un grup sanitar, dressing si spatii de depozitare. Balconul de 18 mp ofera o vedere deschisa, iar apartamentul este mobilat si echipat integral.

In pret sunt incluse doua locuri de parcare in subteran.

Complexul este unul boutique, cu regim redus de inaltime, paza permanenta, acces securizat si curte interioara cu spatii verzi.

Localizarea este una premium, intr-o zona linistita, aproape de parcurile Bordei si Herastrau, Mall Promenada, restaurante de fine dining, centre medicale si zona de business Floreasca–Aviatiei.

An constructie 2016

Suprafata construita 170 mp

Suprafata utila 146 mp

Suprafata terasa 18 mp

Regim Inaltime 1 / 6

Etaj 1

Nr. camere 4 camere

Nr. bai 3

Nr. balcoane 0 balcoane

Confort Lux

Compartimentare Decomandat

Tip constructie In bloc

Status constructie Finalizat

Disponibila incepand cu 2025-09-19

Judet Bucuresti

Oras/ Sector Sector 2

Zona Floreasca

Gps lat 44.477380

Gps lng 26.095988

Nr. terase 1

Supraveghere 24/7

Supraveghere video

Cablu TV

Curent electric

Internet Wireless

Interfon

Geamuri termopan

Parchet

Gresie

Loc parcare subteran

Faianta

Gaz

Incalzire proprie

Incalzire prin pardoseala

Mobilat

Aer conditionat

Bucatarie mobilata

Lift

Calorifere

Broker Imobiliar

Oana Dumitrascu , Consultant imobiliar Vezi toate proprietatile

0317100200

Apartament premium spatios 4 Camere I One Floreasca Lake I 2 locuri parca

Pret inchiriere + TVA
3.350 € /luna

Telefon Consultant imobiliar
0317100200

Cod: REA1025450

Proprietati similare

Bucuresti, Herastrau, Nordului

4 camere cu loc parcare subteran inclus

205 mp 9 2010

3.500 EUR/luna

Detalii

Bucuresti, Herastrau, Nordului

4 camere cu loc parcare subteran inclus

175 mp 3 2007

3.500 EUR/luna

Detalii

Bucuresti, Herastrau

4 camere cu loc parcare subteran inclus

225 mp 4 2003

3.200 EUR/luna

Detalii

Bucuresti, Herastrau

Apartament, 4 camere

124 mp 7 2021

3.300 EUR/luna

Detalii

Bucuresti, Dorobanti, Primaverii

4 camere cu loc parcare subteran inclus

150 mp 3 2018

3.500 EUR/luna

Detalii

Bucuresti, Floreasca

Apartament, 4 camere

213 mp 1 2023

3.600 EUR/luna

Detalii

Bucuresti, Kiseleff

4 camere cu loc parcare subteran inclus

148 mp 2 2024

3.300 EUR/luna

Detalii

Bucuresti, Dorobanti, Capitale

Apartament, 4 camere

154 mp 1 2008

3.500 EUR/luna

Detalii
Apartamente 4 camere inchiriate in Floreasca, Bucuresti Apartamente 4 camere de inchiriere in Floreasca, Bucuresti

Afla primul de cele mai bune oferte
inainte sa ajunga pe piata

Aboneaza-te la newsletter

Aboneaza-te la notificari