Foisorul De Foc 7 camere 171.7 mp 1 2016

SVN Romania va propune spre inchiriere un apartament de 7 camere, situat in zona Foisorului de Foc.

Apartamentul este situat intr-o vila eleganta de P+1+M, la etajul 1 si 2, un apartament tip duplex, cu o suprafata utila de 171.7 mp si 2 terase cu o suprafata de 9.9 mp.

Acesta este dispus pe 2 niveluri, etajul 2 + mansarda, cu scara interioara si doua intrari separate.

Spatiul impresioneaza prin suprafata generoasa, fiind pretabil atat pentru rezidential cat si pentru activitati de birou, fiind ideal pentru:
- Birouri / sediu firmă
- Firmă de consultanță, IT, arhitectură, avocatură, contabilitate, clinică , etc .
- Locuința de familie
- Utilizare mixtă (locuit + birou)

Imobilul este renovat complet, dispune de finisaje moderne, centrala proprie, unitati de AC in fiecare incapere, videointerfon si multe altele.

Este inclus si un loc de parcare in curte in pretul de inchiriere.

Compartimentarea este dispusa astfel:

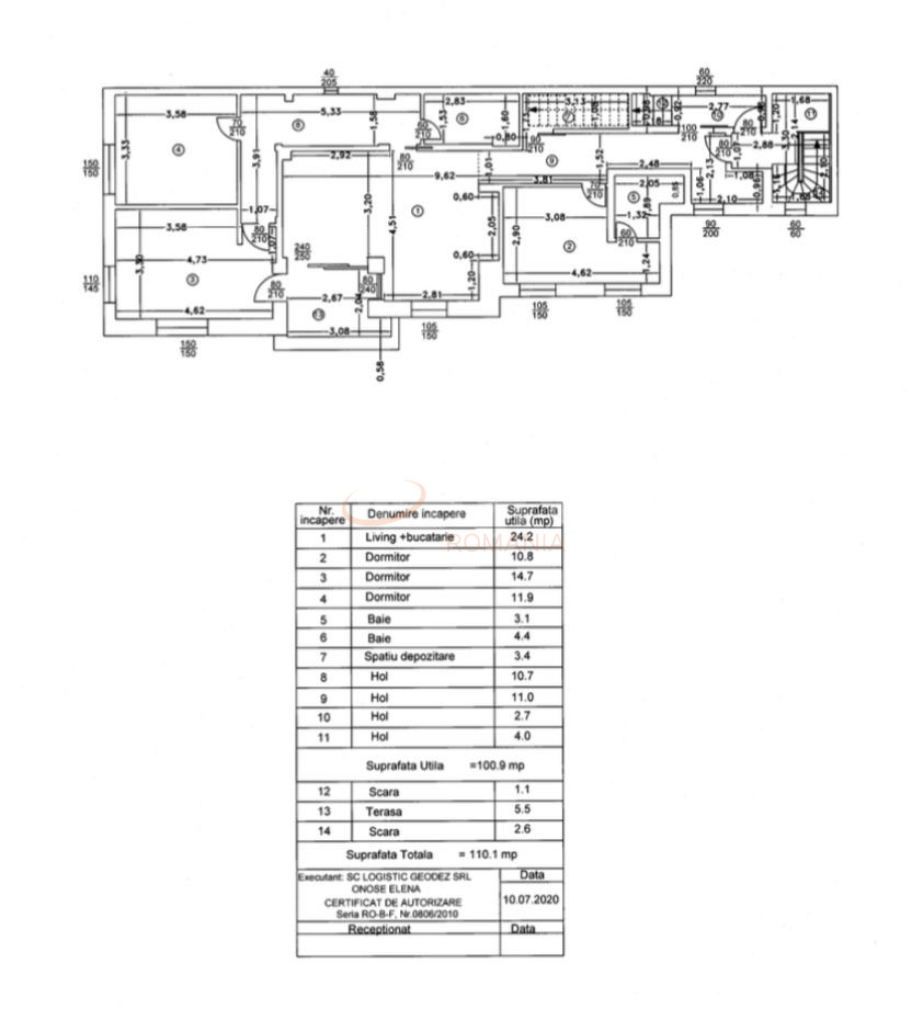
Etaj 2 – 110, mp
– 4 camere individuale
– Living generos open-space cu bucătărie
– 2 băi
– Terasă 5,5 mp

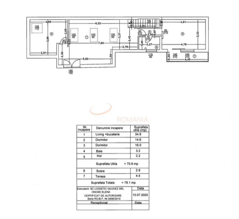
Mansardă – 78 mp
– 3 camere
– 1 baie
– Terasă 4,4 mp

În imediata apropiere: Foișorul de Foc, Biserica Armenească, Liceul Coșbuc, Spitalul Foișorul de Foc, Moșilor, Eminescu, Pache Protopopescu. Acces rapid către centru și zonele de business.

Pentru mai multe informatii sau pentru programarea vizionarilor, contactul meu va sta la dispozitie!

An constructie 2016

Suprafata construita 208.88 mp

Suprafata utila 171.7 mp

Suprafata terasa 9.9 mp

Regim Inaltime 1 / 2

Etaj 1

Nr. camere 7 camere

Nr. bai 3

Nr. balcoane 2 balcoane

Confort Lux

Compartimentare Decomandat

Tip constructie In vila

Status constructie Finalizat

Disponibila incepand cu 2026-03-03

Judet Bucuresti

Oras/ Sector Sector 2

Zona Foisorul De Foc

Gps lat 44.440215

Gps lng 26.120617

Acoperis mansardat

Supraveghere video

Detector de gaze

Curent electric

Internet Wireless

Interfon

Geamuri termopan

Parchet

Apometre

Gresie

Faianta

Gaz

Loc parcare exterior

Incalzire proprie

Calorifere

Mobilat

Aer conditionat

Bucatarie mobilata

Bloc reabiliat termic

Broker Imobiliar

Cristian Vasile , Consultant imobiliar Vezi toate proprietatile

0317100200

Apartament 7 camere I Vila I Rezidential sau Birouri I Parcare IFoisorul de Foc

Pret inchiriere
1.950 € /luna

Telefon Consultant imobiliar
0317100200

Cod: REA0086335
Apartamente 7 camere inchiriate in Ferdinand, Bucuresti Apartamente 7 camere de inchiriere in Ferdinand, Bucuresti

Afla primul de cele mai bune oferte
inainte sa ajunga pe piata

Aboneaza-te la newsletter

Aboneaza-te la notificari