Alba Iulia 3 camere 71.52 mp 3 1991

SVN Romania va propune spre inchiriere un apartament de 3 camere amplasat intr-o zona centrala a Bucurestiului, zona Bulevardul Unirii, Rond Alba Iulia.

Apartamentul este situat la etajul 3 din 8.

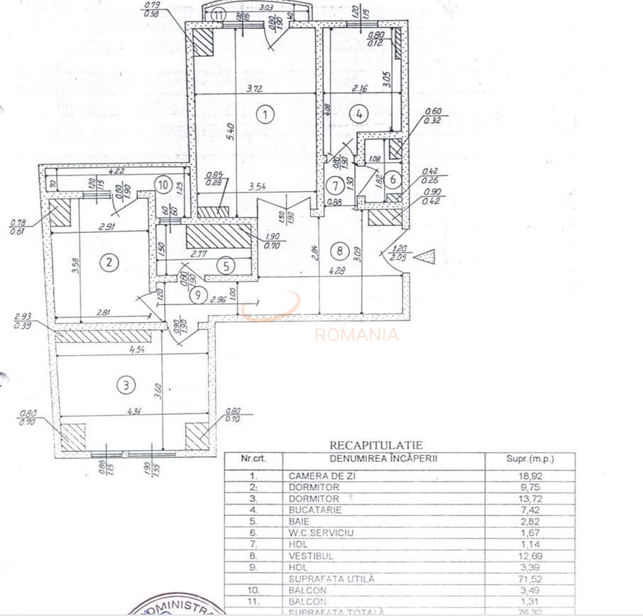
Apartamentul dispune de o compartimentare decomandata, fiind compus din: hol, living, bucatarie inchisa, 2 dormitoare, 2 bai, 2 balcoane cu vedere catre Piata Alba Iulia, toate acestea avand suprafata utila de 76 mp utili.

Puncte de interes in apropiere: magazine, restaurante, farmacii, gradinite, scoli.

Nu detinem informatii despre clasa energetica a imobilului.

Pentru mai multe detalii si vizionari va stau la dispozitie.

An constructie 1991

Suprafata construita 85 mp

Suprafata utila 71.52 mp

Suprafata terasa 4.8 mp

Regim Inaltime 3 / 8

Etaj 3

Nr. camere 3 camere

Nr. bai 2

Nr. balcoane 2 balcoane

Confort 1

Compartimentare Semidecomandat

Tip constructie In bloc

Status constructie Finalizat

Disponibila incepand cu 2025-05-22

Judet Bucuresti

Oras/ Sector Sector 3

Zona Alba Iulia

Gps lat 44.425583

Gps lng 26.129292

Curent electric

Internet prin fibra optica

Internet Wireless

Sistem de alarma

Detector de gaze

Supraveghere video

Geamuri termopan

Repartitoare

Balcon inchis

Parchet

Apometre

Gresie

Telefon

Faianta

Gaz

Calorifere

WC serviciu

Mobilat

Aer conditionat

Bucatarie mobilata

Lift

Apartament cu 3 camere Rond Alba Iulia

Proprietate inchiriata

Ai o proprietate similara? Vinde-o cu noi.
Vinde apartament

Cod: REA1023048

Proprietati similare

Bucuresti, Decebal

Apartament, 3 camere

71.14 mp 3 1983

750 EUR/luna

Detalii

Bucuresti, Unirii, Piata Unirii (s3)

Apartament, 3 camere

80 mp 3 1977

699 EUR/luna

Detalii

Bucuresti, Iancului

Apartament, 3 camere

64 mp 8 1977

750 EUR/luna

Detalii

Bucuresti, Tei, Lacul Tei

Apartament, 3 camere

67.11 mp P 1987

680 EUR/luna

Detalii

Bucuresti, Ultracentral, Calea Victoriei

Apartament, 3 camere

46 mp 7 1974

750 EUR/luna

Detalii

Bucuresti, Kiseleff, Piata Presei Libere

Apartament, 3 camere

66 mp 3 2023

699 EUR/luna

Detalii

Bucuresti, Bucurestii Noi

Apartament, 3 camere

87 mp 2 2010

750 EUR/luna

Detalii

Bucuresti, Baneasa

3 camere cu loc parcare subteran inclus

80 mp 1 2010

750 EUR/luna

Detalii
Apartamente 3 camere inchiriate in Unirii, Bucuresti Apartamente 3 camere de inchiriere in Unirii, Bucuresti

Afla primul de cele mai bune oferte
inainte sa ajunga pe piata

Aboneaza-te la newsletter

Aboneaza-te la notificari