Parcul Carol 2 camere 57.3 mp P 2022

SVN Romania va propune spre inchiriere un apartament de 2 camere situat in complexul rezidential ISG Residence IV.

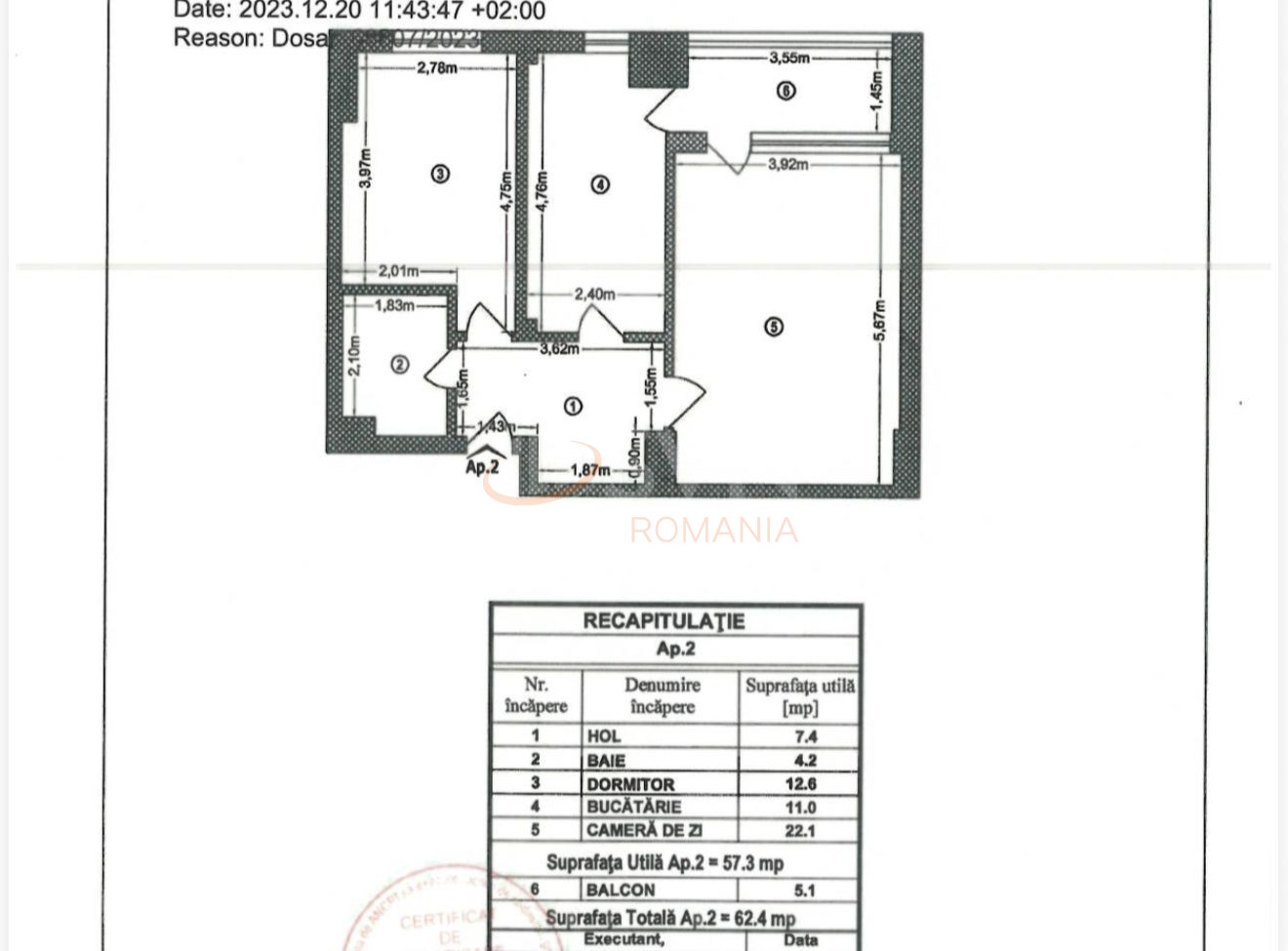
Apartamentul este situat la parterul unui bloc construit in anul 2022, decomandat, cu o suprafata utila de 57.30 mp si un balcon de 5.10 mp.

Acesta se inchiriaza complet mobilat si utilat asa cum este prezentat in imagini.

Dispune de centrala termica proprie de apartament.

ISG Residence IV ofera un standard modern de locuire, cu acces securizat, supraveghere video, lifturi moderne si spatii comune bine intretinute. Ansamblul dispune de locuri de parcare subterane si supraterane, alei amenajate, spatii verzi si este gandit pentru confort, siguranta si functionalitate zilnica.

Zona ofera acces rapid la mijloace de transport in comun, centre comerciale (mall, supermarketuri), restaurante, cafenele, scoli si gradinite. In apropiere se afla parcuri, sali de fitness, farmacii si clinici medicale, iar legatura cu principalele artere ale orasului este foarte buna, facilitand accesul rapid catre centrul orasului.

Datorita pozitiei beneficiaza de acces rapid catre Parcul Carol I, unul dintre cele mai mari si frumoase parcuri din Bucuresti. De asemenea, Parcul Tineretului si Parcul Izvor sunt usor accesibile.

Pentru mai multe informatii sau pentru programarea unei vizionari, contactul meu va sta la dispozitie!

An constructie 2022

Suprafata construita 62.4 mp

Suprafata utila 57.3 mp

Suprafata terasa 5.1 mp

Regim Inaltime P / 12

Etaj P

Nr. camere 2 camere

Nr. bai 1

Nr. balcoane 1 balcon

Confort 1

Compartimentare Decomandat

Tip constructie In bloc

Status constructie Finalizat

Disponibila incepand cu 2026-01-13

Judet Bucuresti

Oras/ Sector Sector 4

Zona Parcul Carol

Gps lat 44.413527

Gps lng 26.088900

Supraveghere video

Detector de gaze

Interfon

Cablu TV

Curent electric

Internet prin fibra optica

Geamuri termopan

Parchet

Apometre

Gresie

Faianta

Gaz

Loc parcare exterior

Incalzire proprie

Calorifere

Mobilat

Aer conditionat

Bucatarie mobilata

Bloc reabiliat termic

Lift

Broker Imobiliar

Cristian Vasile , Consultant imobiliar Vezi toate proprietatile

0317100200

Apartament 2 camere I ISG RESIDENCE IV I De inchiriat

Pret inchiriere
650 € /luna

Telefon Consultant imobiliar
0317100200

Cod: REA1026920

Proprietati similare

Bucuresti, Parcul Carol

Apartament, 2 camere

51.28 mp 5 2019

650 EUR/luna

Detalii

Bucuresti, Tineretului, Timpuri Noi

Apartament, 2 camere

46 mp 3 2020

700 EUR/luna

Detalii

Bucuresti, Cotroceni

Apartament, 2 camere

68 mp P 1938

700 EUR/luna

Detalii

Bucuresti, Ultracentral, Piata Romana

Apartament, 2 camere

52 mp 2 1940

600 EUR/luna

Detalii

Bucuresti, Dacia

Apartament, 2 camere

50 mp 2 1980

650 EUR/luna

Detalii

Bucuresti, Ultracentral, Piata Romana

Apartament, 2 camere

42 mp 5 1928

660 EUR/luna

Detalii

Bucuresti, Crangasi, Regie

2 camere cu loc parcare exterior inclus

40 mp 10 2022

650 EUR/luna

Detalii

Bucuresti, Ultracentral, Piata Victoriei

Apartament, 2 camere

51 mp 6 1960

640 EUR/luna

Detalii
Apartamente 2 camere inchiriate in Parcul Carol, Bucuresti Apartamente 2 camere de inchiriere in Parcul Carol, Bucuresti

Afla primul de cele mai bune oferte
inainte sa ajunga pe piata

Aboneaza-te la newsletter

Aboneaza-te la notificari