Voluntari 2 camere 78.56 mp 3 2025

SVN Romania va propune spre vanzare un apartament de 2 camere in zona Andronache - Voluntari.

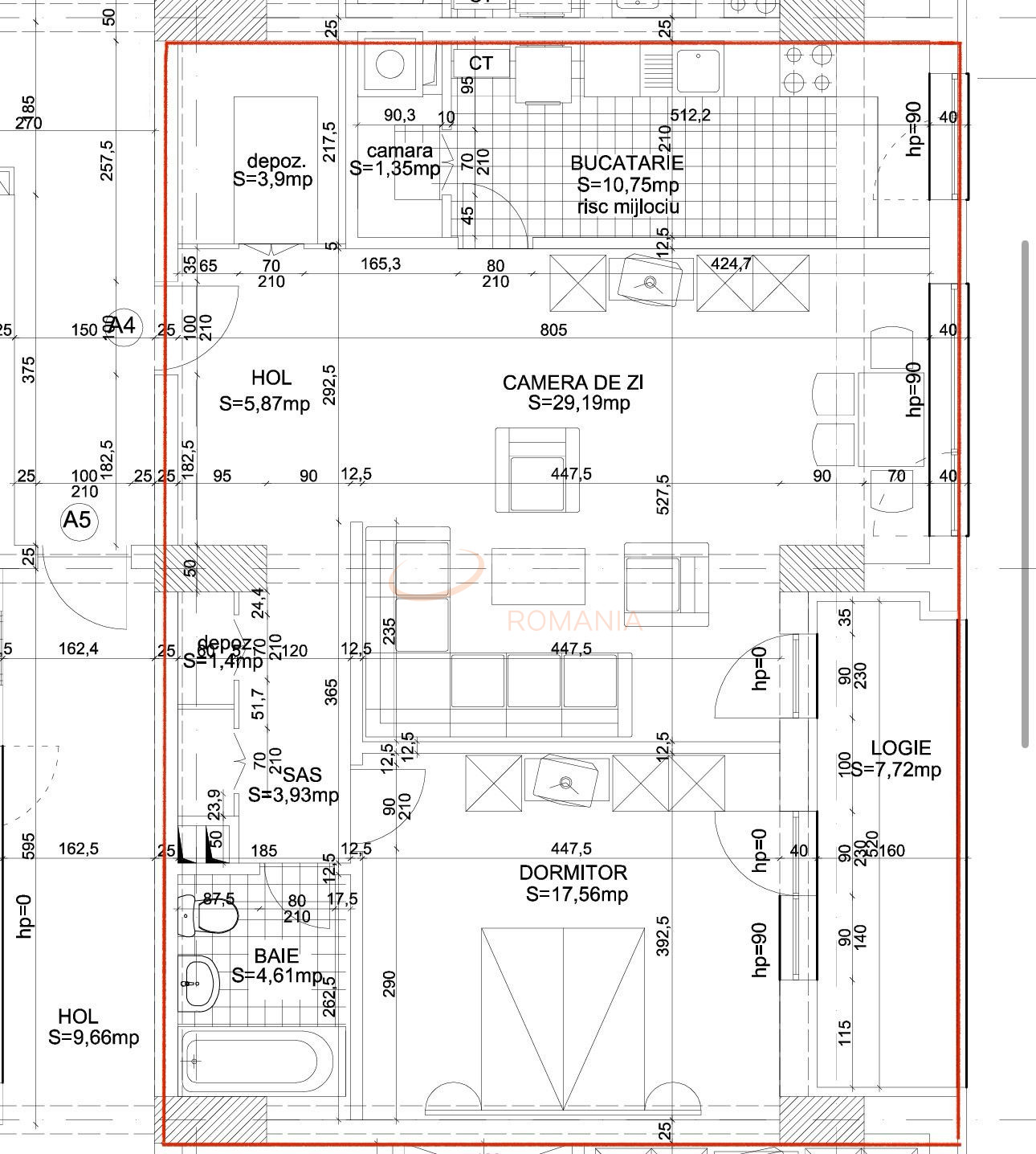
Apartamentul este situat la etajul 3/8, intr-un bloc construit in 2025, semidecomandat, cu o suprafata utila de 78.56 mp si o logie de 10.75 mp.

Toate finisajele sunt executate de Delta Studio.

Acesta se preda complet finisat dispunand de centrala termica proprie, baie cu cada, lavoar si wc incastrat, usi interioare, usa exterioara antiefractie, parchet, gresie si faianta.

Balconul dispune de rigola pentru scurgere si balustrada din sticla securizata prinsa in menghina.

Cladirea este construita pe piloni cu cadre de beton cu grinzi, peretii exteriori sunt din caramida cu izolatie de 15 cm si decorativa iar peretii interiori din rigips dublu cu vata bazaltica.

Locurile de parcare sunt situate la subteran, achizitionandu-se optional.

Pretul este de 129.499 euro + TVA.

Pentru mai multe informatii sau programarea unei vizionari, contactul meu va sta la dispozitie!

An constructie 2025

Suprafata construita 102.7 mp

Suprafata utila 78.56 mp

Suprafata terasa 10.75 mp

Regim Inaltime 3 / 8

Etaj 3

Nr. camere 2 camere

Nr. bai 1

Nr. balcoane 1 balcon

Confort Lux

Compartimentare Decomandat

Tip constructie In bloc

Status constructie Finalizat

Disponibila incepand cu 2025-12-15

Judet Ilfov

Oras/ Sector Est

Zona Voluntari

Gps lat 44.487032

Gps lng 26.168968

Supraveghere video

Interfon

Internet prin fibra optica

Geamuri termopan

Parchet

Apometre

Gresie

Faianta

Gaz

Calorifere

Incalzire proprie

Aer conditionat

Bloc reabiliat termic

Lift

Valoare proprietate (€)

Perioada (ani)

Procent avans (19.425 €)


Suma creditata 110.075

Dobanda 4.9%

Rata lunara 2.722 lei

Broker Imobiliar

Raluca Utica , Consultant imobiliar Vezi toate proprietatile

0317100200

Ocazie 1450 euro MP I Apartament de 2 camere I 90 MP I De vanzare

Pret vanzare + TVA
129.499 €

Telefon Consultant imobiliar
0317100200

Cod: REA1023301

Proprietati similare

Ilfov, Est, Voluntari

Apartament, 2 camere

42 mp 5 2023

138.900 EUR

Detalii

Ilfov, Nord, Otopeni

Apartament, 2 camere

45 mp 3 2022

129.000 EUR

Detalii

Ilfov, Nord, Corbeanca

Apartament, 2 camere

56.33 mp P 2025

120.000 EUR

Detalii

Ilfov, Nord, Corbeanca

Apartament, 2 camere

56.33 mp P 2025

120.000 EUR

Detalii

Ilfov, Nord, Balotesti

2 camere cu loc parcare exterior inclus

49 mp P 2023

122.000 EUR

Detalii
Apartamente 2 camere vandute in Est, Ilfov Apartamente 2 camere de vanzare in Est, Ilfov

Afla primul de cele mai bune oferte
inainte sa ajunga pe piata

Aboneaza-te la newsletter

Aboneaza-te la notificari