Voluntari 2 camere 54 mp 3 2025

Va prezentam spre achizitie un apartament modern situat la intersectia Blvd. Pipera cu Str. Matei Basarab, in imediata apropiere de Padurea Baneasa. Proprietatea se afla intr-un complex rezidential nou (2025), securizat cu paza, bariera si spatii verzi.

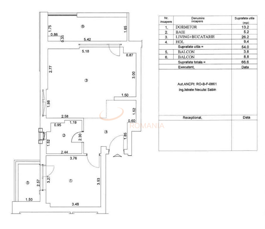
Detalii principale:
Suprafata: 54 mp utili + 12.6 mp balcoane (2 balcoane deschise).
Configuratie: Living cu bucatarie open-space, dormitor luminos, etaj 3/5.
Orientare Dubla: Sud si Est (lumina naturala pe tot parcursul zilei).
Stadiu: Se preda finisat, gata pentru personalizare.

Facilitati: Cafenea la parterul blocului, acces rapid catre zona Iancu Nicolae.
Parcare: Disponibile 2 locuri de parcare subterane la pretul de 20.000 EUR + TVA / fiecare.
Locatie ideala pentru cei care isi doresc liniste, aer curat si acces rapid catre scolile internationale si centrele de business din Pipera.
Pret Apartament: 180.000 euro + TVA.

Pentru mai multe detalii si pentru a stabili o vizionare va stam la dispozitie!

An constructie 2025

Suprafata construita 80 mp

Suprafata utila 54 mp

Suprafata terasa 12.6 mp

Regim Inaltime 3 / 5

Etaj 3

Nr. camere 2 camere

Nr. bai 1

Nr. balcoane 2 balcoane

Confort 1

Compartimentare Decomandat

Tip constructie In bloc

Status constructie Finalizat

Disponibila incepand cu 2026-01-26

Judet Ilfov

Oras/ Sector Est

Zona Voluntari

Gps lat 44.517583

Gps lng 26.141955

Supraveghere 24/7

Curent electric

Interfon

Supraveghere video

Sistem de alarma

Detector de gaze

Geamuri termopan

Parchet

Apometre

Gresie

Loc parcare subteran

Faianta

Gaz

Incalzire prin pardoseala

Incalzire proprie

Aer conditionat

Lift

Valoare proprietate (€)

Perioada (ani)

Procent avans (27.000 €)


Suma creditata 153.000

Dobanda 4.9%

Rata lunara 3.783 lei

Broker Imobiliar

Nicusor Gavrila , Consultant imobiliar Vezi toate proprietatile

0317100200

Apartament 2 Camere I Iancu Nicolae I langa Padure

Pret vanzare + TVA
180.000 €

Telefon Consultant imobiliar
0317100200

Cod: REA1027187

Proprietati similare

Ilfov, Est, Voluntari

Apartament, 2 camere

57.7 mp 3 2025

180.000 EUR

Detalii

Ilfov, Est, Voluntari

Apartament, 2 camere

52.15 mp P 2019

170.000 EUR

Detalii

Ilfov, Est, Voluntari

Apartament, 2 camere

51.5 mp 6 2021

162.000 EUR

Detalii

Ilfov, Est, Voluntari

Apartament, 2 camere

56.5 mp 3 2023

189.000 EUR

Detalii

Ilfov, Est, Voluntari

Apartament, 2 camere

50.9 mp 5 2023

183.900 EUR

Detalii
Apartamente 2 camere vandute in Est, Ilfov Apartamente 2 camere de vanzare in Est, Ilfov

Afla primul de cele mai bune oferte
inainte sa ajunga pe piata

Aboneaza-te la newsletter

Aboneaza-te la notificari