Apartament, 3 camere, Bucuresti / Aviatiei
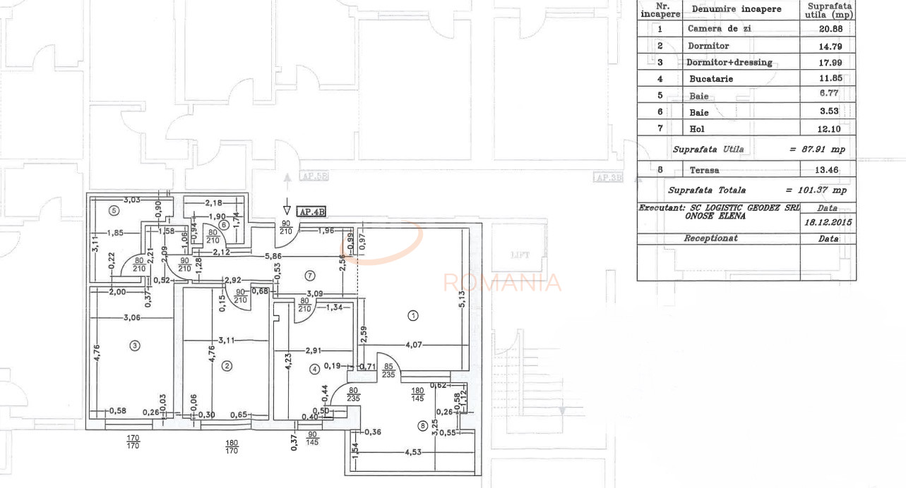
Apartamentul are o suprafata totala utila de 101 mp, este decomandat cu un balcon de 13 mp si este compus din
Living 21 mp
Dormitor 15 mp
Dormitor + Dressing 18 mp
Bucatarie inchisan de 12 mp
2 bai de 6 mpn respectiv 4 mp
Dispune de centrala termica individuala si este integral contorizat. Include finisaje lux: parchet, gresie, faianta, geamuri termopan, aer conditionat, usa metalica, internet prin fibra optica.
Apartamentul se vinde complet mobilat cum se vede in fotografii!
METROPOLITAN RESIDENCE AVIATIEI, este situat in cartierul Aviatiei, cu acces din strada Cpt. Av. Alexandru Serbanescu. Cu vecinatati precum cartierul Baneasa, Aviatorilor, Floreasca, accesul catre aproape orice zona a Capitalei se poate realiza foarte uaor. Zona detine toate variantele de transport in comun, atat catre centrul Bucurestiului sau Imprejurimi, dar si catre aeroporturi sau zone comerciale mari. Principalele strazi din acest cartier sunt: Barbu Vacarescu, Nicolae Caranfil, Soseaua Pipera si strada Cpt. Av. Alexandru Serbanescu.
Nu detinem informatii cu privire la clasa energetica a imobilului.
Pentru mai multe informatii, vizionari, contactul meu va sta la dispozitie!
Atribute
An constructie 2016
Suprafata construita 117 mp
Suprafata utila 101.37 mp
Suprafata terasa 13.46 mp
Regim Inaltime P / 7
Etaj P
Nr. camere 3 camere
Nr. bai 2
Nr. balcoane 1 balcon
Confort 1
Compartimentare Decomandat
Tip constructie In bloc
Status constructie Finalizat
Disponibila incepand cu 2023-03-22
Judet Bucuresti
Oras/ Sector Sector 1
Zona Aviatiei
Gps lat 44.485002
Gps lng 26.099093
Facilitati
Curent electric
Supraveghere 24/7
Detector de gaze
Interfon
Cablu TV
Supraveghere video
Internet prin fibra optica
Geamuri termopan
Parchet
Gresie
Faianta
Gaz
Incalzire proprie
Aer conditionat
Lift
Apartament 3 camere Mobilat Aviatiei
Proprietate vanduta
Ai o proprietate similara? Vinde-o cu noi.
  Vinde apartament  
 
  
  
  
  
  
  
  
  
  
  
  
  
  
  
  
  
  
  
   
   
   
   
   
  
  
   
   
   
   
   
  
  
   
   
   
   
   
  
  
   
   
   
   
   
  
  
   
   
   
   
   
  
   
   
   
   
   
  
   
   
   
   
   
  
   
   
   
  