Aviatiei 3 camere 67.7 mp 4 1986

Avem placerea de a va oferi spre vanzare un apartament de 3 camere situat in zona Aviatiei intr-un imobil edificat in anul 1986.

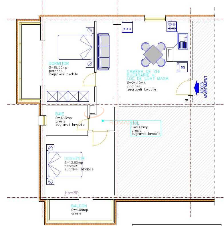
Apartamentul se afla la etajul 4 din 4 are o compartimentare decomandata si suprafata interioara de 65 mp utili.

Proprietatea a fost complet renovata; instalatii termice si santitare schimbate in plus beneficiaza de centrala termica proprie si aparate de aer conditionat in fiecare incapere.

Pozitionare excelenta, intr-o zona linistita ferita de traficul intens. Vederea este mixta, este foarte luminos cu vederea deschisa.

Certificatul energetic al imobilului va fi disponibil la momentul vanzarii.

Pentru informatii suplimentare va stau la dispozitie.

An constructie 1986

Suprafata construita 70 mp

Suprafata utila 67.7 mp

Regim Inaltime 4 / 4

Etaj 4

Nr. camere 3 camere

Nr. bai 1

Nr. balcoane 2 balcoane

Confort 1

Compartimentare Decomandat

Tip constructie In bloc

Status constructie Finalizat

Disponibila incepand cu 2023-10-19

Judet Bucuresti

Oras/ Sector Sector 1

Zona Aviatiei

Gps lat 44.488541

Gps lng 26.112568

Detector de gaze

Internet Wireless

Curent electric

Interfon

Internet prin cablu

Cablu TV

Geamuri termopan

Repartitoare

Balcon inchis

Parchet

Apometre

Gresie

Faianta

Gaz

Incalzire proprie

Mobilat

Aer conditionat

Bucatarie mobilata

Bloc reabiliat termic

3 camere Aviatiei incalzire proprie

Proprietate vanduta

Ai o proprietate similara? Vinde-o cu noi.
Vinde apartament

Cod: REA1012702

Proprietati similare

Bucuresti, Tei, Lacul Tei

Apartament, 3 camere

65.81 mp 8 1977

122.900 EUR

Detalii

Bucuresti, Tei

Apartament, 3 camere

63.87 mp 5 1978

135.000 EUR

Detalii

Bucuresti, Tei, Teiul Doamnei

Apartament, 3 camere

64 mp 8 1986

140.000 EUR

Detalii

Bucuresti, Colentina

Apartament, 3 camere

67 mp 1 1977

135.000 EUR

Detalii

Bucuresti, Floreasca, Barbu Vacarescu

Apartament, 3 camere

65.25 mp P 1960

141.000 EUR

Detalii

Bucuresti, Tei, Teiul Doamnei

Apartament, 3 camere

65 mp 8 1983

119.900 EUR

Detalii

Bucuresti, Tei, Teiul Doamnei

3 camere cu loc parcare exterior inclus

64 mp 3 1973

118.500 EUR

Detalii

Bucuresti, Colentina, Bucur Obor

Apartament, 3 camere

60.63 mp 3 1968

128.888 EUR

Detalii
Apartamente 3 camere vandute in Aviatiei, Bucuresti Apartamente 3 camere de vanzare in Aviatiei, Bucuresti

Afla primul de cele mai bune oferte
inainte sa ajunga pe piata

Aboneaza-te la newsletter

Aboneaza-te la notificari