Aviatiei 3 camere 68 mp 4 1987

SVN Romania va prezinta un apartament cu 3 camere, situat in zona Aviatiei, intr-un imobil construit in 1987.

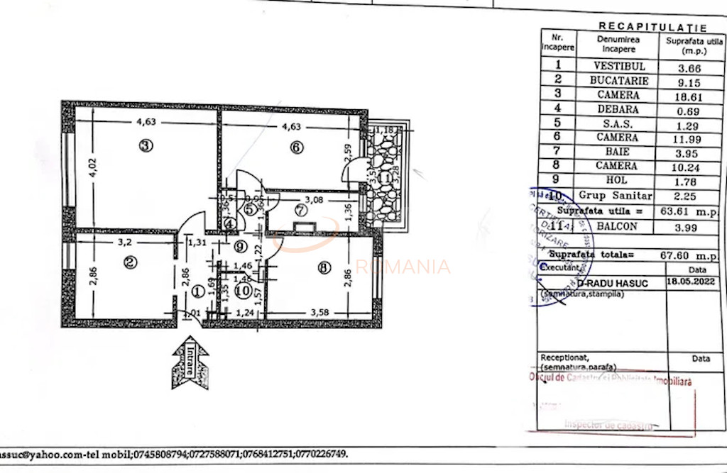
Aceasta proprietate reprezinta o oportunitate excelenta pentru cei care isi doresc sa isi personalizeze locuinta dupa propriile preferinte. Apartamentul are o configuratie de 3 camere, bucatarie semi-deschisa, si 2 grupuri sanitare, acest apartament ofera spatiu si potential pentru a deveni un camin confortabil si functional.

Chiar daca necesita renovare, acest aspect reprezinta un avantaj pentru cei care doresc sa creeze un spatiu in conformitate cu propriul stil si gust.

Situat la etajul 4 intr-un imobil cu 4 niveluri, apartamentul ofera intimitate si o atmosfera placuta. Reabilitarea termica adauga un plus de eficienta energetica si confort.

Locatia este ideala, avand statia de metrou Aurel Vlaicu la 8 minute distanta, ceea ce iti asigura legaturi rapide si comode cu restul orasului. La doar 10 minute de mers pe jos, vei ajunge in Parcul Herastrau, unde poti petrece timpul liber in mijlocul naturii.

In apropiere, vei gasi si Mall Promenada, dar si diverse scoli si gradinite, asigurand astfel toate serviciile si facilitatile de care ai nevoie la indemana.

Certificatul energetic va fi disponibil la data semnarii contractului de vanzare-cumparare.

Contactati-ne acum pentru mai multe detalii si pentru a programa o vizionare!

An constructie 1987

Suprafata construita 78 mp

Suprafata utila 68 mp

Regim Inaltime 4 / 4

Etaj 4

Nr. camere 3 camere

Nr. bai 2

Nr. balcoane 0 balcoane

Confort 2

Compartimentare Decomandat

Tip constructie In bloc

Status constructie Finalizat

Disponibila incepand cu 2023-10-19

Judet Bucuresti

Oras/ Sector Sector 1

Zona Aviatiei

Gps lat 44.482815

Gps lng 26.094775

Internet Wireless

Curent electric

Interfon

Internet prin fibra optica

Internet prin Dial-Up

Internet prin cablu

Cablu TV

Geamuri termopan

Repartitoare

Balcon inchis

Parchet

Apometre

Gresie

Telefon

Faianta

Gaz

Calorifere

WC serviciu

Mobilat

Aer conditionat

Bucatarie mobilata

Bloc reabiliat termic

I Apartament 3 camere I Aviatiei I Metrou Aurel Vlaicu I

Proprietate vanduta

Ai o proprietate similara? Vinde-o cu noi.
Vinde apartament

Cod: REA1015932

Proprietati similare

Bucuresti, Tei

Apartament, 3 camere

63.87 mp 5 1978

135.000 EUR

Detalii

Bucuresti, Tei, Teiul Doamnei

Apartament, 3 camere

64 mp 8 1986

120.000 EUR

Detalii

Bucuresti, Gara De Nord, Grivita

Apartament, 3 camere

57.8 mp 3 1961

128.000 EUR

Detalii

Bucuresti, Tei, Teiul Doamnei

3 camere cu loc parcare exterior inclus

64 mp 3 1973

118.500 EUR

Detalii

Bucuresti, Colentina

Apartament, 3 camere

67 mp 1 1977

135.000 EUR

Detalii

Bucuresti, Colentina

Apartament, 3 camere

65 mp 3 1977

124.000 EUR

Detalii

Bucuresti, Colentina, Bucur Obor

Apartament, 3 camere

60.63 mp 3 1968

128.888 EUR

Detalii
Exclusiv Discount

Bucuresti, 1 Mai, Titulescu

Apartament, 3 camere

70 mp 8 1976

134.900 EUR

Detalii
Apartamente 3 camere vandute in Aviatiei, Bucuresti Apartamente 3 camere de vanzare in Aviatiei, Bucuresti

Afla primul de cele mai bune oferte
inainte sa ajunga pe piata

Aboneaza-te la newsletter

Aboneaza-te la notificari