Apartament, 3 camere, Bucuresti / Aviatiei
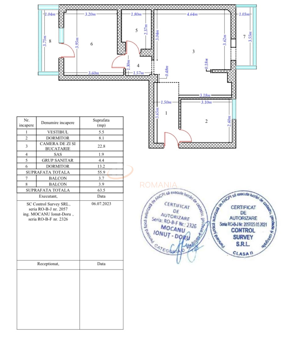
Cu o generoasa suprafata utila de 63,5 metri patrati, acest apartament va ofera spatiu din belsug. Cele doua balcoane, cu 3,9 metri patrati si, respectiv, 3,7 metri patrati, aduc lumina naturala si prospetime in fiecare zi.
Apartamentul este la baza unul cu 2 camere, din care s-au facut 3. Documentatia cadastrala este in curs de actualizare.
Compartimentarea este ideala, cu un living spatios, bucatarie moderna, un dormitor confortabil si un birou de 8 metri patrati.
Un aspect important este instalarea tevii de gaz in apartament, ceea ce face foarte usoara instalarea unei centrale termice proprii, oferindu-va controlul complet asupra temperaturii in locuinta.
Apartamentul este complet mobilat si utilat, pregatit pentru a va oferi tot confortul de care aveti nevoie. Instalatiile electrice si sanitare au fost schimbate pentru a va asigura o locuinta moderna si functionala.
Apreciem cu adevarat spatiul oferit de acest apartament, fiind ideal pentru cei care apreciaza confortul si functionalitatea intr-o locatie de top.
Locatia este ideala, avand statia de metrou Aurel Vlaicu la 8 minute distanta, ceea ce iti asigura legaturi rapide si comode cu restul orasului. La doar 10 minute de mers pe jos, vei ajunge in Parcul Herastrau, unde poti petrece timpul liber in mijlocul naturii.
In apropiere, vei gasi si Mall Promenada, dar si diverse scoli si gradinite, asigurand astfel toate serviciile si facilitatile de care ai nevoie la indemana.
Nu in ultimul rand, acest apartament vine cu un loc de parcare ADP, astfel ca veti avea intotdeauna un loc sigur pentru masina dumneavoastra.
Certificatul energetic va fi disponibil la data semnarii contractului de vanzare-cumparare.
Contactati-ne pentru mai multe detalii si pentru a programa o vizionare a acestei proprietati atractive!
Atribute
An constructie 1984
Suprafata construita 73 mp
Suprafata utila 55.9 mp
Suprafata terasa 7.6 mp
Regim Inaltime 4 / 4
Etaj 4
Nr. camere 3 camere
Nr. bai 1
Nr. balcoane 2 balcoane
Confort Lux
Compartimentare Semidecomandat
Tip constructie In bloc
Status constructie Finalizat
Disponibila incepand cu 2024-01-19
Judet Bucuresti
Oras/ Sector Sector 1
Zona Aviatiei
Gps lat 44.483623
Gps lng 26.093450
Facilitati
Curent electric
Internet Wireless
Internet prin cablu
Internet prin Dial-Up
Cablu TV
Internet prin fibra optica
Interfon
Geamuri termopan
Repartitoare
Balcon inchis
Parchet
Apometre
Gresie
Telefon
Faianta
Gaz
Calorifere
Mobilat
Aer conditionat
Bucatarie mobilata
Bloc reabiliat termic
I Apartament 3 camere I Aviatiei I Metrou Aurel Vlaicu
Proprietate vanduta
Ai o proprietate similara? Vinde-o cu noi.
  Vinde apartament  
 
  
  
  
  
  
  
  
  
  
  
  
  
  
   
   
   
   
   
  
  
   
   
   
   
   
  
  
   
   
   
   
   
  
  
   
   
   
   
   
  
  
   
   
   
   
   
  
  
   
   
   
   
   
  
  
   
   
   
   
   
  
   
   
   
   
  