Aviatiei 3 camere 128.29 mp 10 2022

SVN RESIDENTIALIST va prezinta un apartament spectaculos cu o suprafata utila de 128 mp, la care se adauga doua terase spatioase de 14 mp si respectiv 9 mp, situat la etajul 10 al exclusivistului proiect One Herastrau Towers. Aceasta locuinta moderna ofera un stil de viata rafinat, cu finisaje premium si un design contemporan, perfect pentru cei care doresc confort si eleganta intr-o zona de top.

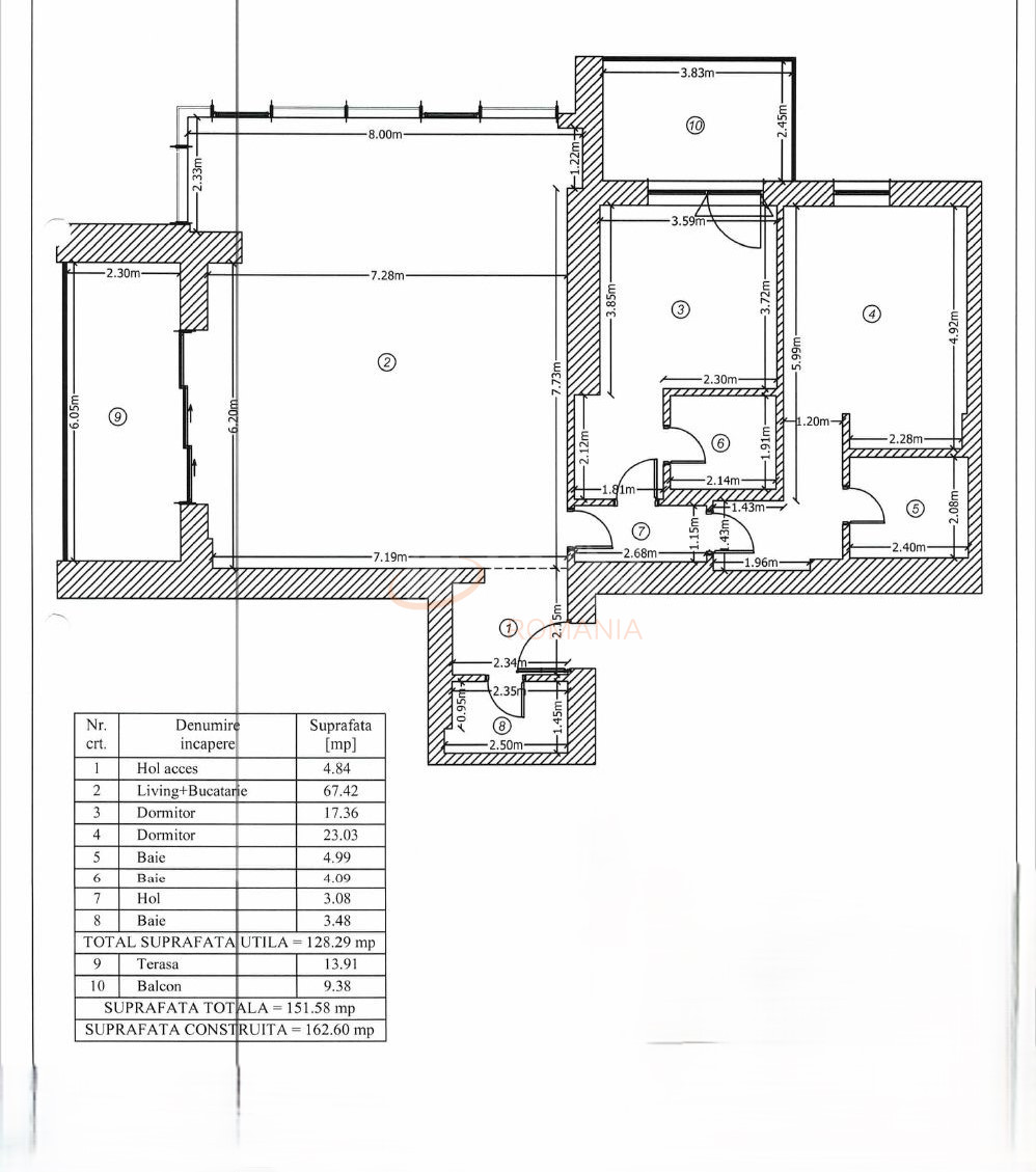
Livingul generos, impreuna cu bucataria open space, se intind pe o suprafata impresionanta de 67,5 mp, oferind un spatiu perfect pentru relaxare, socializare si divertisment. Suprafetele vitrate mari inunda apartamentul cu lumina naturala, creand o atmosfera calda si primitoare. Cele doua dormitoare sunt mari si foarte bine luminate, iar dormitorul matrimonial dispune de baie proprie, oferind intimitate si confort.

Apartamentul este echipat cu incalzire prin pardoseala, gresie, faianta si parchet de cea mai buna calitate, iar tamplaria din aluminiu si fatada ventilata asigura eficienta energetica si confort termic pe tot parcursul anului. In plus, cele doua terase va ofera spatii ideale pentru relaxare in aer liber, cu o priveliste frumoasa asupra orasului.

Apartamentul se vinde complet mobilat si utilat, pregatit pentru a deveni caminul perfect al noilor proprietari. In subteran, aveti la dispozitie doua locuri de parcare, oferind un plus de comoditate intr-o zona in care locurile de parcare sunt esentiale.

Complexul One Herastrau Towers beneficiaza de supraveghere video 24/7, paza umana si o fatada ventilata care contribuie la un mediu sigur si confortabil. Situat la doar 15 minute de mers pe jos de Promenada Mall si Parcul Herastrau, aceasta locuinta ofera acces facil la zonele de agrement si cumparaturi, intr-o locatie de exceptie.

Va asteptam la vizionare.

An constructie 2022

Suprafata construita 162.6 mp

Suprafata utila 128.29 mp

Regim Inaltime 10 / 12

Etaj 10

Nr. camere 3 camere

Nr. bai 3

Nr. balcoane 2 balcoane

Confort 1

Compartimentare Semidecomandat

Tip constructie In bloc

Status constructie Finalizat

Disponibila incepand cu 2024-11-12

Judet Bucuresti

Oras/ Sector Sector 1

Zona Aviatiei

Gps lat 44.486286

Gps lng 26.092575

Nr. terase 2

Curent electric

Internet Wireless

Interfon

Supraveghere video

Supraveghere 24/7

Cablu TV

Geamuri termopan

Parchet

Gresie

Loc parcare subteran

Faianta

Gaz

Lift

Apartament 3 camere mobilat ONE HERASTRAU TOWERS l 2 locuri de parcare incluse

Proprietate vanduta

Ai o proprietate similara? Vinde-o cu noi.
Vinde apartament

Cod: REA1021349

Proprietati similare

Bucuresti, Herastrau, Nordului

Apartament, 3 camere

140 mp 5 2008

590.000 EUR

Detalii

Bucuresti, Herastrau

Apartament, 3 camere

110 mp 2 2017

650.000 EUR

Detalii

Bucuresti, Herastrau

3 camere cu loc parcare subteran inclus

102 mp P 2020

635.000 EUR

Detalii
Exclusiv Discount

Bucuresti, Herastrau

3 camere cu loc parcare subteran inclus

129.26 mp 4 2006

599.000 EUR

Detalii

Bucuresti, Aviatiei

Apartament, 3 camere

97 mp P 2022

599.900 EUR

Detalii

Bucuresti, Aviatiei

Apartament, 3 camere

97 mp P 2021

590.000 EUR

Detalii

Bucuresti, Dorobanti, Primaverii

3 camere cu loc parcare exterior inclus

115.59 mp 3 2002

650.000 EUR

Detalii

Bucuresti, Floreasca

Apartament, 3 camere

103.68 mp 2 2009

630.000 EUR

Detalii
Apartamente 3 camere vandute in Aviatiei, Bucuresti Apartamente 3 camere de vanzare in Aviatiei, Bucuresti

Afla primul de cele mai bune oferte
inainte sa ajunga pe piata

Aboneaza-te la newsletter

Aboneaza-te la notificari