Aviatiei 3 camere 83 mp 1 2020

SVN Romania va propune spre achizitie un apartament de 3 camere complet mobilat si utilat situat in complexul Cloud9, in cea mai dezvoltata zona de birouri si la 3 minute de Metroul Aurel Vlaicu.

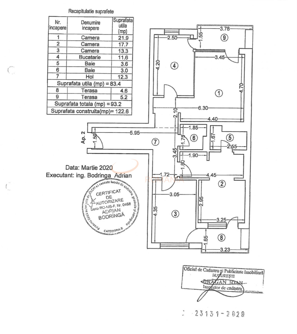
Apartamentul este situat la etajul 1 din 11, este decomandat, fiind compus din: hol intrare, living, bucatarie inchisa cu perete din sticla, 2 dormitoare, 2 bai si 2 balcoane. Suprafata utila a apartamentului este de 83,4 mp plus cele 2 balcoane de 4,6 mp si 5,2 mp, astfel suprafata totala este de 93,2 mp.

Apartamentul a fost mobilat de echipa de designeri de la Noblesse Bucuresti si este utilat complet.
Apartamentul este luminos, cu spatii mari vitrate, avand un design minimalist si functional.

Apartamentul a fost utilizat foarte putin si se vinde complet mobilat si utilat, exact cum este prezentat in fotografii.

Finisajele si dotarile cladirilor si apartamentelor din complex au acordat o atentie deosebita detaliilor, avand materiale de inalta calitate si finisaje de top.

Complexul beneficiaza de paza permanenta, loc de joaca pentru copii si control acces auto.

Pentru mai multe informatii sau programarea unei vizionari, va rog sa ma contactati.

An constructie 2020

Suprafata construita 122 mp

Suprafata utila 83 mp

Regim Inaltime 1 / 11

Etaj 1

Nr. camere 3 camere

Nr. bai 2

Nr. balcoane 2 balcoane

Confort 1

Compartimentare Decomandat

Tip constructie In bloc

Status constructie Finalizat

Disponibila incepand cu 2025-03-05

Judet Bucuresti

Oras/ Sector Sector 1

Zona Aviatiei

Gps lat 44.484719

Gps lng 26.108476

Curent electric

Internet Wireless

Interfon

Detector de gaze

Supraveghere video

Supraveghere 24/7

Cablu TV

Geamuri termopan

Parchet

Gresie

Faianta

Gaz

Incalzire proprie

Calorifere

WC serviciu

Mobilat

Aer conditionat

Bucatarie mobilata

Lift

3 Camere Mobilat Utilat I Cloud9 Residence

Proprietate vanduta

Ai o proprietate similara? Vinde-o cu noi.
Vinde apartament

Cod: REA1022917

Proprietati similare

Bucuresti, Aviatiei

Apartament, 3 camere

90.81 mp 6 2026

271.000 EUR

Detalii

Bucuresti, Aviatiei

Apartament, 3 camere

85 mp 1 2025

305.000 EUR

Detalii

Bucuresti, Aviatiei

Apartament, 3 camere

86.5 mp 3 2024

290.000 EUR

Detalii

Bucuresti, Pipera

Apartament, 3 camere

78 mp 3 2026

291.730 EUR

Detalii

Bucuresti, Floreasca, Barbu Vacarescu

3 camere cu loc parcare subteran inclus

107 mp 5 2010

305.000 EUR

Detalii

Bucuresti, Floreasca, Barbu Vacarescu

Apartament, 3 camere

107 mp 4 2012

295.000 EUR

Detalii

Bucuresti, Pipera

Apartament, 3 camere

67 mp 6 2023

255.000 EUR

Detalii
Apartamente 3 camere vandute in Aviatiei, Bucuresti Apartamente 3 camere de vanzare in Aviatiei, Bucuresti

Afla primul de cele mai bune oferte
inainte sa ajunga pe piata

Aboneaza-te la newsletter

Aboneaza-te la notificari