Aviatiei 3 camere 117.15 mp 1 2024

SVN Residentialist Pipera propune spre vanzare un apartament cu 3 camere, situat intr-o zona premium din nordul Bucurestiului, aproape de centre comerciale, parcuri si hub-uri de business. Proiectul se remarca prin constructie solida, compartimentari eficiente si dotari moderne.

Dotari si finisaje premium:

Structura pe cadre de beton, compartimentari interioare din caramida Porotherm Profi 12 (fara rigips)

Tamplarie exterioara Synego cu 7 camere si geam tripan

Incalzire in pardoseala TeCe Germania – confort si economie de energie

Centrala proprie Viessmann – conform noilor reglementari legale

Instalatii electrice Gewiss Germania

Glafuri din granit, finisaje din marmura si granit in casa scarii

Balcoane cu sticla securizata si izolatii suplimentare ale fatadelor

Lifturi Schindler si video interfon touchscreen

Usi interioare Pinum Italia

Apartamentul se preda finisat la alegerea cumparatorului, in termen de 30 de zile de la semnarea contractului de vanzare

Disponibilitate:

Etajele disponibile: 1, 2, 3 si 4

Avantaje:

Localizare exclusivista in nordul Bucurestiului

Materiale premium si finisaje durabile

Loc de parcare disponibil – 20.000 euro

Daca esti in cautarea unui apartament spatios, modern si bine construit, acest proiect reprezinta alegerea perfecta pentru un camin premium in nordul Capitalei. SVN Residentialist te asteapta la vizionare!

An constructie 2024

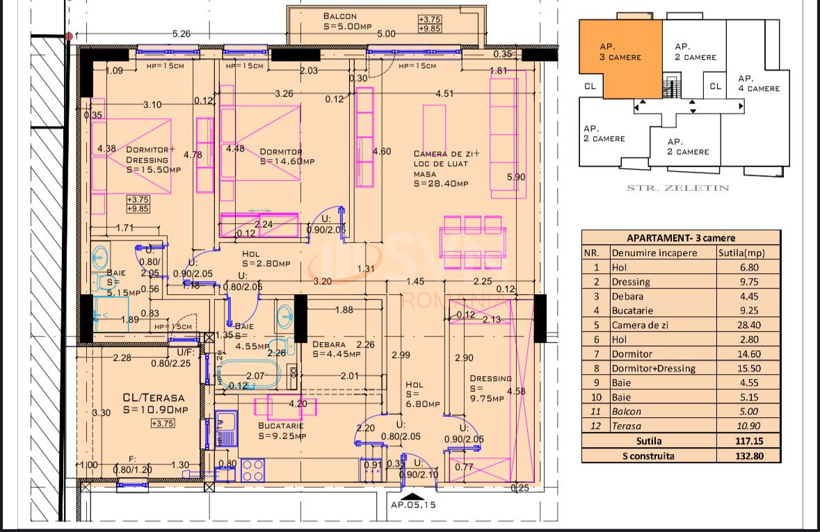
Suprafata construita 132.8 mp

Suprafata utila 117.15 mp

Suprafata terasa 10 mp

Regim Inaltime 1 / 4

Etaj 1

Nr. camere 3 camere

Nr. bai 2

Nr. balcoane 1 balcon

Confort Lux

Compartimentare Decomandat

Tip constructie In bloc

Status constructie Finalizat

Disponibila incepand cu 2025-09-10

Judet Bucuresti

Oras/ Sector Sector 1

Zona Aviatiei

Gps lat 44.490152

Gps lng 26.092479

Nr. terase 1

Interfon

Sistem de alarma

Detector de gaze

Supraveghere 24/7

Geamuri termopan

Parchet

Gresie

Telefon

Loc parcare subteran

Faianta

Incalzire proprie

Incalzire prin pardoseala

Aer conditionat

Lift

Valoare proprietate (€)

Perioada (ani)

Procent avans (41.250 €)


Suma creditata 233.750

Dobanda 4.9%

Rata lunara 5.779 lei

Broker Imobiliar

Nicoleta Stoican , Consultant imobiliar Vezi toate proprietatile

0317100200

Apartament spatios 3 camere I Aviatiei

Pret vanzare
275.000 €

Telefon Consultant imobiliar
0317100200

Cod: REA1025222

Proprietati similare

Bucuresti, Aviatiei

Apartament, 3 camere

79 mp P 2021

285.000 EUR

Detalii

Bucuresti, Aviatiei

Apartament, 3 camere

117.15 mp 4 2024

264.000 EUR

Detalii

Bucuresti, Aviatiei

Apartament, 3 camere

112.75 mp 2 2025

300.000 EUR

Detalii

Bucuresti, Aviatiei

Apartament, 3 camere

85.95 mp 2 2025

250.000 EUR

Detalii

Bucuresti, Aviatiei

Apartament, 3 camere

94.75 mp 2 2025

295.000 EUR

Detalii

Bucuresti, Aviatiei

Apartament, 3 camere

106 mp P 1988

280.000 EUR

Detalii

Bucuresti, Aviatiei

Apartament, 3 camere

86.5 mp 3 2024

290.000 EUR

Detalii

Bucuresti, Aviatiei

Apartament, 3 camere

90.81 mp 6 2026

271.000 EUR

Detalii
Apartamente 3 camere vandute in Aviatiei, Bucuresti Apartamente 3 camere de vanzare in Aviatiei, Bucuresti

Afla primul de cele mai bune oferte
inainte sa ajunga pe piata

Aboneaza-te la newsletter

Aboneaza-te la notificari