Baneasa 3 camere 58 mp 2 2021

SVN Romania va propune spre vanzare un apartament cu 3 camere situat in Zona Jandarmeriei - Sisesti.

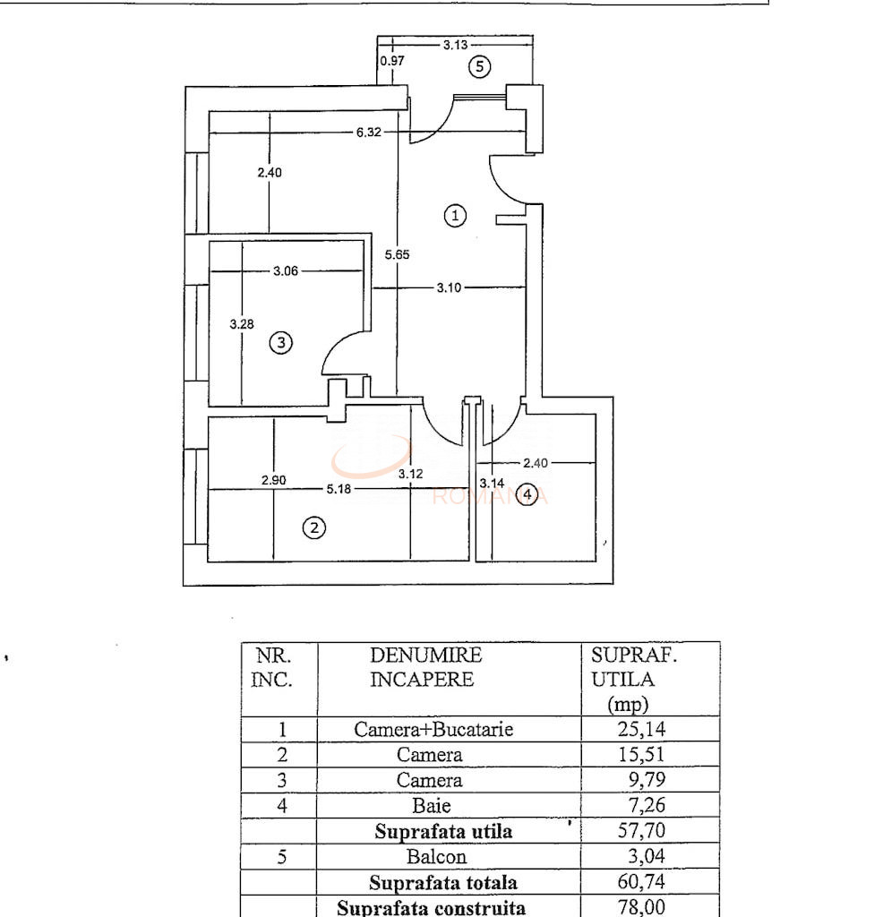
Apartamentul este situat la etajul 2 al unui imobil cu P+3 etaje construit in anul 2021. Are o suprafata totala de 61 mp si o suprafata utila de 58 mp, plus un balcon de 3 mp.

Este semidecomandat si compartimentat astfel: living cu bucatarie open space si acces la balcon, doua dormitoare, o baie cu cada frumos mobilata si utilata, un balcon.

Proprietatea se vinde partial mobilata si dispune de urmatoarele finisaje si dotari:
- usi Pinum
- geamuri tripan (obtinute prin aceeasi modalitate ca si geamurile termopan numai ca se folosesc trei foi de sticla)
- obiecte sanitare Cersanit
- baterii Grohe
- centrala termica Ariston
- aer conditionat

Acces facil la mijloacele de transport in comun: STB 205 (Straulesti - Gara de Nord si 261 (Mall Baneasa - Piata Presei Libere) la 5 minute de mers pe jos; statia de metrou Straulesti la 15 minute de mers pe jos.

Certificatul energetic va fi disponibil la momentul vanzarii!

Programati o vizionare acum: aceasta proprietate este probabil sa se vanda rapid.

An constructie 2021

Suprafata construita 78 mp

Suprafata utila 58 mp

Suprafata terasa 3 mp

Regim Inaltime 2 / 3

Etaj 2

Nr. camere 3 camere

Nr. bai 1

Nr. balcoane 1 balcon

Confort 1

Tip constructie In bloc

Status constructie Finalizat

Disponibila incepand cu 2022-11-29

Judet Bucuresti

Oras/ Sector Sector 1

Zona Baneasa

Gps lat 44.505852

Gps lng 26.057169

Curent electric

Internet prin fibra optica

Geamuri termopan

Parchet

Gresie

Faianta

Gaz

Incalzire proprie

Aer conditionat

Bucatarie mobilata

3 Camere Jandarmeriei 58 mp

Proprietate vanduta

Ai o proprietate similara? Vinde-o cu noi.
Vinde apartament

Cod: REA1013372

Proprietati similare

Bucuresti, Gara De Nord, Grivita

Apartament, 3 camere

57.8 mp 3 1961

134.000 EUR

Detalii

Bucuresti, Tei, Lacul Tei

Apartament, 3 camere

69 mp 10 1986

130.000 EUR

Detalii

Bucuresti, Tei

Apartament, 3 camere

63.87 mp 5 1978

135.000 EUR

Detalii

Bucuresti, Gara De Nord, Grivita

Apartament, 3 camere

70 mp 3 1950

124.900 EUR

Detalii

Bucuresti, Tei, Lacul Tei

Apartament, 3 camere

67.11 mp P 1987

124.000 EUR

Detalii

Bucuresti, Militari, Uverturii

Apartament, 3 camere

68.85 mp 1 2025

123.900 EUR

Detalii

Bucuresti, Tei, Teiul Doamnei

3 camere cu loc parcare exterior inclus

64 mp 3 1973

118.500 EUR

Detalii

Bucuresti, Colentina, Doamna Ghica

Apartament, 3 camere

64 mp 1 1976

120.000 EUR

Detalii
Apartamente 3 camere vandute in Baneasa, Bucuresti Apartamente 3 camere de vanzare in Baneasa, Bucuresti

Afla primul de cele mai bune oferte
inainte sa ajunga pe piata

Aboneaza-te la newsletter

Aboneaza-te la notificari