Bucurestii Noi 3 camere 97 mp 1 2021

Va propunem spre vanzare apartamente de 2, 3 si 4 camere sitauate intr-un imobil nou, in curs de finisare. Atat apartamentele cat si imobilul beneficiaza de finisaje de foarte buna calitate, imobilul va fi dotat cu lift iar interioarele vor benefcia de o tencuiala speciala. Imobilul se afla la 10 minute de mers pe jos pana la metroul parc Bazilescu sau Jiului, iar accesul auto se poate face atat din bulevardul Bucurestii noi cat si din soseaua Chitilei. Apartamentele se predau finisate, cumparatorul avand posibilitatea alegerii finisajelor din stadiul acesta. Pe masura ce finisajele comune ale imobilului vor avansa, proprietarul va finisa de la sine si apartamentele.
Certificatul energetic va fi prezentat la vanzare.

An constructie 2021

Suprafata construita 120 mp

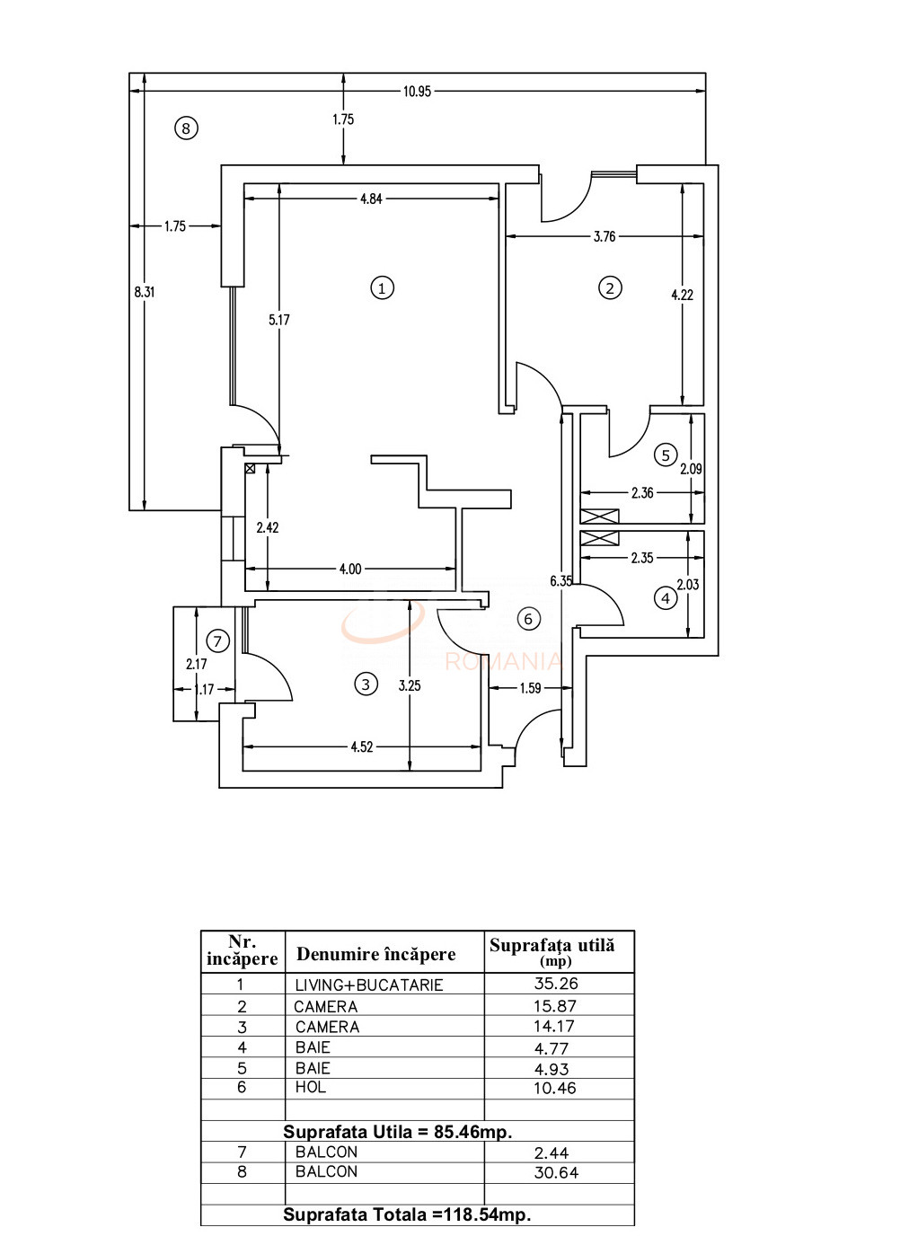
Suprafata utila 97 mp

Suprafata terasa 30

Regim Inaltime 1 / 3

Etaj 1

Nr. camere 3 camere

Nr. bai 2

Nr. balcoane 1 balcon

Confort 1

Tip constructie In bloc

Status constructie Finalizat

Disponibila incepand cu 2022-04-13

Judet Bucuresti

Oras/ Sector Sector 1

Zona Bucurestii Noi

Gps lat 44.485943

Gps lng 26.038038

Complex rezidential Rezidential Bucurestii Noi

Nr. terase 1

Detector de gaze

Interfon

Acoperis mansardat

Curent electric

Geamuri termopan

Parchet

Apometre

Gresie

Faianta

Gaz

Incalzire proprie

WC serviciu

Lift

3 Camere cu terasa si lift Bucurestii Noi

Proprietate vanduta

Ai o proprietate similara? Vinde-o cu noi.
Vinde apartament

Cod: REA1006861

Proprietati similare

Bucuresti, Bucurestii Noi, Pajura

Apartament, 3 camere

63.71 mp 1 1963

154.000 EUR

Detalii

Bucuresti, Bucurestii Noi, Chitila

Apartament, 3 camere

87 mp P 2025

175.000 EUR

Detalii

Bucuresti, Bucurestii Noi, Chitila

Apartament, 3 camere

87 mp 1 2025

150.000 EUR

Detalii

Bucuresti, Baneasa, Sisesti

Apartament, 3 camere

90 mp P 2020

173.000 EUR

Detalii

Bucuresti, Bucurestii Noi, Straulesti

Apartament, 3 camere

73 mp 3 2020

174.900 EUR

Detalii

Bucuresti, Bucurestii Noi

Apartament, 3 camere

73 mp 4 2024

158.000 EUR

Detalii

Bucuresti, Bucurestii Noi, Chitila

3 camere cu loc parcare exterior inclus

87.1 mp 3 2022

175.000 EUR

Detalii
Exclusiv Discount

Bucuresti, 1 Mai, Titulescu

Apartament, 3 camere

70 mp 8 1976

145.900 EUR

Detalii
Apartamente 3 camere vandute in Bucurestii Noi, Bucuresti Apartamente 3 camere de vanzare in Bucurestii Noi, Bucuresti

Afla primul de cele mai bune oferte
inainte sa ajunga pe piata

Aboneaza-te la newsletter

Aboneaza-te la notificari