Bucurestii Noi 3 camere 66 mp 10 2020

SVN va propune spre vanzare un apartament de 3 camere semidecomandat, situat la etajul 10 din 11 al complexului rezidential Afi City, cu o suprafata utila de 66 mp. Acest apartament modern este ideal pentru un stil de viata confortabil si functional.

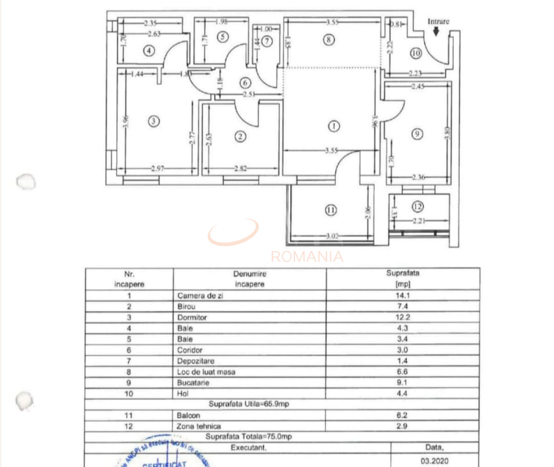
Compartimentarea este eficienta si include:

Living generos de 20.7 mp, perfect pentru relaxare si timp petrecut cu familia.
Doua dormitoare: unul de 12.2 mp, potrivit ca dormitor matrimonial, si unul de 7.4 mp, ideal pentru camera copilului sau birou.
Doua bai: una de 4.3 mp, dotata cu cada si geam pentru ventilatie naturala, si una de 3.4 mp, echipata cu cabina de dus.
Debara de 1.4 mp, utila pentru depozitare.
Balcon de 6.2 mp, un spatiu exterior placut pentru relaxare.
Zona tehnica de 2.9 mp, care poate fi folosita ca si spatiu de depozitare suplimentar.
Apartamentul este dotat cu centrala proprie, incalzire in pardoseala si aer conditionat, asigurand un confort termic optim pe tot parcursul anului. Se vinde complet mobilat si utilat, astfel incat noul proprietar sa se poata muta imediat.

Pentru un plus de confort, se poate achizitiona separat un loc de parcare la pretul de 8.000 Euro.

In plus, apartamentul beneficiaza de o locatie excelenta, fiind situat la doar 8 minute de mers pe jos de statia de metrou Laminorului, oferind acces rapid la restul orasului. Complexul este bine conectat la mijloace de transport si facilitati urbane, oferind un mediu ideal pentru locuit.

An constructie 2020

Suprafata construita 86.25 mp

Suprafata utila 66 mp

Suprafata terasa 6.2 mp

Regim Inaltime 10 / 11

Etaj 10

Nr. camere 3 camere

Nr. bai 1

Nr. balcoane 1 balcon

Confort 1

Compartimentare Decomandat

Tip constructie In bloc

Status constructie Finalizat

Disponibila incepand cu 2024-08-28

Judet Bucuresti

Oras/ Sector Sector 1

Zona Bucurestii Noi

Gps lat 44.496699

Gps lng 26.034631

Interfon

Internet prin Dial-Up

Internet Wireless

Internet prin cablu

Curent electric

Supraveghere video

Sistem de alarma

Geamuri termopan

Parchet

Gresie

Faianta

Gaz

Incalzire proprie

Incalzire prin pardoseala

Calorifere

Mobilat

Aer conditionat

Bucatarie mobilata

Lift

Apartament 3 Camere l Bucurestii Noi l Afi City

Proprietate vanduta

Ai o proprietate similara? Vinde-o cu noi.
Vinde apartament

Cod: REA1020353

Proprietati similare

Bucuresti, Baneasa, Sisesti

Apartament, 3 camere

97.23 mp 3 2024

199.000 EUR

Detalii

Bucuresti, Baneasa, Sisesti

Apartament, 3 camere

89.46 mp 1 2024

189.000 EUR

Detalii

Bucuresti, Baneasa, Sisesti

Apartament, 3 camere

76.35 mp 1 2026

198.200 EUR

Detalii

Bucuresti, Baneasa, Sisesti

Apartament, 3 camere

84.92 mp P 2010

199.000 EUR

Detalii

Bucuresti, Sector 1, Bd. Laminorului

Apartament, 3 camere

90.2 mp 1 2026

190.000 EUR

Detalii

Bucuresti, Baneasa, Sisesti

Apartament, 3 camere

77.38 mp 3 2008

187.000 EUR

Detalii

Bucuresti, Bucurestii Noi, Chitila

3 camere cu loc parcare exterior inclus

87.1 mp 3 2022

175.000 EUR

Detalii

Bucuresti, Militari, Lacul Morii

Apartament, 3 camere

103 mp 11 2024

175.000 EUR

Detalii
Apartamente 3 camere vandute in Bucurestii Noi, Bucuresti Apartamente 3 camere de vanzare in Bucurestii Noi, Bucuresti

Afla primul de cele mai bune oferte
inainte sa ajunga pe piata

Aboneaza-te la newsletter

Aboneaza-te la notificari