Calea Plevnei 3 camere 177 mp 11 2010

Va supunem atentiei un Penthouse sitiuat in Ansamblul Orhideea Gardens. Ansamblul rezidential cuprinde 5 imobile si aproape 600 locuri de parcare.

Parterul blocurilor are peste 6000 mp de spatii multifunctionale care gazduiesc: birouri, o clinica dentara, un club de fitness si spa, o piscina dedicata adultilor si una copiilor, restaurant la etajul 11 si chiar o gradinita. Etajul 11 al fiecarui bloc iti asterne Bucurestiul la picioare de la terasele de 90 mp ale Penthouse-urilor.

Orhideea Spa este unul dintre cele mai apreciate si renumite Spa-uri din Bucuresti avand numeroase facilitati printre care regasim: piscine acoperite, hamam, saune, zona ice & fire, salina, arii de relaxare, tepidarium s.a.

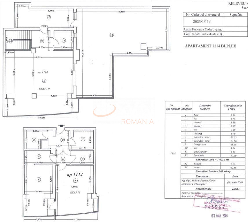
Apartamentul dispune de o suprafata utila de 177 mp la care se adauga o terasa de 83 mp.

Localizarea proiectului este una exceptionala, Carrefour Orhideea se afla la 3 minute, Piata Victoriei este la un semafor distanta iar statia de Metrou Grozavesti este la doar 3-4 minute de mers pe jos.

Exista posibilitatea achizitionarii unuia sau mai multor locuri de parcare.

Avand in vedere locatia ferita de zgomot, spatiile generoase, calitatea de top a amenajarii, acest imobil este o proprietate unica, potrivita pentru rezidenta.


Pentru alte detalii dar si pentru vizionari, va rog sa ma contactati !

An constructie 2010

Suprafata construita 261.4 mp

Suprafata utila 177 mp

Suprafata comuna 300

Suprafata terasa 83

Regim Inaltime 11 / 11

Etaj 11

Nr. camere 3 camere

Nr. bai 2

Nr. balcoane 0 balcoane

Confort 1

Tip constructie In bloc

Status constructie Finalizat

Disponibila incepand cu 2021-02-22

Judet Bucuresti

Oras/ Sector Sector 1

Zona Calea Plevnei

Gps lat 44.444184

Gps lng 26.065785

Nr. terase 1

Detector de gaze

Cablu TV

Supraveghere video

Geamuri termopan

Repartitoare

Parchet

Apometre

Gresie

Faianta

Gaz

Incalzire proprie

WC serviciu

Aer conditionat

Bloc reabiliat termic

Lift

Penthouse Orhideea Gardens

Proprietate vanduta

Ai o proprietate similara? Vinde-o cu noi.
Vinde apartament

Cod: REA1006362

Proprietati similare

Bucuresti, Ultracentral, Piata Victoriei

Apartament, 3 camere

79 mp 4 2022

410.000 EUR

Detalii

Bucuresti, 1 Mai, Domenii

3 camere cu loc parcare subteran inclus

75 mp 7 2019

365.000 EUR

Detalii

Bucuresti, 13 Septembrie

Apartament, 3 camere

151 mp 3 2025

430.500 EUR

Detalii

Bucuresti, Dorobanti, Capitale

Apartament, 3 camere

74.8 mp 1 1960

420.000 EUR

Detalii

Bucuresti, Dorobanti, Primaverii

3 camere cu loc parcare subteran inclus

80 mp P 2004

415.000 EUR

Detalii

Bucuresti, Dorobanti, Primaverii

Apartament, 3 camere

90 mp 1 1965

405.000 EUR

Detalii

Bucuresti, Floreasca

Apartament, 3 camere

102 mp 5 2011

399.000 EUR

Detalii

Bucuresti, Dorobanti

Apartament, 3 camere

92.1 mp 3 2010

406.000 EUR

Detalii
Apartamente 3 camere vandute in Ultracentral, Bucuresti Apartamente 3 camere de vanzare in Ultracentral, Bucuresti

Afla primul de cele mai bune oferte
inainte sa ajunga pe piata

Aboneaza-te la newsletter

Aboneaza-te la notificari