Chitila 2 camere 45 mp 3 2022

Ansamblul de locuinte Ambient Boutique se afla pe Soseaua Chitilei in proximitatea statiei de metrou Jiului cu acces facil catre spatiile comerciale.

Imobilul dispune de garsoniere, apartamente cu 2, 3 camere si este dispus pe D+P+5E. Structura de rezistenta este din fier beton, iar compartimentarile din caramida porotherm.
In subteran sunt disponibile locuri de parcare.

Apartamentele beneficiaza de centrale termice individuale, totul fiind contorizat, costuriile find in functie de consum.
Exista posibilitatea ca finisajele sa fie alese de catre cumparator, dezvoltatorul putand pune la dispozitie o echipa de specialisti care se vor ocupa de montarea si finisarea apartamentelor. Toate acestea, fiind incluse in pretul de achizitie al apartamentului.

Momentan nu detinem informatii cu privire la clasa energetica a imobilului

An constructie 2022

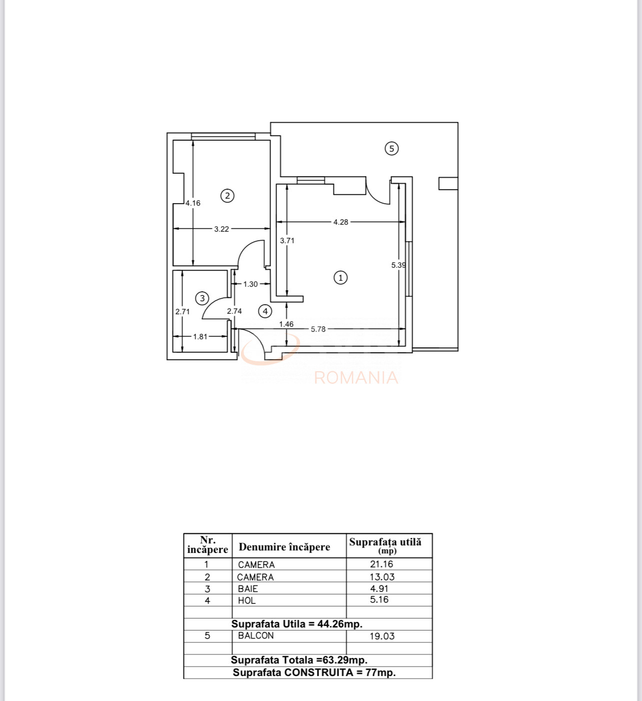
Suprafata construita 77 mp

Suprafata utila 45 mp

Suprafata terasa 19 mp

Regim Inaltime 3 / 5

Etaj 3

Nr. camere 2 camere

Nr. bai 1

Nr. balcoane 1 balcon

Confort 1

Tip constructie In bloc

Status constructie Finalizat

Disponibila incepand cu 2022-03-31

Judet Bucuresti

Oras/ Sector Sector 1

Zona Chitila

Gps lat 44.480017

Gps lng 26.035802

Complex rezidential Ambient Residence

Internet Wireless

Internet prin cablu

Cablu TV

Detector de gaze

Interfon

Internet prin fibra optica

Curent electric

Geamuri termopan

Parchet

Apometre

Gresie

Faianta

Gaz

Incalzire proprie

Bloc reabiliat termic

Lift

Ambient Residence de vanzare 2 camere -Sos Chitile 5 min metrou

Proprietate vanduta

Ai o proprietate similara? Vinde-o cu noi.
Vinde apartament

Cod: REA1008537

Proprietati similare

Bucuresti, 1 Mai

Apartament, 2 camere

45.22 mp 7 1962

105.000 EUR

Detalii

Bucuresti, Bucurestii Noi, Chitila

Apartament, 2 camere

49.69 mp 4 2024

110.000 EUR

Detalii

Bucuresti, Crangasi

Apartament, 2 camere

52 mp P 1977

105.000 EUR

Detalii

Bucuresti, Gara De Nord

Apartament, 2 camere

43 mp 4 1965

94.999 EUR

Detalii

Bucuresti, Gara De Nord

Apartament, 2 camere

40 mp 4 1965

97.999 EUR

Detalii

Bucuresti, Floreasca, Barbu Vacarescu

2 camere cu loc parcare exterior inclus

48 mp 3 1980

106.900 EUR

Detalii

Bucuresti, Floreasca

Apartament, 2 camere

40 mp D 1965

109.000 EUR

Detalii

Bucuresti, Sector 1, P-ta Romana

Apartament, 2 camere

37.49 mp 2 1959

96.000 EUR

Detalii
Apartamente 2 camere vandute in Bucurestii Noi, Bucuresti Apartamente 2 camere de vanzare in Bucurestii Noi, Bucuresti

Afla primul de cele mai bune oferte
inainte sa ajunga pe piata

Aboneaza-te la newsletter

Aboneaza-te la notificari