Cismigiu 3 camere 102 mp 1 1947

SVN Romania va propune spre vanzare un apartament cu 3 camere, renovat integral in 2025, situat in apropiere de Parcul Cismigiu – o zona cu farmec istoric, strazi verzi si cladiri emblematice, ideala pentru cei care apreciaza eleganta si energia centrului Bucurestiului.

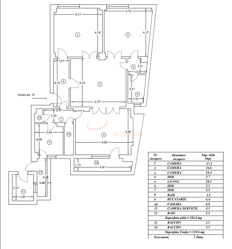
Apartamentul are o suprafata de peste 100 mp utili si se afla intr-un bloc anvelopat, beneficiind de o buna eficienta energetica. Dispune de 2 bai, 2 balcoane si un spatiu de depozitare generos, ceea ce il face extrem de practic pentru o familie sau pentru cei care isi doresc confort si functionalitate.

Printre avantajele suplimentare se numara centrala termica proprie, instalatia electrica inlocuita in 2011 si verificata recent, compartimentare practica cu camere luminoase si spatii generoase.

Pozitionarea este excelenta, in imediata apropiere a parcului si a centrului vechi, cu acces rapid catre zone culturale, restaurante, cafenele si institutii de prestigiu. Este o alegere inspirata atat pentru locuire, cat si pentru investitie.

Cladirea este incadrata in clasa de risc seismic II.

Pentru mai multe detalii sau pentru a programa o vizionare, va invitam sa ne contactati.

An constructie 1947

Suprafata construita 111 mp

Suprafata utila 102 mp

Regim Inaltime 1 / 7

Etaj 1

Nr. camere 3 camere

Nr. bai 2

Nr. balcoane 2 balcoane

Confort 1

Compartimentare Decomandat

Tip constructie In bloc

Status constructie Finalizat

Disponibila incepand cu 2025-10-29

Judet Bucuresti

Oras/ Sector Sector 1

Zona Cismigiu

Gps lat 44.437821

Gps lng 26.087893

Seismic risk 7

Curent electric

Internet prin cablu

Internet Wireless

Interfon

Cablu TV

Parchet

Gresie

Faianta

Gaz

Calorifere

Bloc reabiliat termic

Valoare proprietate (€)

Perioada (ani)

Procent avans (30.750 €)


Suma creditata 174.250

Dobanda 4.9%

Rata lunara 4.308 lei

Broker Imobiliar

Alexandra Duma , Consultant imobiliar Vezi toate proprietatile

0317100200

3 Camere I Cismigiu I Renovat si Anvelopat

Pret vanzare
205.000 €

Telefon Consultant imobiliar
0317100200

Cod: REA1023492

Proprietati similare

Bucuresti, Ultracentral, Universitate (s1)

Apartament, 3 camere

86.3 mp 2 1935

199.000 EUR

Detalii

Bucuresti, Ultracentral, Piata Romana

Apartament, 3 camere

63.91 mp 1 1960

215.000 EUR

Detalii

Bucuresti, Ultracentral, Piata Romana

Apartament, 3 camere

90 mp 5 1960

186.000 EUR

Detalii

Bucuresti, Ultracentral, Universitate (s1)

Apartament, 3 camere

76 mp 1 1950

199.000 EUR

Detalii

Bucuresti, Ultracentral, Piata Victoriei

Apartament, 3 camere

65.09 mp 6 1978

190.000 EUR

Detalii

Bucuresti, Unirii, Splaiul Unirii (s3)

Apartament, 3 camere

64 mp 4 1980

197.000 EUR

Detalii
Exclusiv Discount

Bucuresti, Unirii, Unirii (s3)

Apartament, 3 camere

85 mp 1 1935

185.000 EUR

Detalii

Bucuresti, Unirii, Piata Unirii (s3)

Apartament, 3 camere

90.85 mp 2 2008

200.000 EUR

Detalii
Apartamente 3 camere vandute in Ultracentral, Bucuresti Apartamente 3 camere de vanzare in Ultracentral, Bucuresti

Afla primul de cele mai bune oferte
inainte sa ajunga pe piata

Aboneaza-te la newsletter

Aboneaza-te la notificari