Gara De Nord 2 camere 38 mp 4 1957

SVN Romania va propune spre vanzare un apartament de 2 camere, complet mobilat si utilat, in zona Gara de Nord.

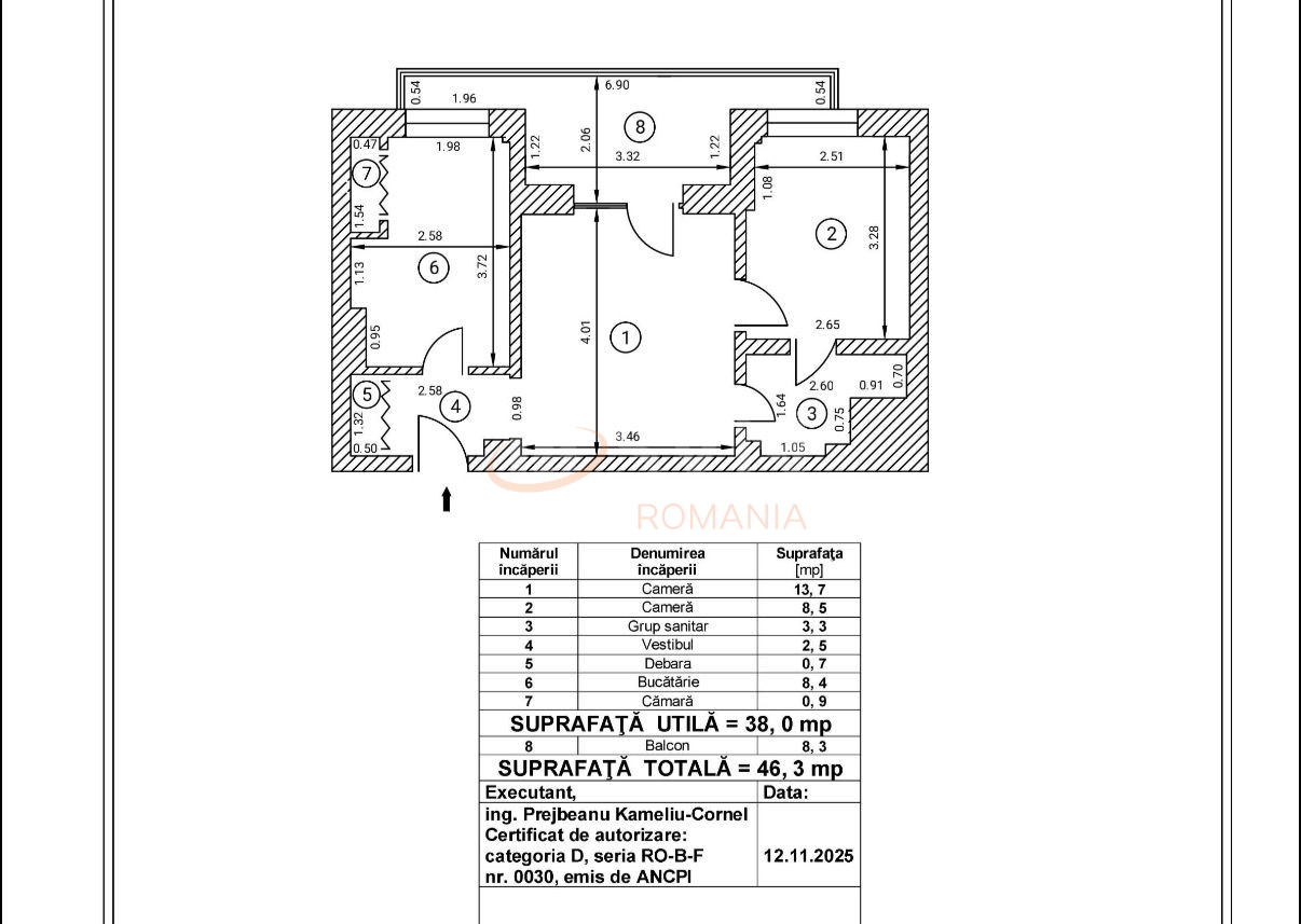
Imobilul beneficiaza de o compartimentare semidecomandata, cu o suprafata utila de 38 mp, avand o suprafata totala de 46,3 mp, incluzand balconul generos de 8,3 mp.

Apartamentul este pozitionat la etajul 4 din 7, cu vedere pe spate.

Incalzirea se realizeaza prin intermediul centralei de bloc, imobilul fiind incadrat in clasa energetica B, cu un consum eficient raportat la anul constructiei.

Anul finalizarii blocului este 1957, nefiind incadrat in nicio clasa de risc seismic. Imobilul are o structura solida din cadre de beton armat si este eligibil pentru achizitie prin credit.

Acces facil la mijloacele de transport in comun, statia de metrou Gara de Nord fiind situata la o distanta pietonala de aproximativ 2 minute, precum si acces rapid la liniile de tramvai, autobuz si troleibuz.

Zona beneficiaza de acces rapid la institutiile educationale pentru toate varstele: scoli si gradinite.

Pentru mai multe detalii sau pentru a programa o vizionare, va stau la dispozitie.

An constructie 1957

Suprafata construita 53.24 mp

Suprafata utila 38 mp

Suprafata terasa 8.3 mp

Regim Inaltime 4 / 7

Etaj 4

Nr. camere 2 camere

Nr. bai 1

Nr. balcoane 1 balcon

Confort 2

Compartimentare Semidecomandat

Tip constructie In bloc

Status constructie Finalizat

Disponibila incepand cu 2026-02-03

Judet Bucuresti

Oras/ Sector Sector 1

Zona Gara De Nord

Gps lat 44.447892

Gps lng 26.076139

Curent electric

Interfon

Geamuri termopan

Parchet

Apometre

Gresie

Faianta

Gaz

Calorifere

Mobilat

Aer conditionat

Bucatarie mobilata

Bloc reabiliat termic

Lift

Valoare proprietate (€)

Perioada (ani)

Procent avans (15.300 €)


Suma creditata 86.700

Dobanda 4.9%

Rata lunara 2.144 lei

Broker Imobiliar

Razvan Iancu , Consultant imobiliar Vezi toate proprietatile

0317100200

Apartament 2 camere II Metrou Gara de Nord

Pret vanzare
102.000 €

Telefon Consultant imobiliar
0317100200

Cod: REA1026180

Proprietati similare

Bucuresti, Gara De Nord

Apartament, 2 camere

40 mp 4 1961

98.000 EUR

Detalii

Bucuresti, Gara De Nord

Apartament, 2 camere

40 mp 4 1965

97.999 EUR

Detalii

Bucuresti, Gara De Nord

Apartament, 2 camere

43 mp 4 1965

95.999 EUR

Detalii

Bucuresti, Ultracentral, Calea Victoriei

Apartament, 2 camere

40.94 mp P 1946

100.000 EUR

Detalii

Bucuresti, Ultracentral, Sala Palatului

Apartament, 2 camere

33 mp 9 1959

98.500 EUR

Detalii

Bucuresti, Ultracentral, Piata Romana

Apartament, 2 camere

38 mp 3 1962

104.000 EUR

Detalii

Bucuresti, Giulesti

Apartament, 2 camere

54 mp 1 1962

102.000 EUR

Detalii

Bucuresti, Crangasi

Apartament, 2 camere

52 mp 4 1984

109.000 EUR

Detalii
Apartamente 2 camere vandute in Gara De Nord, Bucuresti Apartamente 2 camere de vanzare in Gara De Nord, Bucuresti

Afla primul de cele mai bune oferte
inainte sa ajunga pe piata

Aboneaza-te la newsletter

Aboneaza-te la notificari