Herastrau 3 camere 70 mp 3 2023

SVN România va propune spre vânzare un apartament cu 3 camere situat în zona Herastrau in vecinatea parcului.

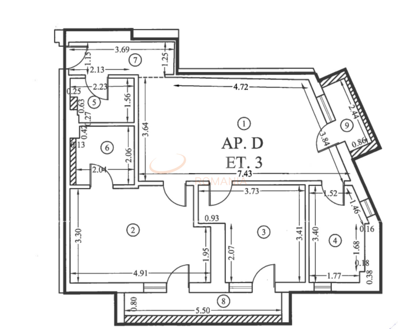
Propietatea se afla la etajul 3 din 6, are o suprafata utila de 70 mp si cuprinde trei camere, living spatios, bucatarie, 2 dormitore, 2 bai si terasa.
Atât proprietatea prezentata în anunt cât si spatiile comune ale întregului ansamblu beneficiaza de finisaje de calitate superioara.


În apropierea apartamentului veti gasi tot ce aveti nevoie în domeniul medical, spa, sala de fitness, scoli si gradinite, centre comerciale si mijloace de transportnin comun.

Nu ezitati sa ne contactati iar pentru mai multe detalii va asteptam în cadrul birourilor noastre în zona Dorobanti Capitale.
Cu deosebita consideratie,
Echipa SVN România

An constructie 2023

Suprafata construita 85 mp

Suprafata utila 70 mp

Regim Inaltime 3 / 6

Etaj 3

Nr. camere 3 camere

Nr. bai 2

Nr. balcoane 1 balcon

Confort 1

Compartimentare Decomandat

Tip constructie In bloc

Status constructie Finalizat

Disponibila incepand cu 2023-07-06

Judet Bucuresti

Oras/ Sector Sector 1

Zona Herastrau

Gps lat 44.490261

Gps lng 26.089168

Nr. terase 1

Curent electric

Internet prin fibra optica

Supraveghere video

Interfon

Supraveghere 24/7

Geamuri termopan

Parchet

Gresie

Telefon

Incalzire prin pardoseala

WC serviciu

Mobilat

Lift

Apartament 3 camere Herastrau mobilat

Proprietate vanduta

Ai o proprietate similara? Vinde-o cu noi.
Vinde apartament

Cod: REA1015246

Proprietati similare

Bucuresti, Baneasa

Apartament, 3 camere

65 mp 4 1983

199.000 EUR

Detalii

Bucuresti, Aviatiei

Apartament, 3 camere

79 mp P 2010

210.000 EUR

Detalii

Bucuresti, Herastrau

Apartament, 3 camere

67.94 mp 4 1986

195.000 EUR

Detalii

Bucuresti, Aviatiei

Apartament, 3 camere

73 mp 4 2026

187.322 EUR

Detalii

Bucuresti, Aviatiei

Apartament, 3 camere

68.9 mp 3 2027

190.000 EUR

Detalii

Bucuresti, Aviatiei

Apartament, 3 camere

71.5 mp 3 2027

185.000 EUR

Detalii

Bucuresti, Aviatiei

Apartament, 3 camere

57 mp 4 1987

179.500 EUR

Detalii

Bucuresti, Aviatiei

3 camere cu loc parcare exterior inclus

75.8 mp 4 1987

205.000 EUR

Detalii
Apartamente 3 camere vandute in Herastrau, Bucuresti Apartamente 3 camere de vanzare in Herastrau, Bucuresti

Afla primul de cele mai bune oferte
inainte sa ajunga pe piata

Aboneaza-te la newsletter

Aboneaza-te la notificari