Herastrau 3 camere 64 mp 3 2022

SVN România va propune spre vânzare un apartament cu 3 camere situat în zona Herastrau in vecinatea parcului.

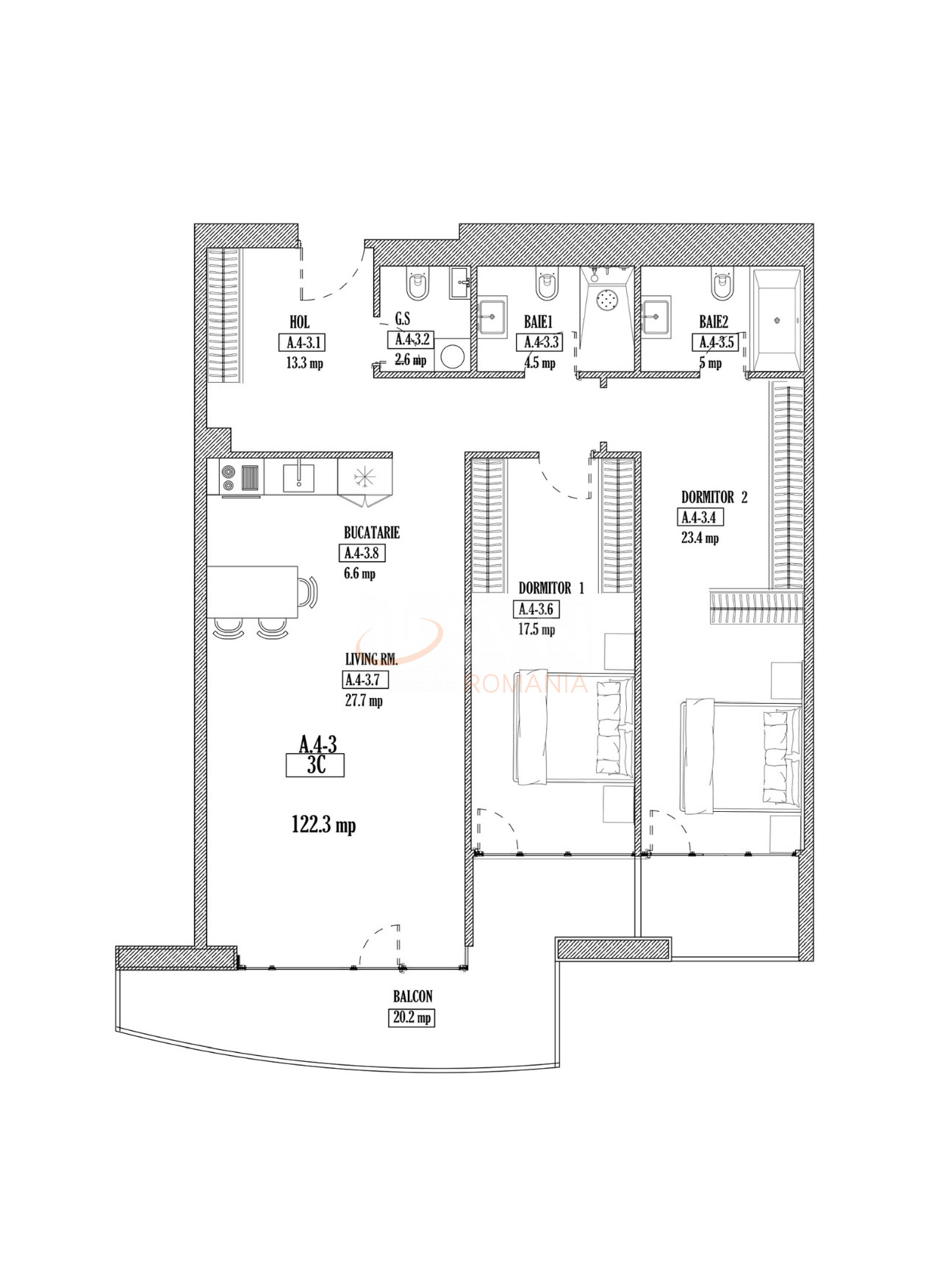
Propietatea se afla la etajul 3 din 6, are o suprafata utila de 64 mp si cuprinde trei camere, living spatios cu bucatarie, 2 dormitore, 2 bai si terasa.
Atât proprietatea prezentata în anunt cât si spatiile comune ale întregului ansamblu beneficiaza de finisaje de calitate superioara.


În apropierea apartamentului veti gasi tot ce aveti nevoie în domeniul medical, spa, sala de fitness, scoli si gradinite, centre comerciale si mijloace de transportnin comun.

Nu ezitati sa ne contactati iar pentru mai multe detalii va asteptam în cadrul birourilor noastre în zona Dorobanti Capitale.
Cu deosebita consideratie,
Echipa SVN România

An constructie 2022

Suprafata construita 80 mp

Suprafata utila 64 mp

Suprafata terasa 5 mp

Regim Inaltime 3 / 6

Etaj 3

Nr. camere 3 camere

Nr. bai 2

Nr. balcoane 1 balcon

Confort 1

Compartimentare Decomandat

Tip constructie In bloc

Status constructie Finalizat

Disponibila incepand cu 2023-07-06

Judet Bucuresti

Oras/ Sector Sector 1

Zona Herastrau

Gps lat 44.490499

Gps lng 26.086602

Curent electric

Sistem de alarma

Interfon

Supraveghere 24/7

Geamuri termopan

Parchet

Apometre

Gresie

Telefon

Gaz

Incalzire prin pardoseala

WC serviciu

Mobilat

Lift

Apartament 3 camere mobilat Herastru

Proprietate vanduta

Ai o proprietate similara? Vinde-o cu noi.
Vinde apartament

Cod: REA1015271

Proprietati similare

Bucuresti, Baneasa

Apartament, 3 camere

65 mp 4 1983

199.000 EUR

Detalii

Bucuresti, Herastrau

Apartament, 3 camere

67.94 mp 4 1986

195.000 EUR

Detalii

Bucuresti, Aviatiei

Apartament, 3 camere

69 mp 1 2026

177.522 EUR

Detalii

Bucuresti, Aviatiei

Apartament, 3 camere

73 mp 4 2026

187.000 EUR

Detalii

Bucuresti, Baneasa

Apartament, 3 camere

72.6 mp 1 2026

187.200 EUR

Detalii

Bucuresti, Aviatiei

Apartament, 3 camere

72.6 mp 1 2026

187.200 EUR

Detalii

Bucuresti, Aviatiei

Apartament, 3 camere

72.6 mp 4 2026

187.322 EUR

Detalii

Bucuresti, Aviatiei

Apartament, 3 camere

69.9 mp 4 2026

177.522 EUR

Detalii
Apartamente 3 camere vandute in Herastrau, Bucuresti Apartamente 3 camere de vanzare in Herastrau, Bucuresti

Afla primul de cele mai bune oferte
inainte sa ajunga pe piata

Aboneaza-te la newsletter

Aboneaza-te la notificari