P-Ta Presei Libere 3 camere 63.45 mp 1 2020

SVN Romania va propune spre vanzare un apartament de 3 camere in complexul rezidential Parcului 20, in zona Expozitiei - Piata Presei.

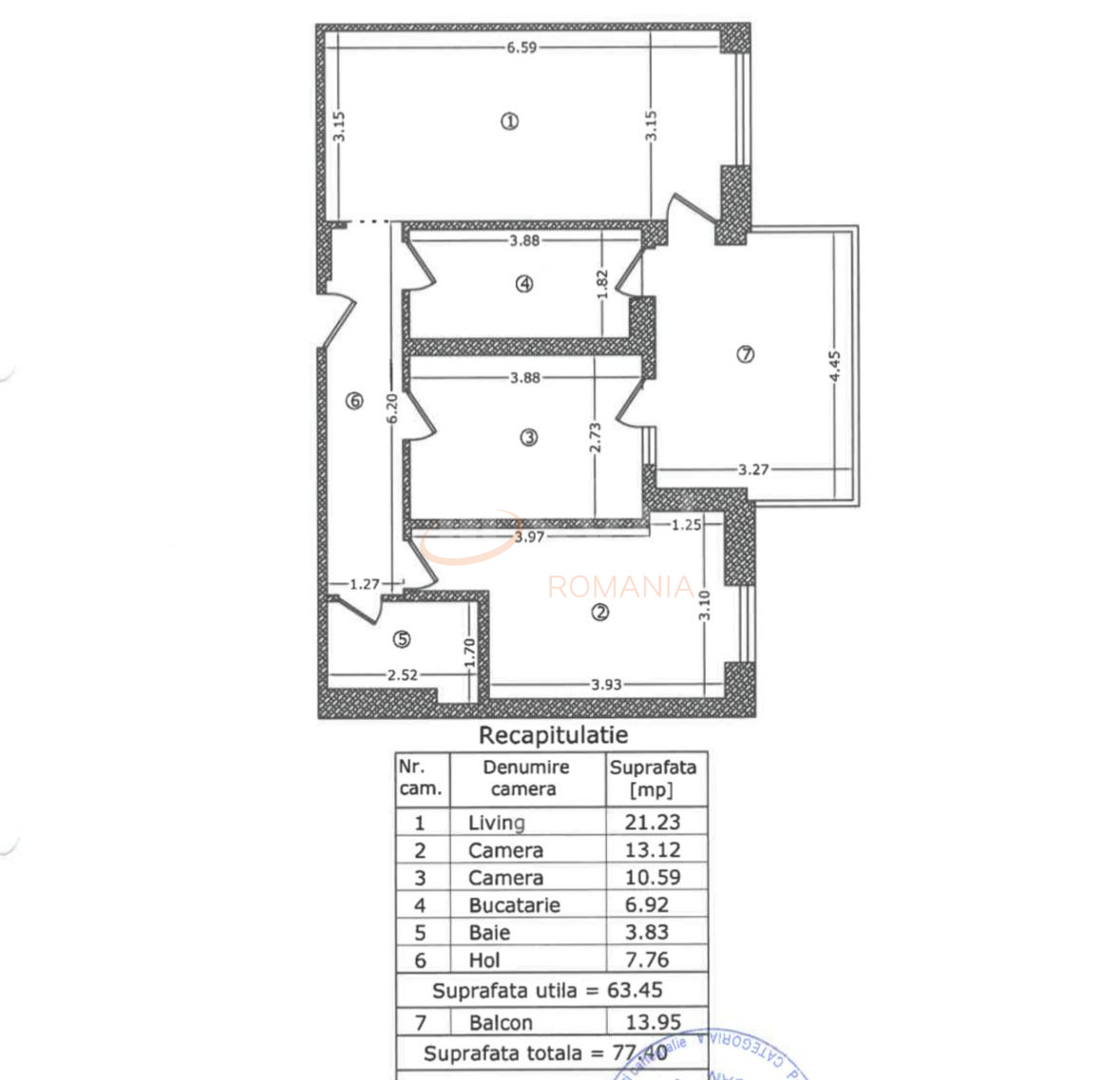
Apartamentul este situat la etajul 1/11, intr-un bloc construit in 2020, decomandat, avand o suprafata utila de 63.45 mp si o terasa de 13.95 mp.

Acesta este pozitionat pe partea din fata a cladirii, avand vedere libera nefiind obstructionata de alte cladiri.

Locuinta se vinde complet mobilata si utilata, asa cum este prezentata in imagini.

In pretul de vanzare este inclus si un loc de parcare in subteran.
Apartamentul este situat in complexul rezidential Parcului 20 by Cordia, un ansamblu premium ce beneficiaza de paza permanenta 24/7, supraveghere video si o curte interioara amenajata modern.

Locuinta se vinde complet mobilata si utilata, exact ca in fotografii, mobilierul si electrocasnicele fiind incluse in pret. Bucataria este complet echipata, inclusiv cu masina de spalat vase, oferind tot confortul necesar unei locuinte moderne.

Apartamentul este bine compartimentat si cuprinde un living luminos, un dormitor matrimonial, bucatarie si o a treia camera care in prezent este amenajata ca dressing si birou. Aceasta poate fi usor reconfigurata in functie de nevoile viitorului proprietar, putand deveni dormitor pentru copil, birou sau camera de oaspeti.

Pentru mai multe informatii sau pentru programarea vizionarilor, contactul meu va sta la dispozitie!

An constructie 2020

Suprafata construita 77.4 mp

Suprafata utila 63.45 mp

Suprafata terasa 13.95 mp

Regim Inaltime 1 / 11

Etaj 1

Nr. camere 3 camere

Nr. bai 1

Nr. balcoane 0 balcoane

Confort 1

Compartimentare Decomandat

Tip constructie Bloc

Status constructie Finalizat

Disponibila incepand cu 2026-04-23

Judet Bucuresti

Oras/ Sector Sector 1

Zona P-Ta Presei Libere

Gps lat 44.478873

Gps lng 26.054125

Nr. terase 1

Supraveghere 24/7

Supraveghere video

Cablu TV

Curent electric

Internet prin fibra optica

Internet Wireless

Interfon

Geamuri termopan

Parchet

Apometre

Gresie

Loc parcare subteran

Faianta

Incalzire prin pardoseala

Incalzire proprie

Calorifere

Mobilat

Aer conditionat

Bucatarie mobilata

Bloc reabiliat termic

Lift

Valoare proprietate (€)

Perioada (ani)

Procent avans (39.450 €)


Suma creditata 223.550

Dobanda 4.9%

Rata lunara 5.527 lei

Broker Imobiliar

Cristian Vasile , Consultant imobiliar Vezi toate proprietatile

0317100200

Apartament 3 camere I Parcului 20 I Parcare I Terasa I De vanzare

Pret vanzare
263.000 €

Telefon Consultant imobiliar
0317100200

Cod: REA1028077

Proprietati similare

Bucuresti, Bucurestii Noi

Apartament, 3 camere

105 mp 2 2022

258.000 EUR

Detalii

Bucuresti, Bucurestii Noi, Straulesti

Apartament, 3 camere

90 mp 2 2025

250.000 EUR

Detalii

Bucuresti, 1 Mai, Chibrit

Apartament, 3 camere

71.25 mp 2 2026

285.000 EUR

Detalii

Bucuresti, 1 Mai, Domenii

Apartament, 3 camere

76.7 mp P 2023

257.500 EUR

Detalii

Bucuresti, Baneasa

Apartament, 3 camere

120 mp P 2019

258.000 EUR

Detalii

Bucuresti, Baneasa, Sisesti

Apartament, 3 camere

73.3 mp P 2018

279.000 EUR

Detalii

Bucuresti, Baneasa, Sisesti

Apartament, 3 camere

73 mp P 2018

279.900 EUR

Detalii
Exclusiv Discount

Bucuresti, Baneasa, Sisesti

3 camere cu loc parcare exterior inclus

120 mp 3 2008

259.900 EUR

Detalii
Apartamente 3 camere vandute in Sector 1, Bucuresti Apartamente 3 camere de vanzare in Sector 1, Bucuresti

Afla primul de cele mai bune oferte
inainte sa ajunga pe piata

Aboneaza-te la newsletter

Aboneaza-te la notificari