Apartament, 2 camere, Bucuresti / Pipera
Apartamentul este spatios, luminos si beneficiaza de un balcon generos. Acesta este dotat cu centrala termica proprie si aer conditionat. Finisajele interioare sunt de inalta calitate!
Apartamentul se vinde cu bucataria si baile utilate, iar separat se poate achizitiona si restul mobilierului.
Beneficiaza si de un loc de parcare suprateran.
Vecinatati:
-Scoala Americana
-Supermarket-uri
-Scoli
-Gradinite
-Restaurante
Certificatul energetic al imobilului va fi prezent pana la momentul vanzarii.
Pentru vizionari sau informatii suplimentare, ma puteti contacta.
Atribute
An constructie 2018
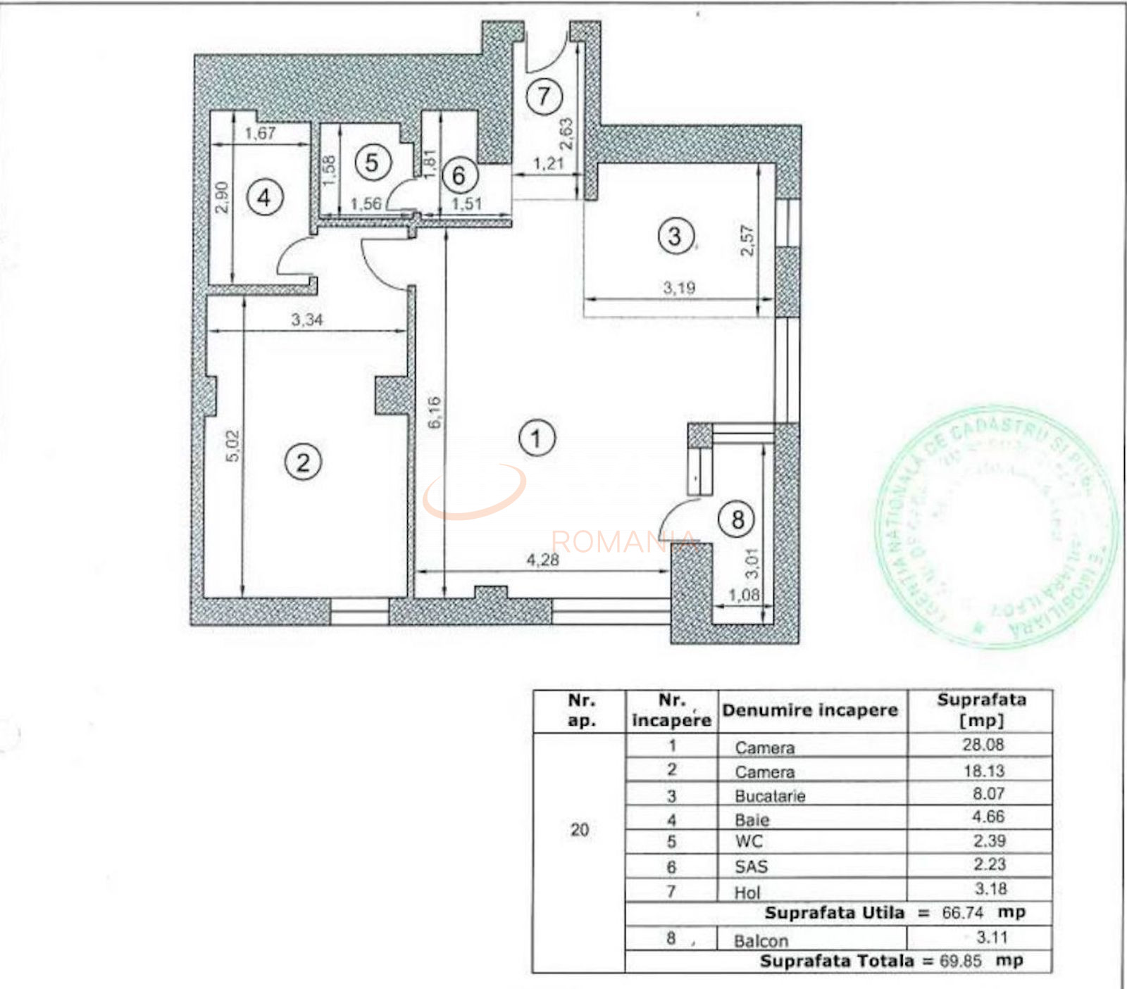
Suprafata construita 80 mp
Suprafata utila 67 mp
Suprafata terasa 3.11 mp
Regim Inaltime 3 / 10
Etaj 3
Nr. camere 2 camere
Nr. bai 2
Nr. balcoane 1 balcon
Confort 1
Tip constructie In bloc
Status constructie Finalizat
Judet Bucuresti
Oras/ Sector Sector 1
Zona Pipera
Gps lat 44.526484
Gps lng 26.144750
Facilitati
Geamuri termopan
Parchet
Gresie
Faianta
Loc parcare exterior
Incalzire proprie
WC serviciu
Lift
2 CAMERE SUPERB 67 MP PIPERA CU LOC DE PARCARE
Proprietate vanduta
Ai o proprietate similara? Vinde-o cu noi.
  Vinde apartament  
 
  
  
  
  
  
  
  
  
  
  
  
  
  
  
  
  
  
  
   
   
   
   
   
  
  
   
   
   
   
   
  
  
   
   
   
   
   
  
  
   
   
   
   
   
  
  
   
   
   
   
   
  
  
   
   
   
   
   
  
   
   
   
   
   
  
   
   
   
  