Apartament, 2 camere, Bucuresti / Pipera
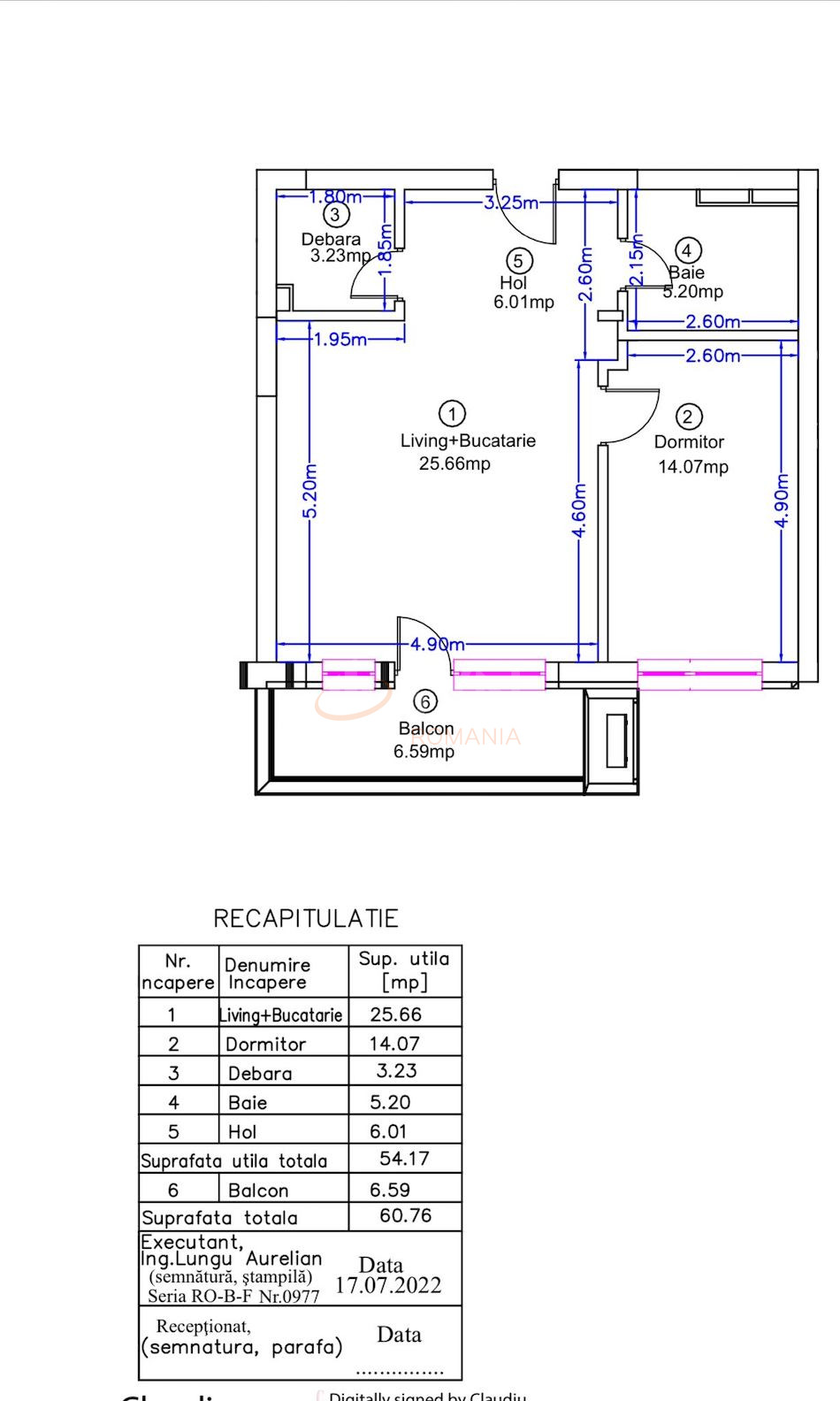
Apartamentul este situat la etajul 3/5, cu o impartire semi-decomandat cu o suprafata utila de 61 mp, un living spatios de 26 mp cu bucatarie open space, un dormitor de 14 mp si un spatiu de depozitare de 3,2 mp si un balcon de 6,6 mp.
Compartimentarea interioara este de caramida, apartamentul dispune de incalzire in pardoseala si centrala proprie.
Apartamentul face parte din faza 1 a proiectului si este finalizat gata de mutare.
Pentru detalii si vizionari va rog sa ma contactati.
Certificatul energetic al imobilului va fi disponibil la momentul vanzarii.
Atribute
An constructie 2022
Suprafata construita 70 mp
Suprafata utila 60.76 mp
Suprafata terasa 6.6 mp
Regim Inaltime 3 / 5
Etaj 3
Nr. camere 2 camere
Nr. bai 1
Nr. balcoane 1 balcon
Confort 1
Compartimentare Semidecomandat
Tip constructie In bloc
Status constructie Finalizat
Disponibila incepand cu 2024-01-25
Judet Bucuresti
Oras/ Sector Sector 1
Zona Pipera
Gps lat 44.493619
Gps lng 26.125817
Facilitati
Curent electric
Interfon
Geamuri termopan
Parchet
Gresie
Faianta
Gaz
Incalzire proprie
Aer conditionat
Lift
Apartament 2 camere Pipera Best Price
Proprietate vanduta
Ai o proprietate similara? Vinde-o cu noi.
  Vinde apartament  
 
  
  
  
  
  
  
  
  
  
  
  
  
  
  
   
   
   
   
   
  
  
   
   
   
   
   
  
  
   
   
   
   
   
  
  
   
   
   
   
   
  
  
   
   
   
   
   
  
  
   
   
   
   
   
  
  
   
   
   
   
   
  
  
   
   
   
   
  