Pipera 2 camere 58.01 mp 2 2022

SVN Romania va propune spre vanzare acest apartament elegant amplasat la etajul 2 al unei cladiri cu 5 etaje, oferindu-va intimitate si confort intr-un mediu select.

Acest apartament este amenajat cu cele mai inalte standarde de calitate si atentie la detalii. Finisajele de exceptie includ tamplarie PVC Salamander cu geam tripan, ceramica de inalta calitate de la Marazzi sau Emil Ceramica, parchet laminat de 10mm si usi securizate de la Benati si Pinum. Obiectele sanitare de la Ideal Standard completeaza luxul si confortul oferit de acest apartament.

Pe langa finisaje, apartamentul vine echipat cu dotari de top, cum ar fi aer conditionat Samsung, lift Schindler, placare cu Alucobond, videointerfon si acces controlat cu bariere. Centrala prin condensare de 24KW Immergas asigura ca veti avea mereu confortul termic dorit.

Complexul este situat intr-o locatie privilegiata din partea de nord a Bucurestiului, in apropiere de benzinarie OMV Pipera, oferindu-va acces rapid la toate facilitatile si serviciile din zona.

Locul de parcare se poate achizitiona separat la pretul de 10.000 euro.

Pentru detalii si vizionari, nu ezitati sa ma contactati.

An constructie 2022

Suprafata construita 68 mp

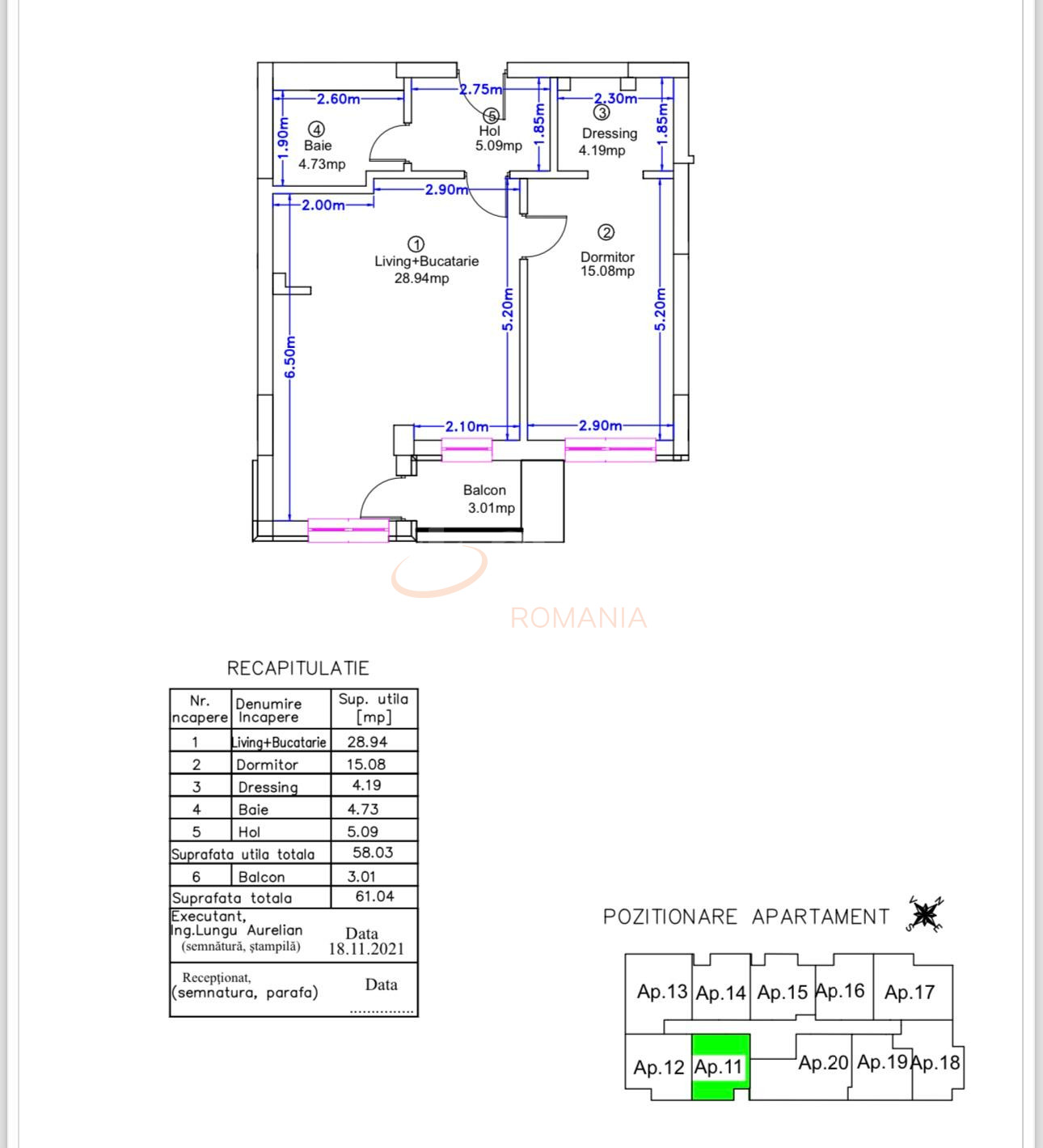
Suprafata utila 58.01 mp

Suprafata terasa 3.41 mp

Regim Inaltime 2 / 5

Etaj 2

Nr. camere 2 camere

Nr. bai 1

Nr. balcoane 1 balcon

Confort 1

Compartimentare Decomandat

Tip constructie In bloc

Status constructie Finalizat

Disponibila incepand cu 2025-10-02

Judet Bucuresti

Oras/ Sector Sector 1

Zona Pipera

Gps lat 44.494490

Gps lng 26.126192

Interfon

Internet Wireless

Curent electric

Parchet

Gresie

Faianta

Gaz

Aer conditionat

Lift

Valoare proprietate (€)

Perioada (ani)

Procent avans (20.250 €)


Suma creditata 114.750

Dobanda 4.9%

Rata lunara 2.837 lei

Broker Imobiliar

Alina Rezmerita , Consultant imobiliar Vezi toate proprietatile

0317100200

Apartament 2 camere de vanzare I Pipera OMV

Pret vanzare
135.000 €

Telefon Consultant imobiliar
0317100200

Cod: REA1020149

Proprietati similare

Bucuresti, Pipera

Apartament, 2 camere

55.8 mp 4 2026

130.000 EUR

Detalii

Bucuresti, Pipera

Apartament, 2 camere

63 mp 4 2025

136.000 EUR

Detalii

Bucuresti, Pipera

Apartament, 2 camere

63 mp P 2025

133.900 EUR

Detalii
Exclusiv Discount

Bucuresti, Pipera

Apartament, 2 camere

63 mp 4 2025

136.000 EUR

Detalii
Exclusiv Discount

Bucuresti, Pipera

Apartament, 2 camere

63 mp P 2025

133.900 EUR

Detalii

Bucuresti, Pipera

Apartament, 2 camere

44.8 mp 7 2023

135.000 EUR

Detalii

Bucuresti, Pipera

Apartament, 2 camere

55.3 mp P 2025

139.900 EUR

Detalii

Bucuresti, Pipera

Apartament, 2 camere

70 mp 1 2026

144.265 EUR

Detalii
Apartamente 2 camere vandute in Pipera, Bucuresti Apartamente 2 camere de vanzare in Pipera, Bucuresti

Afla primul de cele mai bune oferte
inainte sa ajunga pe piata

Aboneaza-te la newsletter

Aboneaza-te la notificari