Pipera 2 camere 52.7 mp 7 2020

Va oferim spre vanzare un apartament modern cu 2 camere, situat intr-un complex rezidential din Pipera, Ilfov. Cu o suprafata de 58 mp, o orientare mixta (sud-est) si o priveliste libera, fara constructii care sa obstructioneze panorama, aceasta locuinta ofera un mediu linistit si relaxant, perfect pentru familii sau ca investitie.

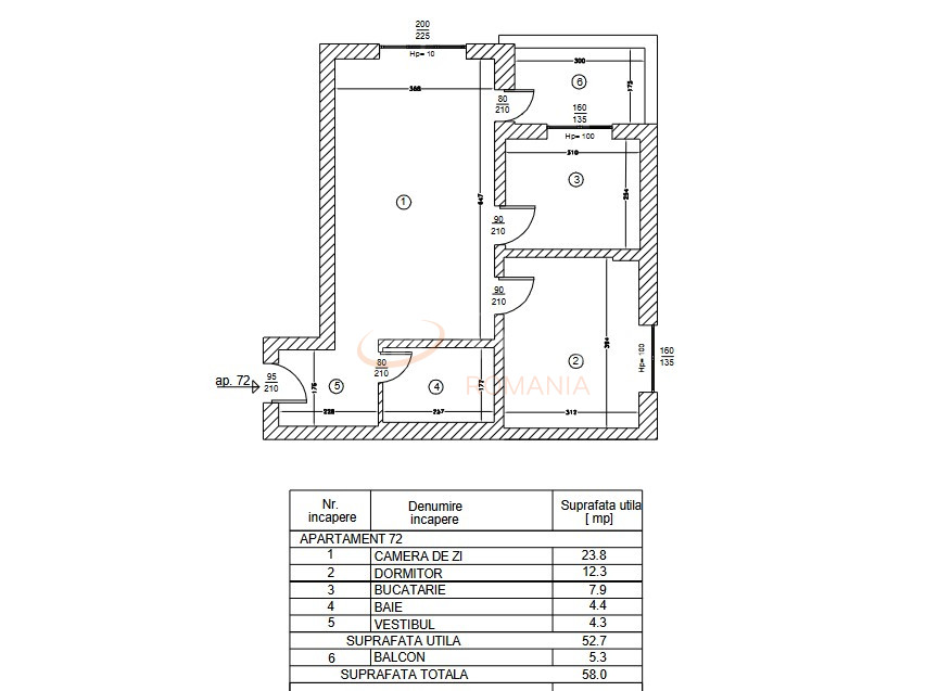
Detalii apartament:

Compartimentare: Suprafata utila de 58 mp, din care 5,3 mp sunt dedicati balconului deschis, ideal pentru momente de relaxare
Mobilare si utilare: Apartamentul este complet mobilat si utilat, cu finisaje si echipamente moderne
Orientare: Sud-est, oferind lumina naturala pe tot parcursul zilei
Incalzire: In pardoseala pe intreaga suprafata, pentru un confort termic ridicat

Facilitati:

Zona linistita: Amplasat in proximitatea padurii Tunari, apartamentul se bucura de aer curat si liniste
Complex rezidential: Spatii verzi, locuri de joaca si facilitati moderne
Acces: Priveliste libera, fara constructii inspre soseaua de centura

Potential investitional:
Datorita locatiei excelente si dotarilor, apartamentul este ideal pentru inchiriere in regim hotelier, cu venituri estimate intre 600-800 euro/luna.


Pentru detalii si vizionari va stam la dispozitie!

An constructie 2020

Suprafata construita 66.7 mp

Suprafata utila 52.7 mp

Suprafata terasa 5.3 mp

Regim Inaltime 7 / 9

Etaj 7

Nr. camere 2 camere

Nr. bai 1

Nr. balcoane 1 balcon

Confort 1

Compartimentare Semidecomandat

Tip constructie In bloc

Status constructie Finalizat

Disponibila incepand cu 2024-11-23

Judet Bucuresti

Oras/ Sector Sector 1

Zona Pipera

Gps lat 44.522075

Gps lng 26.144237

Supraveghere 24/7

Supraveghere video

Detector de gaze

Sistem de alarma

Interfon

Curent electric

Geamuri termopan

Parchet

Apometre

Gresie

Faianta

Gaz

Incalzire proprie

Calorifere

Incalzire prin pardoseala

Mobilat

Aer conditionat

Bucatarie mobilata

Lift

Apartament 2 Camere Mobilat Utilat Complex Nou Pipera

Proprietate vanduta

Ai o proprietate similara? Vinde-o cu noi.
Vinde apartament

Cod: REA1022080

Proprietati similare

Bucuresti, Pipera

2 camere cu loc parcare exterior inclus

43.74 mp P 2022

139.000 EUR

Detalii

Bucuresti, Pipera

Apartament, 2 camere

51.59 mp P 2021

138.654 EUR

Detalii

Bucuresti, Pipera

2 camere cu loc parcare subteran inclus

66.11 mp 3 2017

135.000 EUR

Detalii

Bucuresti, Pipera

Apartament, 2 camere

40.8 mp 2 2025

118.000 EUR

Detalii

Bucuresti, Pipera

2 camere cu loc parcare exterior inclus

64 mp 2 2019

133.000 EUR

Detalii

Bucuresti, Pipera

Apartament, 2 camere

62.55 mp 5 2027

133.386 EUR

Detalii

Bucuresti, Pipera

Apartament, 2 camere

56 mp 1 2025

130.000 EUR

Detalii

Bucuresti, Pipera

Apartament, 2 camere

58.01 mp 2 2022

135.000 EUR

Detalii
Apartamente 2 camere vandute in Pipera, Bucuresti Apartamente 2 camere de vanzare in Pipera, Bucuresti

Afla primul de cele mai bune oferte
inainte sa ajunga pe piata

Aboneaza-te la newsletter

Aboneaza-te la notificari