Pipera 2 camere 36.7 mp 4 2022

SVN Romania va propune spre vanzare un studio dublu in Pipera, in complexul rezidential H Pipera Lake.

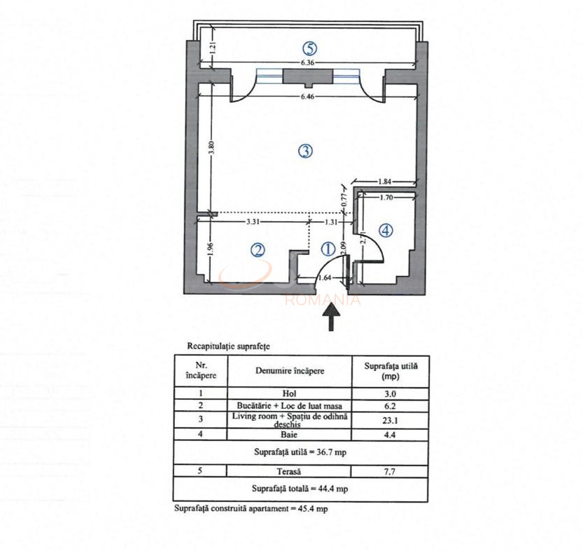
Apartamentul este situat la etajul 4/7, intr-un bloc construit in anul 2022, semidecomandat, cu o suprafata utila de 36.70 mp si o logie de 7.70 mp.

Complexul beneficiaza de spatii verzi, loc de joaca pentru copii, monitorizare video si paza 24/24.

Dispune de finisaje de o calitate superioara, tamplarie cu 5 camere cu pelicula LowE, centrala termica Buderus de apartament cu incalzire in pardoseala, aer conditionat, masina de spalat rufe, smart TV si multe altele.

Apartamentul se vinde exact cum este prezentat in imagini, mobilat si utilat.

Pretul nu include TVA si parcare.

Parcarea este disponibila la 16,000 EUR + TVA.

Pentru mai multe informatii sau programarea vizionarilor, contactul meu va sta la dispozitie!

An constructie 2022

Suprafata construita 44.4 mp

Suprafata utila 36.7 mp

Suprafata terasa 7.7 mp

Regim Inaltime 4 / 7

Etaj 4

Nr. camere 2 camere

Nr. bai 1

Nr. balcoane 1 balcon

Confort 1

Compartimentare Semidecomandat

Tip constructie In bloc

Status constructie Finalizat

Disponibila incepand cu 2024-12-10

Judet Bucuresti

Oras/ Sector Sector 1

Zona Pipera

Gps lat 44.494180

Gps lng 26.120013

Interfon

Detector de gaze

Supraveghere video

Curent electric

Geamuri termopan

Parchet

Apometre

Gresie

Faianta

Gaz

Calorifere

Incalzire prin pardoseala

Incalzire proprie

Mobilat

Aer conditionat

Bucatarie mobilata

Lift

Studio Dublu I H Pipera Lake I De vanzare

Proprietate vanduta

Ai o proprietate similara? Vinde-o cu noi.
Vinde apartament

Cod: REA1022200

Proprietati similare

Exclusiv Discount

Bucuresti, Pipera

Apartament, 2 camere

63 mp 4 2025

128.000 EUR

Detalii
Exclusiv Discount

Bucuresti, Pipera

Apartament, 2 camere

63 mp P 2025

122.000 EUR

Detalii

Bucuresti, Pipera

Apartament, 2 camere

63 mp P 2025

125.000 EUR

Detalii

Bucuresti, Pipera

Apartament, 2 camere

63 mp 4 2025

129.000 EUR

Detalii

Bucuresti, Pipera

Apartament, 2 camere

56 mp 1 2025

130.000 EUR

Detalii

Bucuresti, Pipera

Apartament, 2 camere

55.8 mp 4 2026

130.000 EUR

Detalii

Bucuresti, Pipera

Apartament, 2 camere

41.7 mp 3 2024

110.000 EUR

Detalii

Bucuresti, Pipera

Apartament, 2 camere

40.7 mp 3 2024

115.000 EUR

Detalii
Apartamente 2 camere vandute in Pipera, Bucuresti Apartamente 2 camere de vanzare in Pipera, Bucuresti

Afla primul de cele mai bune oferte
inainte sa ajunga pe piata

Aboneaza-te la newsletter

Aboneaza-te la notificari