Pipera 2 camere 55.8 mp 4 2026

SVN Romania va propune spre vanzare acest apartament elegant amplasat la etajul 4 al unei cladiri cu 5 etaje, oferindu-va intimitate si confort intr-un mediu select.

Acest apartament este amenajat cu cele mai inalte standarde de calitate si atentie la detalii. Finisajele de exceptie includ tamplarie PVC Salamander cu geam tripan, ceramica de inalta calitate de la Marazzi sau Emil Ceramica, parchet laminat de 10mm si usi securizate de la Benati si Pinum.

Obiectele sanitare de la Ideal Standard completeaza luxul si confortul oferit de acest apartament.

Pe langa finisaje, apartamentul vine echipat cu dotari de top, cum ar fi aer conditionat Samsung, lift Schindler, placare cu Alucobond, videointerfon si acces controlat cu bariere. Centrala prin condensare de 24KW Immergas asigura ca veti avea mereu confortul termic dorit.

Complexul este situat intr-o locatie privilegiata din partea de nord a Bucurestiului, in apropiere de benzinarie OMV Pipera, oferindu-va acces rapid la toate facilitatile si serviciile din zona.

Apartamentul se vinde finisat la cheie si nemobilat, pozele fiind cu titlu de prezentare

Complexul dispune de 10 blocuri din care 5 finalizate si de paza , acces securizat, spatii verzi si alei pietonale.

Apartamentul se vinde cu un loc de parcare la pretul de 13.500 EUR+TVA.
Termen de finalizare - martie 2026

Pentru mai multe disponibilitati si vizionari va rog sa ma contactati.

An constructie 2026

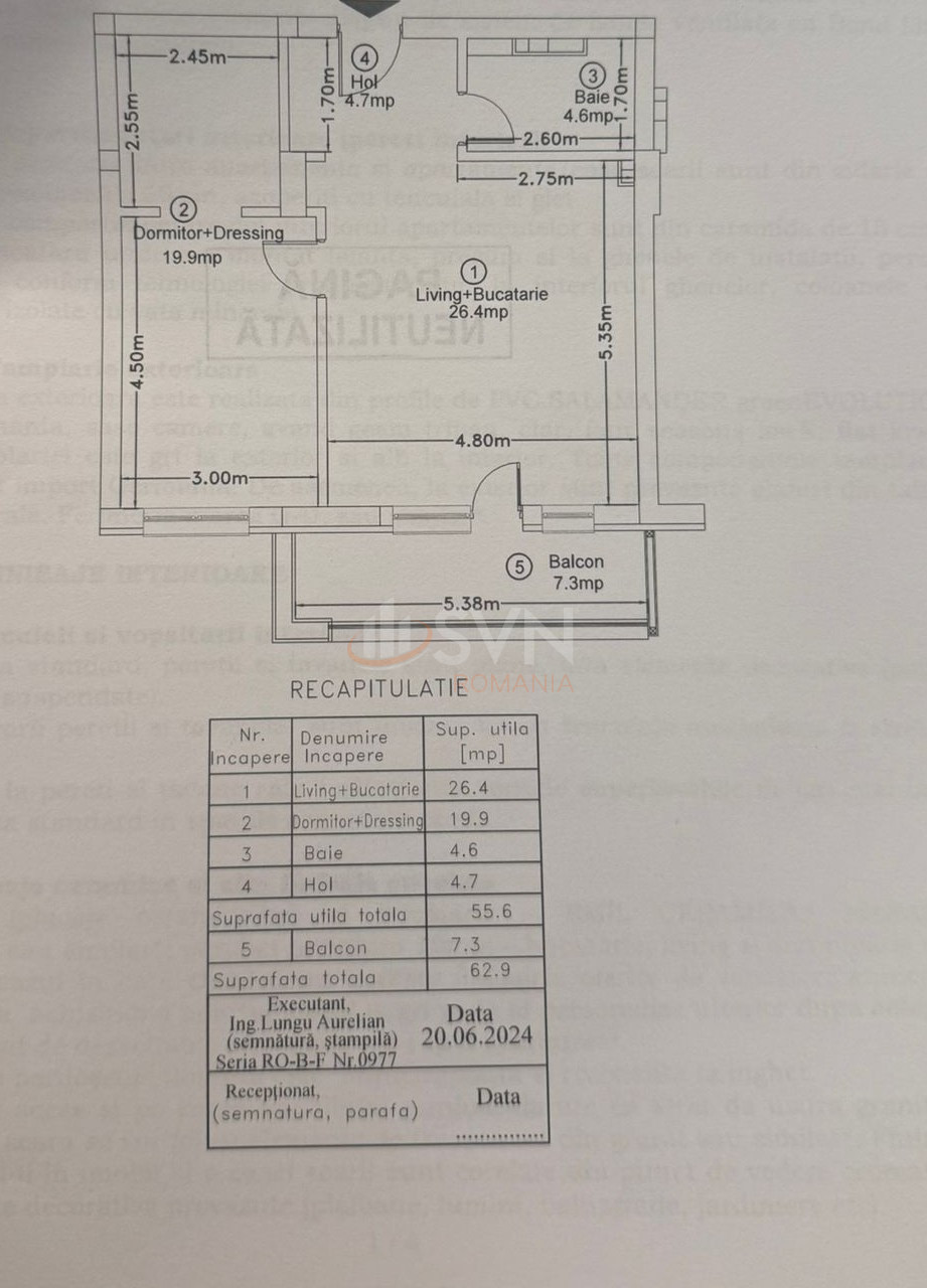
Suprafata construita 63.1 mp

Suprafata utila 55.8 mp

Suprafata terasa 7.3 mp

Regim Inaltime 4 / 5

Etaj 4

Nr. camere 2 camere

Nr. bai 1

Nr. balcoane 1 balcon

Confort Lux

Compartimentare Semidecomandat

Tip constructie In bloc

Status constructie Nefinalizat

Disponibila incepand cu 2025-10-01

Judet Bucuresti

Oras/ Sector Sector 1

Zona Pipera

Gps lat 44.494831

Gps lng 26.124356

Complex rezidential MTM Pipera

Cablu TV

Curent electric

Internet prin fibra optica

Internet Wireless

Supraveghere 24/7

Geamuri termopan

Parchet

Gresie

Faianta

Incalzire proprie

Incalzire prin pardoseala

Aer conditionat

Pompe de caldură

Panouri solare

Valoare proprietate (€)

Perioada (ani)

Procent avans (19.500 €)


Suma creditata 110.500

Dobanda 4.9%

Rata lunara 2.732 lei

Broker Imobiliar

Raluca Dobrisan , Consultant imobiliar Vezi toate proprietatile

0317100200

Apartament 2 camere l OMW Pipera l

Pret vanzare + TVA
130.000 €

Telefon Consultant imobiliar
0317100200

Cod: REA1024720

Proprietati similare

Bucuresti, Pipera

Apartament, 2 camere

63 mp P 2025

133.900 EUR

Detalii

Bucuresti, Pipera

Apartament, 2 camere

63 mp 4 2025

136.000 EUR

Detalii
Exclusiv Discount

Bucuresti, Pipera

Apartament, 2 camere

63 mp 4 2025

136.000 EUR

Detalii
Exclusiv Discount

Bucuresti, Pipera

Apartament, 2 camere

63 mp P 2025

133.900 EUR

Detalii

Bucuresti, Pipera

Apartament, 2 camere

58.01 mp 2 2022

135.000 EUR

Detalii

Bucuresti, Pipera

Apartament, 2 camere

56 mp 1 2025

130.000 EUR

Detalii

Bucuresti, Pipera

Apartament, 2 camere

55.3 mp P 2025

139.900 EUR

Detalii

Bucuresti, Pipera

Apartament, 2 camere

56 mp 1 2024

137.900 EUR

Detalii
Apartamente 2 camere vandute in Pipera, Bucuresti Apartamente 2 camere de vanzare in Pipera, Bucuresti

Afla primul de cele mai bune oferte
inainte sa ajunga pe piata

Aboneaza-te la newsletter

Aboneaza-te la notificari