Pipera 3 camere 68.4 mp 4 2022

SVN Residentialist va propune spre achizitie un apartament cu 3 camere, semidecomandat, complet echipat, care face parte dintr-un complex rezidential aproape de Porsche Pipera.

An constructie: 2022
Etaj: 4/11
Orientare: Vedere mixta (spre interiorul complexului si spre sud)
Descriere detaliata:

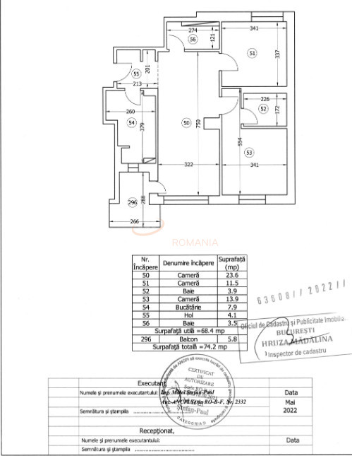
Apartamentul are o suprafata utila de 68,4 mp, completata de o terasa de 5,8 mp, perfecta pentru relaxare. Orientarea mixta asigura iluminare naturala excelenta pe parcursul zilei.

Proprietatea este complet mobilata si utilata, fiind pregatita pentru mutare imediata.

Incalzirea in pardoseala este asigurata de centrala proprie a apartamentului, oferind confort termic ridicat.

Locul de parcare exterior poate fi achizitionat separat, pentru suma suplimentara de 10.000 euro.
Complex rezidential:

Apartamentul este situat intr-un complex rezidential modern, ingradit, care ofera:

Paza permanenta
Spatii de recreere
Locuri de joaca pentru copii
Magazine pentru nevoile zilnice

Avantaje:

Constructie noua (2022)
Mobilat si utilat complet
Iluminare naturala excelenta datorita orientarii mixte
Acces la multiple facilitati in interiorul complexului

Contacteaza-ne pentru mai multe detalii sau pentru o vizionare!

An constructie 2022

Suprafata construita 85.33 mp

Suprafata utila 68.4 mp

Suprafata terasa 5.8 mp

Regim Inaltime 4 / 11

Etaj 4

Nr. camere 3 camere

Nr. bai 2

Nr. balcoane 0 balcoane

Confort 1

Compartimentare Semidecomandat

Tip constructie In bloc

Status constructie Finalizat

Disponibila incepand cu 2025-02-25

Judet Bucuresti

Oras/ Sector Sector 1

Zona Pipera

Gps lat 44.488114

Gps lng 26.107617

Nr. terase 1

Detector de gaze

Sistem de alarma

Interfon

Curent electric

Supraveghere 24/7

Supraveghere video

Geamuri termopan

Parchet

Apometre

Gresie

Faianta

Gaz

Loc parcare exterior

Incalzire prin pardoseala

Incalzire proprie

Mobilat

Aer conditionat

Bucatarie mobilata

Lift

Apartament 3 Camere Modern Pipera

Proprietate vanduta

Ai o proprietate similara? Vinde-o cu noi.
Vinde apartament

Cod: REA1022428

Proprietati similare

Bucuresti, Aviatiei

Apartament, 3 camere

80 mp 3 2024

180.000 EUR

Detalii

Bucuresti, Aviatiei

Apartament, 3 camere

57 mp 4 1987

179.500 EUR

Detalii

Bucuresti, Aviatiei

Apartament, 3 camere

71.5 mp 3 2027

185.000 EUR

Detalii

Bucuresti, Pipera

Apartament, 3 camere

84.3 mp 2 2021

185.000 EUR

Detalii

Bucuresti, Pipera

Apartament, 3 camere

74.15 mp 4 2024

179.900 EUR

Detalii

Bucuresti, Pipera

Apartament, 3 camere

75.8 mp 2 2024

158.536 EUR

Detalii

Bucuresti, Pipera

Apartament, 3 camere

73.35 mp 1 2025

161.600 EUR

Detalii

Bucuresti, Floreasca

Apartament, 3 camere

60 mp 5 1965

184.900 EUR

Detalii
Apartamente 3 camere vandute in Pipera, Bucuresti Apartamente 3 camere de vanzare in Pipera, Bucuresti

Afla primul de cele mai bune oferte
inainte sa ajunga pe piata

Aboneaza-te la newsletter

Aboneaza-te la notificari