Primaverii 3 camere 80 mp P 2004

Va oferim spre vanzare un apartament cu 3 camere situat la parterul al unui imobil de 4 etaje (cu un apartament pe etaj), construit in anul 2004, in zona Primaverii.

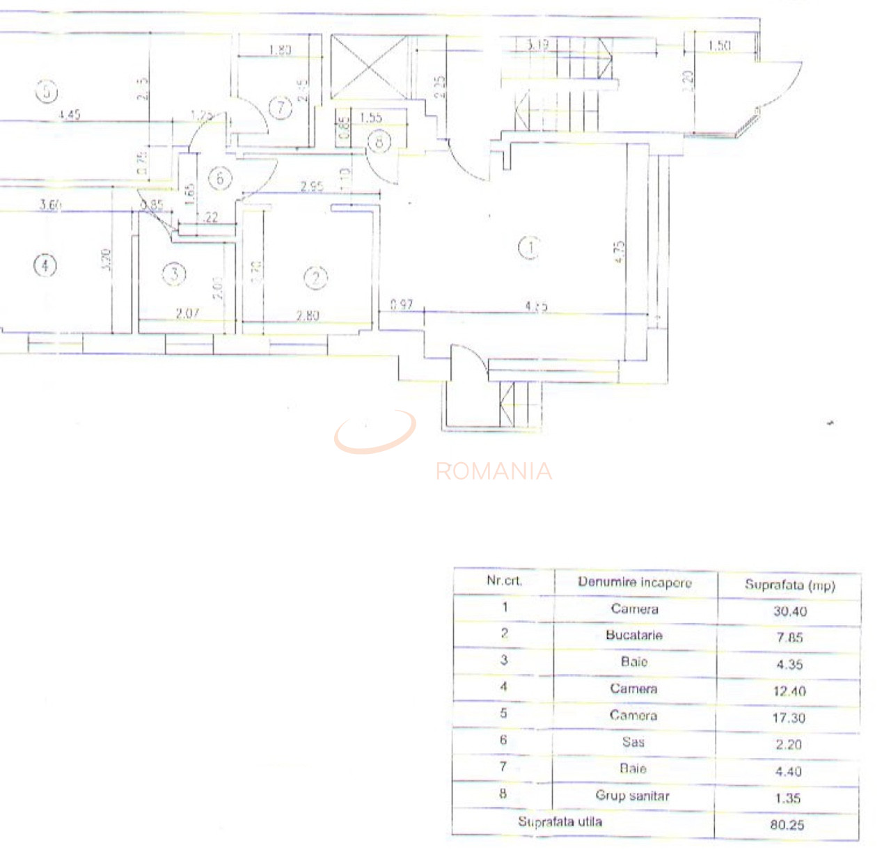
Apartamentul dispune de impartire decomandata, fiind format din living, bucatarie, 2 dormitoare cu bai proprii, 1 baie de serviciu pe hol, cu suprafata utila totala de 80 mp, si o curte cu intrare separata cu suprafata de 40 mp.

In pretul apartamentului este inclus si un loc de parcare subteran.

Amplasamentul este de exceptie, in zona exclusivista, in imediata apropiere fiind mijloace de transport in comun, parcuri, restaurante, etc.

Certificatul energetic va fi disponibil la vanzare.

Pentru mai multe detalii si vizionari va stau la dispozitie.

An constructie 2004

Suprafata construita 120 mp

Suprafata utila 80 mp

Suprafata terasa 40

Regim Inaltime P / 4

Etaj P

Nr. camere 3 camere

Nr. bai 2

Nr. balcoane 0 balcoane

Confort 1

Compartimentare Decomandat

Tip constructie In bloc

Status constructie Finalizat

Disponibila incepand cu 2024-07-29

Judet Bucuresti

Oras/ Sector Sector 1

Zona Primaverii

Gps lat 44.464755

Gps lng 26.090197

Nr. terase 1

Cablu TV

Internet prin fibra optica

Interfon

Curent electric

Internet Wireless

Supraveghere 24/7

Internet prin cablu

Internet prin Dial-Up

Geamuri termopan

Repartitoare

Parchet

Apometre

Gresie

Telefon

Loc parcare subteran

Faianta

Gaz

Incalzire proprie

Calorifere

WC serviciu

Mobilat

Aer conditionat

Bucatarie mobilata

APARTAMENT 3 CAMERE PRIMAVERII

Proprietate vanduta

Ai o proprietate similara? Vinde-o cu noi.
Vinde apartament

Cod: REA1018328

Proprietati similare

Bucuresti, Dorobanti, Primaverii

3 camere cu loc parcare subteran inclus

80 mp P 2004

425.000 EUR

Detalii

Bucuresti, Dorobanti, Primaverii

Apartament, 3 camere

90 mp 1 1965

405.000 EUR

Detalii

Bucuresti, Aviatorilor

Apartament, 3 camere

68 mp 3 2002

415.000 EUR

Detalii

Bucuresti, Floreasca

Apartament, 3 camere

102 mp 5 2011

399.000 EUR

Detalii

Bucuresti, Floreasca

3 camere cu loc parcare subteran inclus

82 mp 6 2023

431.000 EUR

Detalii

Bucuresti, Ultracentral, Victoriei

Apartament, 3 camere

75.43 mp P 2009

416.000 EUR

Detalii

Bucuresti, Floreasca

Apartament, 3 camere

79 mp 4 2025

390.000 EUR

Detalii

Bucuresti, Floreasca

3 camere cu loc parcare exterior inclus

103 mp 1 2023

390.000 EUR

Detalii
Apartamente 3 camere vandute in Dorobanti, Bucuresti Apartamente 3 camere de vanzare in Dorobanti, Bucuresti

Afla primul de cele mai bune oferte
inainte sa ajunga pe piata

Aboneaza-te la newsletter

Aboneaza-te la notificari