Sisesti 2 camere 51.05 mp 5 2023

SVN Romania are deosebita placere de a va propune spre vanzare un apartament de 2 camere intr-un imobil nou care urmeaza sa fie livrat pe piata in luna martie 2023. Este construit în regim P+6 si dezvoltat pe un teren de 1500 mp din care o suprafata de 500 mp este dedicata spatiului verde unde sa va relaxati si bucurati de aer curat.

Apartamentul este la etajul 5/6 si este disponibil la diferite etaje si orientari.

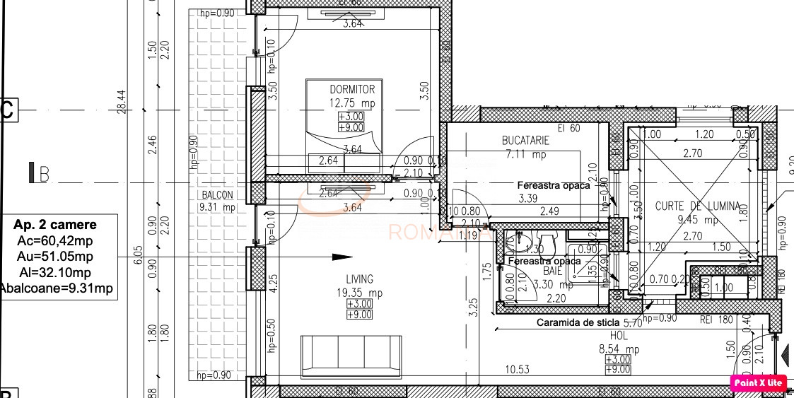
Beneficiaza de o compartimentare inteligenta si eficienta cu o suprafata utila de 51 mp la care se adauga un balcon de 9 mp si este distribuit astfel: un hol spatios din care se face trecerea mai departe catre living si un dormitor, ambele avand acces la balcon, o bucatarie inchisa si o baie.

La pretul afisat se aplica TVA de 5%!

Pozele sunt cu titlu de prezentare.

Pentru o lista completa de disponibilitati, contactati-ma chiar acum!

Locurile de parcare sunt disponibile atât suprateran, cât si subteran în sistem Klaus. Acestea se achizitioneaza separat la pretul de 12.000 Euro + TVA, respectiv 15.000 Euro + TVA.

Printre facilitatile de care vor beneficia viitorii proprietari se regasesc:
-transport (statiile de metrou Straulesti si Jiului sunt localizate in imediata proximitate a soselei Gheorghe Ionescu Sisesti, de unde se poate ajunge cu autobuzul 205; alte mijloace de transport in comun care va ajuta sa va deplasati catre zonele centrale sunt 261 si 112)
centre comerciale (Kaufland, Lidl, Mega Image, Carrefour, Mall Baneasa, Ikea, etc)
-gradinite
-farmacii
-restaurante
-parcul Herastrau la 15 minute de mers cu masina
-sala de fitness Ramada Vitality cu piscina exterioara, bazin de înot interior si terenuri de tenis
-Universitatea Bioterra
-domeniul medical Regina Maria si altele.

Certificatul energetic va fi disponibil la momentul vanzarii.

Pentru mai multe informatii sau programarea unei vizionari, va rog sa ma contactati.

An constructie 2023

Suprafata construita 60.42 mp

Suprafata utila 51.05 mp

Suprafata terasa 9.3 mp

Regim Inaltime 5 / 6

Etaj 5

Nr. camere 2 camere

Nr. bai 1

Nr. balcoane 1 balcon

Confort 1

Tip constructie In bloc

Status constructie Finalizat

Disponibila incepand cu 2022-12-04

Judet Bucuresti

Oras/ Sector Sector 1

Zona Sisesti

Gps lat 44.502443

Gps lng 26.056542

Complex rezidential Sisesti 1 Residence

Internet prin fibra optica

Cablu TV

Curent electric

Geamuri termopan

Parchet

Apometre

Gresie

Loc parcare subteran

Faianta

Gaz

Loc parcare exterior

Incalzire proprie

Aer conditionat

Comision Zero Direct Dezvoltator 2 Camere Sisesti

Proprietate vanduta

Ai o proprietate similara? Vinde-o cu noi.
Vinde apartament

Cod: REA1011285

Proprietati similare

Bucuresti, Bucurestii Noi

Apartament, 2 camere

50 mp 3 1963

109.700 EUR

Detalii

Bucuresti, Baneasa, Sisesti

Apartament, 2 camere

44 mp 10 2022

120.000 EUR

Detalii

Bucuresti, Bucurestii Noi

Apartament, 2 camere

59 mp P 2010

109.000 EUR

Detalii

Bucuresti, Bucurestii Noi

Apartament, 2 camere

46.23 mp 13 2008

102.000 EUR

Detalii

Bucuresti, 1 Mai

Apartament, 2 camere

45 mp 4 1963

110.000 EUR

Detalii

Bucuresti, Bucurestii Noi

Apartament, 2 camere

53.5 mp P 2024

109.000 EUR

Detalii

Bucuresti, Floreasca, Barbu Vacarescu

2 camere cu loc parcare exterior inclus

48 mp 2 1980

106.900 EUR

Detalii

Bucuresti, Crangasi

Apartament, 2 camere

52 mp 4 1984

109.000 EUR

Detalii
Apartamente 2 camere vandute in Baneasa, Bucuresti Apartamente 2 camere de vanzare in Baneasa, Bucuresti

Afla primul de cele mai bune oferte
inainte sa ajunga pe piata

Aboneaza-te la newsletter

Aboneaza-te la notificari