Sisesti 2 camere 69 mp 1 2023

SVN Romania are deosebita placere de a va propune spre vanzare un apartament de 2 camere intr-un imobil nou care urmeaza sa fie livrat pe piata in luna martie 2023. Este construit în regim P+6 si dezvoltat pe un teren de 1500 mp din care o suprafata de 500 mp este dedicata spatiului verde unde sa va relaxati si bucurati de aer curat.

Apartamentul este la etajul 1/6 si este disponibil la diferite etaje si orientari.

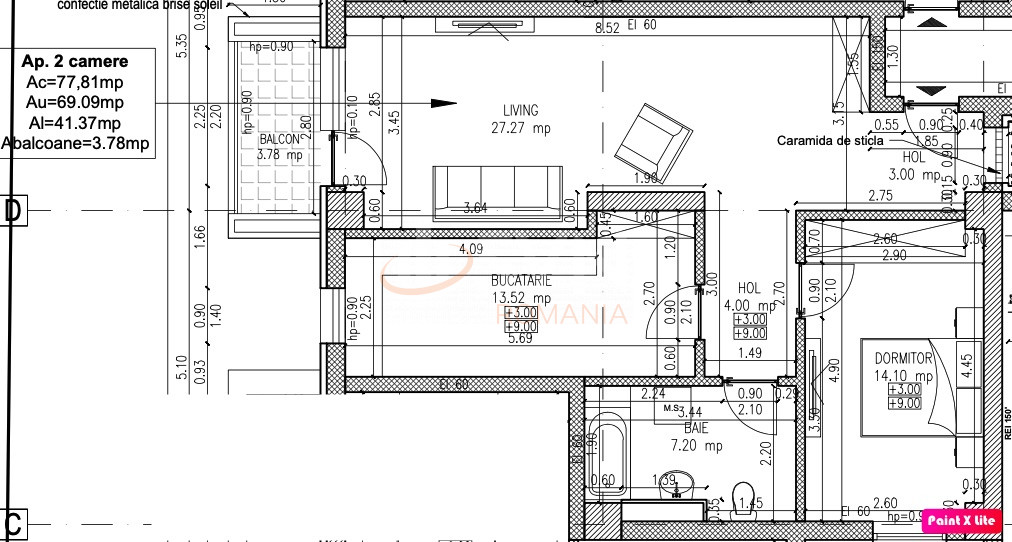
Beneficiaza de o compartimentare inteligenta si eficienta cu o suprafata utila de 69 mp la care se adauga un balcon de 3,78 mp si este distribuit astfel: un hol spatios din care se face trecerea mai departe catre livingul cu acces la balcon, un dormitor, o bucatarie inchisa de 13.50 mp si o baie.

La pretul afisat se aplica TVA de 5%!

Pozele sunt cu titlu de prezentare!

Pentru o lista completa de disponibilitati, contactati-ma chiar acum!

Locurile de parcare sunt disponibile atât suprateran, cât si subteran în sistem Klaus. Acestea se achizitioneaza separat la pretul de 12.000 Euro + TVA, respectiv 15.000 Euro + TVA.

Printre facilitatile de care vor beneficia viitorii proprietari se regasesc:
-transport (statiile de metrou Straulesti si Jiului sunt localizate in imediata proximitate a soselei Gheorghe Ionescu Sisesti, de unde se poate ajunge cu autobuzul 205; alte mijloace de transport in comun care va ajuta sa va deplasati catre zonele centrale sunt 261 si 112)
centre comerciale (Kaufland, Lidl, Mega Image, Carrefour, Mall Baneasa, Ikea, etc)
-gradinite
-farmacii
-restaurante
-parcul Herastrau la 15 minute de mers cu masina
-sala de fitness Ramada Vitality cu piscina exterioara, bazin de înot interior si terenuri de tenis
-Universitatea Bioterra
-domeniul medical Regina Maria si altele.

Certificatul energetic va fi disponibil la momentul vanzarii.

Pentru mai multe informatii sau programarea unei vizionari, va rog sa ma contactati.

An constructie 2023

Suprafata construita 77.81 mp

Suprafata utila 69 mp

Suprafata terasa 3.78 mp

Regim Inaltime 1 / 6

Etaj 1

Nr. camere 2 camere

Nr. bai 1

Nr. balcoane 1 balcon

Confort 1

Tip constructie In bloc

Status constructie Finalizat

Disponibila incepand cu 2022-12-04

Judet Bucuresti

Oras/ Sector Sector 1

Zona Sisesti

Gps lat 44.502443

Gps lng 26.056542

Complex rezidential Sisesti 1 Residence

Internet prin fibra optica

Cablu TV

Curent electric

Geamuri termopan

Parchet

Apometre

Gresie

Loc parcare subteran

Faianta

Gaz

Loc parcare exterior

Incalzire proprie

Aer conditionat

Comision Zero Direct Dezvoltator 2 Camere Sisesti

Proprietate vanduta

Ai o proprietate similara? Vinde-o cu noi.
Vinde apartament

Cod: REA1011287

Proprietati similare

Bucuresti, Baneasa, Sisesti

Apartament, 2 camere

48.6 mp 2 2020

155.000 EUR

Detalii

Bucuresti, Baneasa, Sisesti

Apartament, 2 camere

53.4 mp 4 2024

140.000 EUR

Detalii
Exclusiv Discount

Bucuresti, Baneasa, Sisesti

2 camere cu loc parcare subteran inclus

64.8 mp 5 2025

155.500 EUR

Detalii

Bucuresti, Baneasa, Sisesti

2 camere cu loc parcare subteran inclus

64.5 mp 3 2025

154.800 EUR

Detalii

Bucuresti, Baneasa, Sisesti

Apartament, 2 camere

68.65 mp 1 2023

149.999 EUR

Detalii

Bucuresti, Baneasa, Sisesti

Apartament, 2 camere

55.89 mp 3 2023

152.916 EUR

Detalii

Bucuresti, Bucurestii Noi, Damaroaia

Apartament, 2 camere

60 mp 2 2012

145.500 EUR

Detalii

Bucuresti, Baneasa, Sisesti

Apartament, 2 camere

47.99 mp 10 2026

133.400 EUR

Detalii
Apartamente 2 camere vandute in Baneasa, Bucuresti Apartamente 2 camere de vanzare in Baneasa, Bucuresti

Afla primul de cele mai bune oferte
inainte sa ajunga pe piata

Aboneaza-te la newsletter

Aboneaza-te la notificari