Sisesti 2 camere 41.29 mp 2 2022

SVN Romania va prezinta un apartament de tip studio dublu, dintr-un complex rezidential din nordul Bucurestiului, amplasat perfect intr-o zona verde, aerisita si linistita, cu acces facil catre principalele zone de interes, oferind privelisti spectaculoase si unice din fiecare apartament.

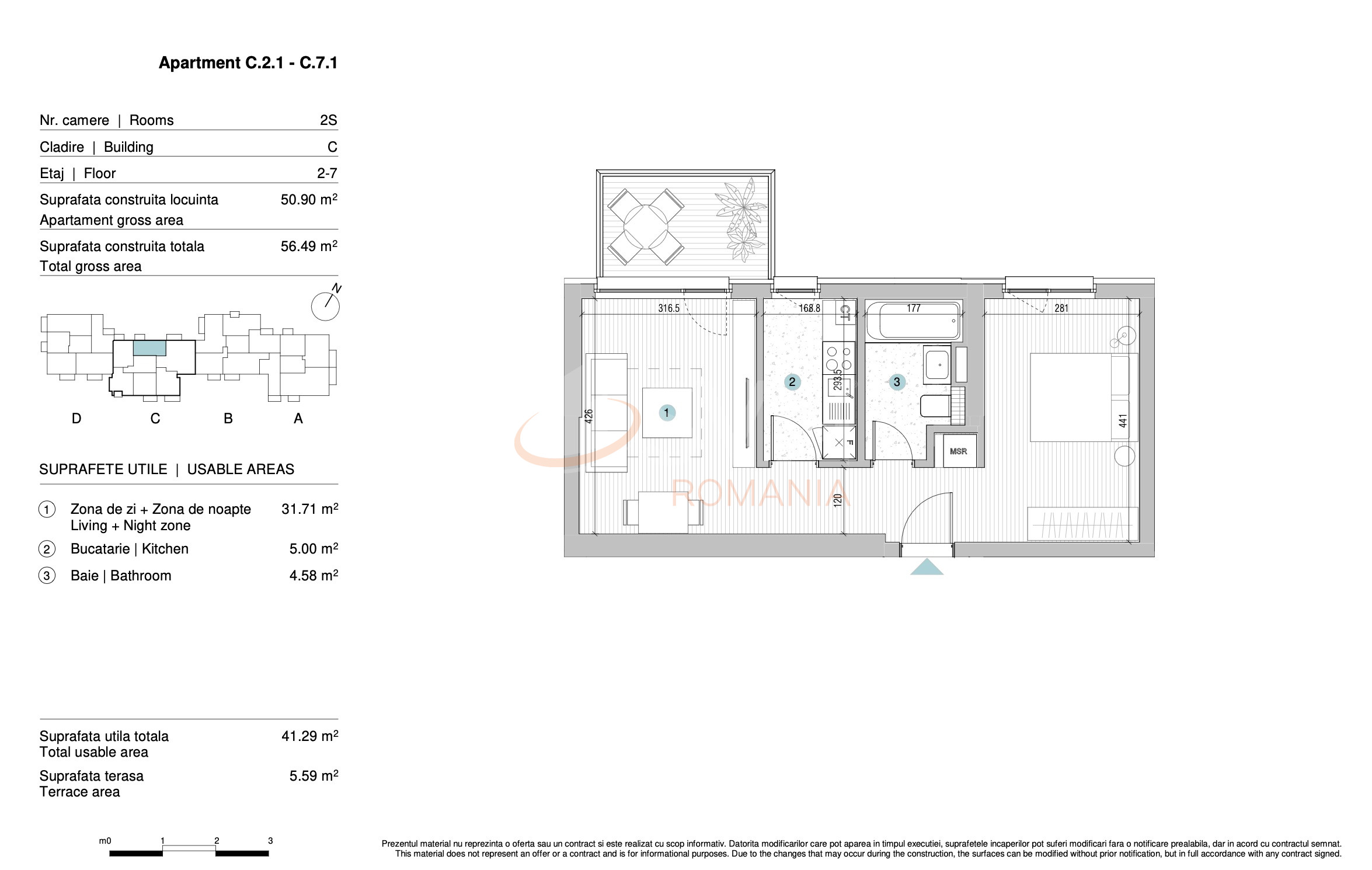
Configuratia apartamentului asigura doua spatii bine definite: zona de zi, cu living si dining, bucatarie inchisa, si o zona de noapte, cu un dormitor separat, pentru o suprafata utila totala de 46,88 metri patrati dintre care 5,59 ii constituie terasa.

Printre beneficiile acestei proprietati includ complexul cu acces securizat, poarta cu bariera, portar si peste 150 de locuri de parcare subterane, precum si locuri de parcare pentru vizitatori la parter.

Spatii verzi frumos amenajate in curtea ansamblului rezidential completeaza experienta, iar finisajele de inalta calitate si varietatea de tipuri de apartamente satisfac toate preferintele.

Lifturile de ultima generatie si sistemul de supraveghere video asigura confortul si securitatea, iar terasele generoase aduc un plus de relaxare.

In cazul inchirierii unui studio, acesta este complet mobilat si utilat.

Acest apartament este disponibil complet mobilat si utilat pentru un cost aditional de 12,500 EUR + TVA.

Aveti posibilitatea de a achizitiona un loc de parcare suprateran la pretul de 13,500 EUR + TVA sau subteran la 16,000 EUR + TVA.

Pentru persoane fizice la pretul afisat se adauga TVA, iar pentru achizitia pe persoana juridica, se aplica taxare inversa.

Certificatul energetic va fi disponibil la data semnarii contractului de vanzare-cumparare.

Contactati-ne acum pentru mai multe detalii si pentru a programa o vizionare a acestei proprietati atractive!

An constructie 2022

Suprafata construita 56.49 mp

Suprafata utila 41.29 mp

Suprafata terasa 5.59 mp

Regim Inaltime 2 / 8

Etaj 2

Nr. camere 2 camere

Nr. bai 1

Nr. balcoane 0 balcoane

Confort Lux

Compartimentare Decomandat

Tip constructie In bloc

Status constructie Finalizat

Disponibila incepand cu 2024-02-29

Judet Bucuresti

Oras/ Sector Sector 1

Zona Sisesti

Gps lat 44.489775

Gps lng 26.065920

Complex rezidential Ansamblu rezidential Escape Residence

Nr. terase 1

Cablu TV

Internet prin fibra optica

Interfon

Supraveghere 24/7

Curent electric

Internet Wireless

Internet prin cablu

Internet prin Dial-Up

Supraveghere video

Geamuri termopan

Parchet

Apometre

Gresie

Telefon

Faianta

Gaz

Incalzire proprie

Incalzire prin pardoseala

Aer conditionat

Bloc reabiliat termic

Lift

Direct Dezvoltator Apartament tip Studio Dublu

Proprietate vanduta

Ai o proprietate similara? Vinde-o cu noi.
Vinde apartament

Cod: REA1018315

Proprietati similare

Bucuresti, Bucurestii Noi

Apartament, 2 camere

50 mp 3 1963

109.700 EUR

Detalii

Bucuresti, Bucurestii Noi, Pajura

Apartament, 2 camere

51.3 mp 3 1961

99.900 EUR

Detalii

Bucuresti, Bucurestii Noi

Apartament, 2 camere

46.23 mp 13 2008

107.000 EUR

Detalii

Bucuresti, Gara De Nord, Grivita

Apartament, 2 camere

53 mp 1 1963

100.000 EUR

Detalii

Bucuresti, Floreasca, Barbu Vacarescu

2 camere cu loc parcare exterior inclus

48 mp 1 1980

109.900 EUR

Detalii

Bucuresti, Dorobanti

Apartament, 2 camere

40 mp 8 1974

99.000 EUR

Detalii

Bucuresti, Ultracentral, Basarab

Apartament, 2 camere

45 mp 6 1965

98.999 EUR

Detalii

Bucuresti, Ultracentral, Piata Victoriei

Apartament, 2 camere

35 mp P 1993

99.900 EUR

Detalii
Apartamente 2 camere vandute in Baneasa, Bucuresti Apartamente 2 camere de vanzare in Baneasa, Bucuresti

Afla primul de cele mai bune oferte
inainte sa ajunga pe piata

Aboneaza-te la newsletter

Aboneaza-te la notificari