Sisesti 3 camere 85.12 mp 3 2023

SVN Romania are deosebita placere de a va propune spre vanzare un apartament de 3 camere intr-un imobil nou care urmeaza sa fie livrat pe piata in luna martie 2023. Este construit în regim P+6 si dezvoltat pe un teren de 1500 mp din care o suprafata de 500 mp este dedicata spatiului verde unde sa va relaxati si bucurati de aer curat.

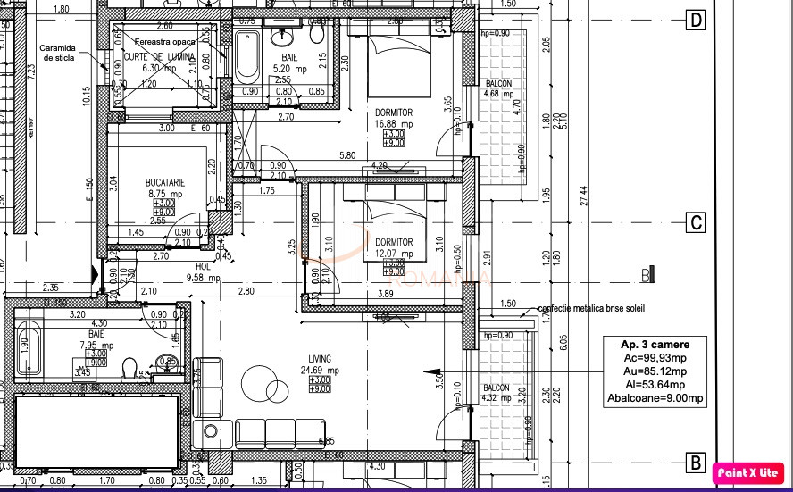
Apartamentul este la etajul 3/6 si este disponibil la diferite etaje si orientari.

Beneficiaza de o compartimentare inteligenta si eficienta cu o suprafata utila de 85 mp la care se adauga doua balcoane de 9 mp si este distribuit astfel: un hol spatios din care se face trecerea mai departe catre living cu acces la balcon, cele 2 dormitoare (unul dintre ele avand baie proprie), o bucatarie inchisa si o baie de serviciu.

La pretul afisat se aplica TVA de 19%!

Pozele sunt cu titlu de prezentare.

Pentru o lista completa de disponibilitati, contactati-ma chiar acum!

Locurile de parcare sunt disponibile atât suprateran, cât si subteran în sistem Klaus. Acestea se achizitioneaza separat la pretul de 12.000 Euro + TVA, respectiv 15.000 Euro + TVA.

Printre facilitatile de care vor beneficia viitorii proprietari se regasesc:
-transport (statiile de metrou Straulesti si Jiului sunt localizate in imediata proximitate a soselei Gheorghe Ionescu Sisesti, de unde se poate ajunge cu autobuzul 205; alte mijloace de transport in comun care va ajuta sa va deplasati catre zonele centrale sunt 261 si 112)
centre comerciale (Kaufland, Lidl, Mega Image, Carrefour, Mall Baneasa, Ikea, etc)
-gradinite
-farmacii
-restaurante
-parcul Herastrau la 15 minute de mers cu masina
-sala de fitness Ramada Vitality cu piscina exterioara, bazin de înot interior si terenuri de tenis
-Universitatea Bioterra
-domeniul medical Regina Maria si altele.

Certificatul energetic va fi disponibil la momentul vanzarii.

Pentru mai multe informatii sau programarea unei vizionari, va rog sa ma contactati.

An constructie 2023

Suprafata construita 99.93 mp

Suprafata utila 85.12 mp

Suprafata terasa 9 mp

Regim Inaltime 3 / 6

Etaj 3

Nr. camere 3 camere

Nr. bai 2

Nr. balcoane 2 balcoane

Confort 1

Tip constructie In bloc

Status constructie Finalizat

Disponibila incepand cu 2022-12-04

Judet Bucuresti

Oras/ Sector Sector 1

Zona Sisesti

Gps lat 44.502443

Gps lng 26.056542

Complex rezidential Sisesti 1 Residence

Internet prin fibra optica

Cablu TV

Curent electric

Geamuri termopan

Parchet

Apometre

Gresie

Loc parcare subteran

Faianta

Gaz

Loc parcare exterior

Incalzire proprie

Aer conditionat

Comision Zero Direct Dezvoltator 3 Camere Sisesti

Proprietate vanduta

Ai o proprietate similara? Vinde-o cu noi.
Vinde apartament

Cod: REA1011284

Proprietati similare

Bucuresti, Baneasa, Sisesti

Apartament, 3 camere

89.46 mp 1 2024

189.000 EUR

Detalii

Bucuresti, Herastrau

Apartament, 3 camere

67.94 mp 4 1986

195.000 EUR

Detalii

Bucuresti, Baneasa

3 camere cu loc parcare exterior inclus

99 mp 4 2012

168.000 EUR

Detalii

Bucuresti, Bucurestii Noi

Apartament, 3 camere

75 mp 2 2010

167.100 EUR

Detalii

Bucuresti, Bucurestii Noi

Apartament, 3 camere

71 mp 1 2024

173.600 EUR

Detalii

Bucuresti, Centura Nord, Dn 1

3 camere cu loc parcare exterior inclus

110 mp 1 2013

178.000 EUR

Detalii

Bucuresti, Baneasa, Sisesti

Apartament, 3 camere

77.38 mp 3 2008

187.000 EUR

Detalii

Bucuresti, Aviatiei

Apartament, 3 camere

69 mp 1 2026

177.522 EUR

Detalii
Apartamente 3 camere vandute in Baneasa, Bucuresti Apartamente 3 camere de vanzare in Baneasa, Bucuresti

Afla primul de cele mai bune oferte
inainte sa ajunga pe piata

Aboneaza-te la newsletter

Aboneaza-te la notificari