3 camere cu loc parcare subteran inclus, Bucuresti / Baneasa / Sisesti
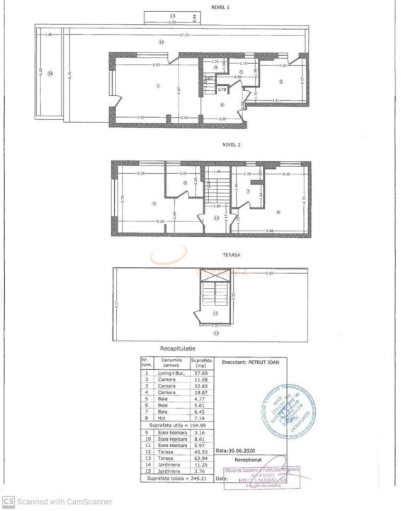
Apartamentul este decomandat cu o suprafata totala de 246 mp, din care suprafata utila este de 105 mp.
Terasa are 45 de mp si rooftopul 63 mp cu un view impresionant.
Imobilul beneficiaza de dotari si finisaje de lux creand un ambient sofisticat si rafinat. Se vinde complet mobilat si utilat.
Acest apartament de lux este amplasat la ultimul nivel al unui imobil de P+6 ?i ofera acces rapid la toate facilitatile din zona, centrele comerciale Baneasa si Promenada, restaurante, scoli, gradinite etc.
In pretul apartamentului sunt incluse si 2 locuri de parcare.
Pentru mai multe detalii contactul meu va sta la dispozitie!
Atribute
An constructie 2019
Suprafata construita 246 mp
Suprafata utila 105 mp
Regim Inaltime 6 / 6
Etaj 6
Nr. camere 3 camere
Nr. bai 3
Nr. balcoane 0 balcoane
Confort 1
Compartimentare Decomandat
Tip constructie In bloc
Status constructie Finalizat
Disponibila incepand cu 2024-03-19
Judet Bucuresti
Oras/ Sector Sector 1
Zona Sisesti
Gps lat 44.502656
Gps lng 26.050508
Nr. terase 2
Clasa energetica 1
Facilitati
Curent electric
Internet prin fibra optica
Sistem de alarma
Interfon
Parchet
Gresie
Loc parcare subteran
Incalzire prin pardoseala
Mobilat
Aer conditionat
Bucatarie mobilata
Lift
Duplex cu rooftop 3 camere Baneasa Sisesti
Proprietate vanduta
Ai o proprietate similara? Vinde-o cu noi.
  Vinde apartament  
 
  
  
  
  
  
  
  
  
  
  
  
  
  
  
  
  
   
   
   
   
   
  
  
   
   
   
   
   
  
  
   
   
   
   
   
  
  
   
   
   
   
   
  
  
   
   
   
   
   
  
  
   
   
   
   
   
  
   
   
   
   
   
  
  
   
   
   
  