Apartament, 2 camere, Bucuresti / Bucurestii Noi / Straulesti
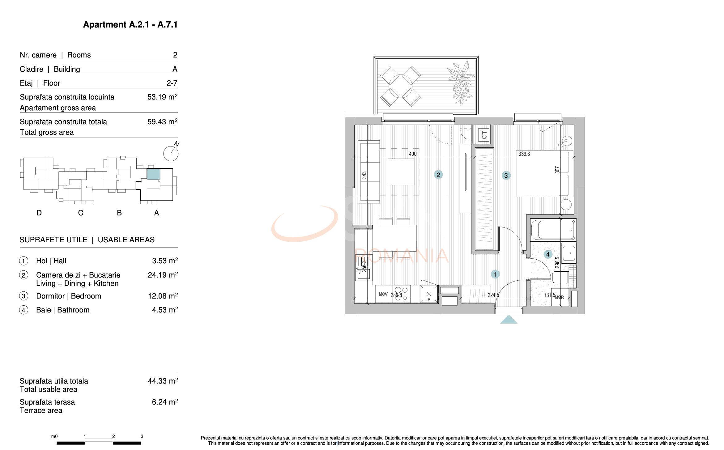
Configuratia apartamentului asigura doua spatii bine definite: zona de zi de 24,19 metri patrati, cu living, dining si bucatarie deschisa, si o zona de noapte, cu un dormitor de 12,08 metri patrati, pentru o suprafata utila totala de 50,57 metri patrati dintre care 6,24 ii constituie terasa.
Printre beneficiile acestei proprietati includ complexul cu acces securizat, poarta cu bariera, portar si peste 150 de locuri de parcare subterane, precum si locuri de parcare pentru vizitatori la parter.
Spatii verzi frumos amenajate in curtea ansamblului rezidential completeaza experienta, iar finisajele de inalta calitate si varietatea de tipuri de apartamente satisfac toate preferintele.
Lifturile de ultima generatie si sistemul de supraveghere video asigura confortul si securitatea, iar terasele generoase aduc un plus de relaxare.
*Pardoseala este acoperita temporar pentru a proteja parchetul triplu stratificat din lemn.
Aveti posibilitatea de a achizitiona un loc de parcare suprateran la pretul de 13,500 EUR + TVA sau subteran la 16,000 EUR + TVA.
Pentru persoane fizice la pretul afisat se adauga TVA, iar pentru achizitia pe persoana juridica, se aplica taxare inversa.
Certificatul energetic va fi disponibil la data semnarii contractului de vanzare-cumparare.
Contactati-ne acum pentru mai multe detalii si pentru a programa o vizionare a acestei proprietati atractive!
Atribute
An constructie 2022
Suprafata construita 59.43 mp
Suprafata utila 44.33 mp
Suprafata terasa 6.24 mp
Regim Inaltime 5 / 8
Etaj 5
Nr. camere 2 camere
Nr. bai 1
Nr. balcoane 0 balcoane
Confort Lux
Compartimentare Decomandat
Tip constructie In bloc
Status constructie Finalizat
Disponibila incepand cu 2024-02-13
Judet Bucuresti
Oras/ Sector Sector 1
Zona Straulesti
Gps lat 44.489800
Gps lng 26.067157
Complex rezidential Ansamblu rezidential Escape Residence
Nr. terase 1
Facilitati
Curent electric
Internet Wireless
Internet prin cablu
Internet prin Dial-Up
Supraveghere video
Cablu TV
Internet prin fibra optica
Interfon
Supraveghere 24/7
Geamuri termopan
Parchet
Apometre
Gresie
Telefon
Loc parcare subteran
Faianta
Gaz
Loc parcare exterior
Incalzire prin pardoseala
Incalzire proprie
Aer conditionat
Bloc reabiliat termic
Lift
Direct de la Dezvoltator Apartament 2 camere I Comision 0
Proprietate vanduta
Ai o proprietate similara? Vinde-o cu noi.
  Vinde apartament  
 
  
  
  
  
  
  
  
  
  
  
  
  
  Ansamblu rezidential Escape Residence
 Ansamblu rezidential Escape Residence  
  
   
   
   
   
   
  
  
   
   
   
   
   
  
  
   
   
   
   
   
  
  
   
   
   
   
   
  
  
   
   
   
   
   
  
  
   
   
   
   
   
  
  
   
   
   
   
   
  
  
   
   
   
   
  