Straulesti 3 camere 87 mp 2 2020

SVN Romania va propune spre vanzare un apartament deosebit de spatios de 3 camere situat in zona Straulesti.

Acest apartament face parte dintr-un proiect premium ce beneficiaza de zona verde amenajata cu loc de joaca pentru copii, doua piscine si spatiu verde cu numeroase zone de relaxare.

Apartamentul se vinde complet mobilat si utilat cu un loc de parcare exterior inclus.

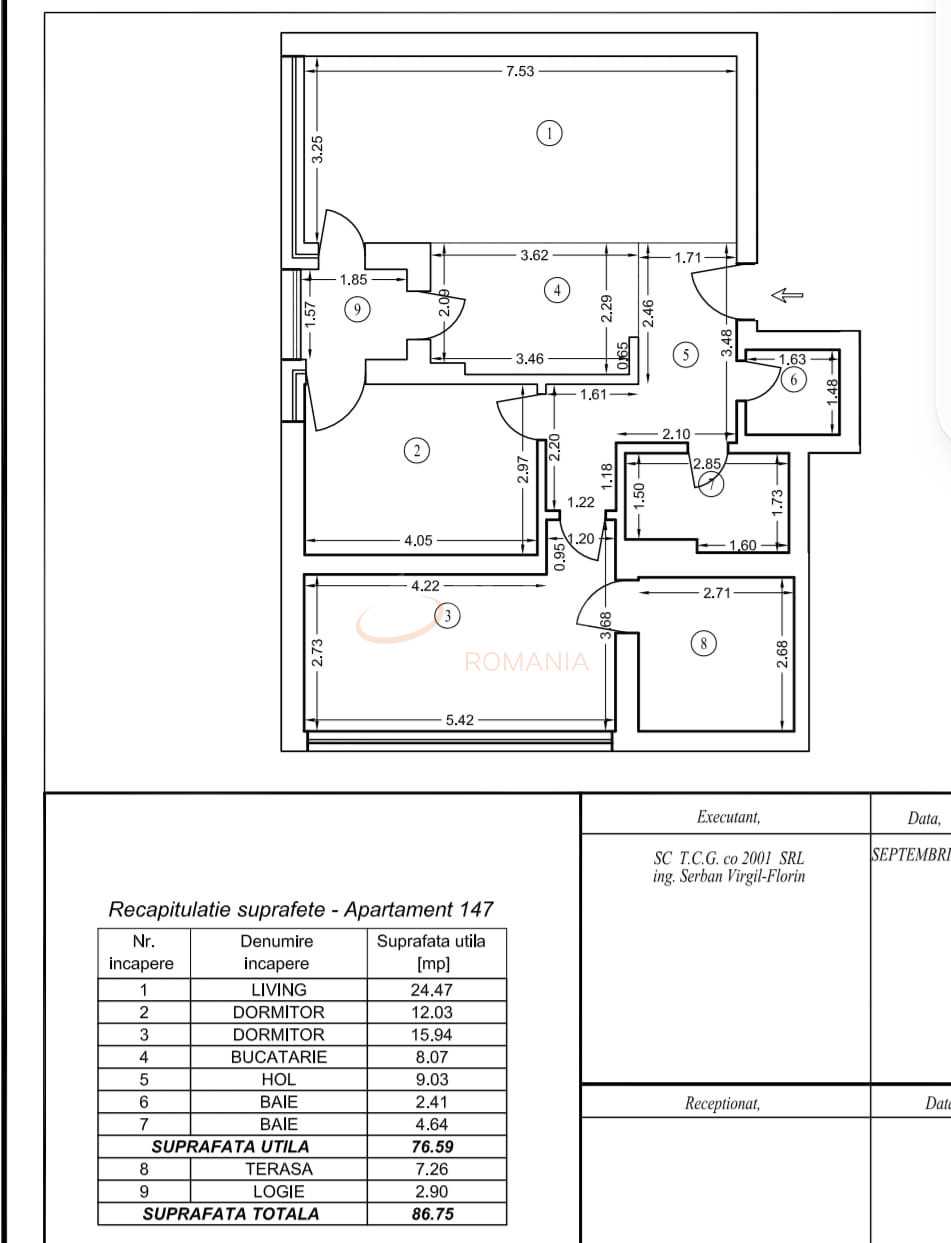
Suprafata totala este de 87mp din care suprafata utila 77 mp, o terasa de 7 mp si o logie de 2,5 mp.

Compartimentarea este urmatoarea: camera de zi cu bucatarie deschisa si iesire pe balcon, doua dormitoare unul cu iesire pe terasa, si doua bai.

Proprietaa beneficiaza de incalzire proprie prin pardoseala si aparate de aer conditionat in fiecare camera.

In imediata apropiere regasim centre comerciale :Mall Colosseum etc.


Pentru informatii suplimentare si vizionari va stau la dispozitie.

An constructie 2020

Suprafata construita 95 mp

Suprafata utila 87 mp

Suprafata terasa 7 mp

Regim Inaltime 2 / 3

Etaj 2

Nr. camere 3 camere

Nr. bai 2

Nr. balcoane 1 balcon

Confort 1

Compartimentare Decomandat

Tip constructie In bloc

Status constructie Finalizat

Disponibila incepand cu 2023-04-29

Judet Bucuresti

Oras/ Sector Sector 1

Zona Straulesti

Gps lat 44.496756

Gps lng 26.002284

Nr. terase 1

Cablu TV

Internet Wireless

Supraveghere video

Curent electric

Supraveghere 24/7

Internet prin cablu

Detector de gaze

Geamuri termopan

Repartitoare

Balcon inchis

Parchet

Apometre

Gresie

Faianta

Gaz

Loc parcare exterior

Incalzire proprie

Incalzire prin pardoseala

WC serviciu

Mobilat

Aer conditionat

Bucatarie mobilata

Lift

Apartament 3 camere Atria Straulesti

Proprietate vanduta

Ai o proprietate similara? Vinde-o cu noi.
Vinde apartament

Cod: REA1014735

Proprietati similare

Bucuresti, Bucurestii Noi

Apartament, 3 camere

73 mp 4 2024

158.000 EUR

Detalii

Bucuresti, Bucurestii Noi, Chitila

Apartament, 3 camere

87 mp 1 2025

150.000 EUR

Detalii

Bucuresti, Bucurestii Noi, Pajura

Apartament, 3 camere

63.71 mp 1 1963

154.000 EUR

Detalii

Bucuresti, Baneasa

3 camere cu loc parcare exterior inclus

102 mp 3 2012

155.000 EUR

Detalii

Bucuresti, Militari, Piata Gorjului

Apartament, 3 camere

65 mp P 1979

135.000 EUR

Detalii

Bucuresti, Militari, Gorjului

Apartament, 3 camere

64.5 mp 4 1984

135.000 EUR

Detalii
Exclusiv Discount

Bucuresti, 1 Mai, Titulescu

Apartament, 3 camere

70 mp 8 1976

145.900 EUR

Detalii

Bucuresti, Militari, Politehnica

Apartament, 3 camere

64 mp 2 1970

135.000 EUR

Detalii
Apartamente 3 camere vandute in Bucurestii Noi, Bucuresti Apartamente 3 camere de vanzare in Bucurestii Noi, Bucuresti

Afla primul de cele mai bune oferte
inainte sa ajunga pe piata

Aboneaza-te la newsletter

Aboneaza-te la notificari