Straulesti 3 camere 68.39 mp 4 2022

SVN Romania va prezinta un apartament de 3 camere dintr-un complex rezidential din nordul Bucurestiului, amplasat perfect intr-o zona verde, aerisita si linistita, cu acces facil catre principalele zone de interes, oferind privelisti spectaculoase si unice din fiecare apartament.

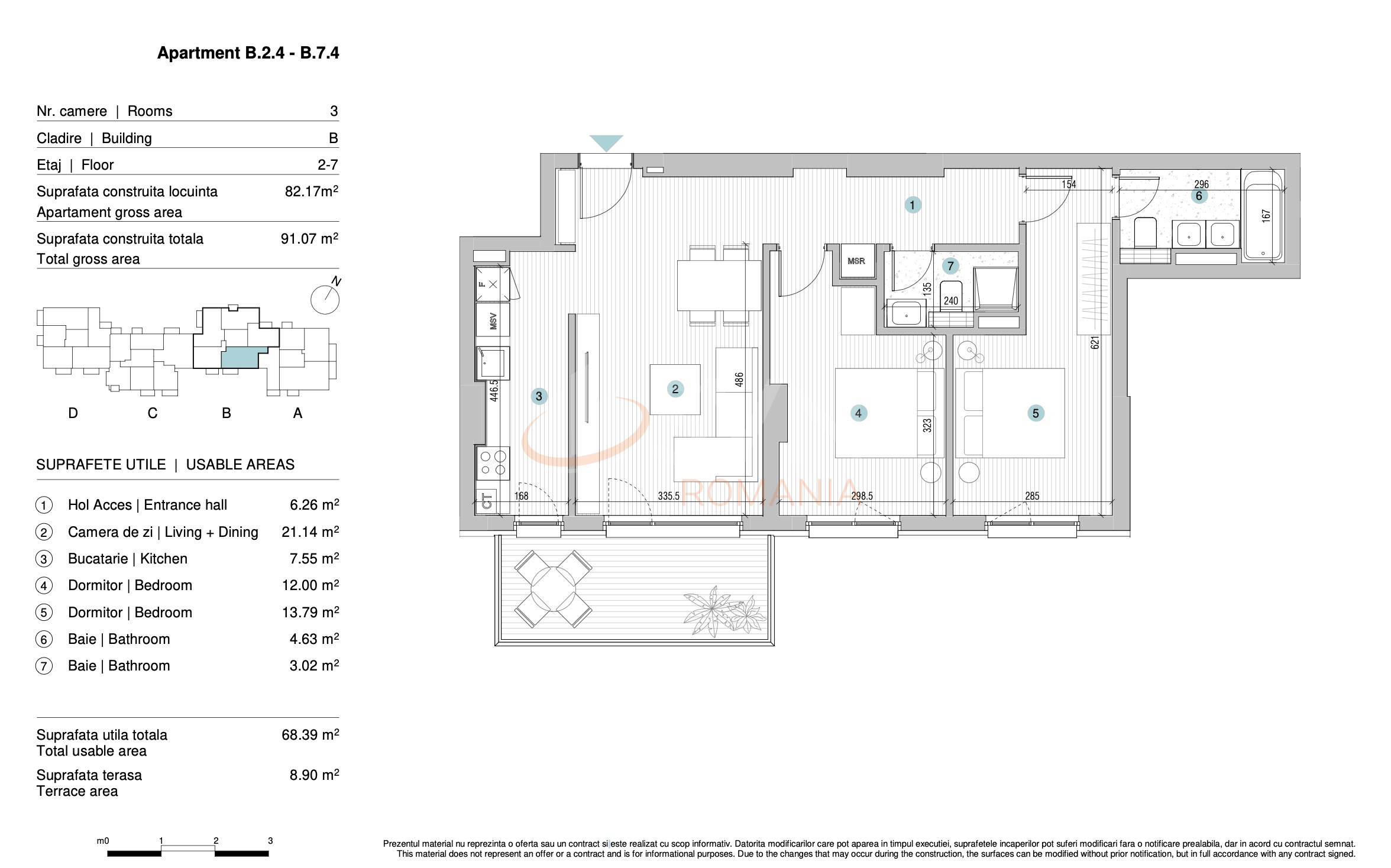
Configuratia apartamentului asigura doua spatii bine definite: zona de zi de 21,14 metri patrati, cu living si dining, bucatarie inchisa de 7,55 metri patrati, si o zona de noapte, cu 1 dormitor de 13,79 metri patrati si altul de 12,00 metri patrati, si 2 grupuri sanitare, pentru o suprafata utila totala de 77,29 metri patrati dintre care 8,90 metri patrati ii constituie terasa.

Printre beneficiile acestei proprietati includ complexul cu acces securizat, poarta cu bariera, portar si peste 150 de locuri de parcare subterane, precum si locuri de parcare pentru vizitatori la parter.

Spatii verzi frumos amenajate in curtea ansamblului rezidential completeaza experienta, iar finisajele de inalta calitate si varietatea de tipuri de apartamente satisfac toate preferintele.

Lifturile de ultima generatie si sistemul de supraveghere video asigura confortul si securitatea, iar terasele generoase aduc un plus de relaxare.

*Pardoseala este acoperita temporar pentru a proteja parchetul triplu stratificat din lemn.

Aveti posibilitatea de a achizitiona un loc de parcare suprateran la pretul de 13,500 EUR + TVA sau subteran la 16,000 EUR + TVA.

Pentru persoane fizice la pretul afisat se adauga TVA, iar pentru achizitia pe persoana juridica, se aplica taxare inversa.

Certificatul energetic va fi disponibil la data semnarii contractului de vanzare-cumparare.

Contactati-ne acum pentru mai multe detalii si pentru a programa o vizionare a acestei proprietati atractive!

An constructie 2022

Suprafata construita 91.07 mp

Suprafata utila 68.39 mp

Suprafata terasa 8.9 mp

Regim Inaltime 4 / 8

Etaj 4

Nr. camere 3 camere

Nr. bai 2

Nr. balcoane 0 balcoane

Confort Lux

Compartimentare Decomandat

Tip constructie In bloc

Status constructie Finalizat

Disponibila incepand cu 2024-02-13

Judet Bucuresti

Oras/ Sector Sector 1

Zona Straulesti

Gps lat 44.488373

Gps lng 26.067207

Complex rezidential Ansamblu rezidential Escape Residence

Nr. terase 1

Cablu TV

Internet prin fibra optica

Interfon

Supraveghere 24/7

Curent electric

Internet Wireless

Internet prin cablu

Internet prin Dial-Up

Supraveghere video

Geamuri termopan

Parchet

Apometre

Gresie

Telefon

Faianta

Gaz

Incalzire proprie

Incalzire prin pardoseala

WC serviciu

Aer conditionat

Bloc reabiliat termic

Lift

I Direct Dezvoltator Apartament 3 camere I 0 Comision

Proprietate vanduta

Ai o proprietate similara? Vinde-o cu noi.
Vinde apartament

Cod: REA1018321

Proprietati similare

Bucuresti, Herastrau

Apartament, 3 camere

67.94 mp 4 1986

195.000 EUR

Detalii

Bucuresti, Baneasa

Apartament, 3 camere

65 mp 4 1983

199.000 EUR

Detalii

Bucuresti, Aviatiei

Apartament, 3 camere

79 mp P 2010

199.000 EUR

Detalii

Bucuresti, Aviatiei

Apartament, 3 camere

73 mp 4 2026

187.322 EUR

Detalii

Bucuresti, Aviatiei

Apartament, 3 camere

71.5 mp 3 2027

185.000 EUR

Detalii

Bucuresti, Aviatiei

Apartament, 3 camere

68.9 mp 3 2027

190.000 EUR

Detalii

Bucuresti, Bucurestii Noi

Apartament, 3 camere

71 mp 1 2024

173.600 EUR

Detalii

Bucuresti, Bucurestii Noi

Apartament, 3 camere

75 mp 2 2010

167.100 EUR

Detalii
Apartamente 3 camere vandute in Bucurestii Noi, Bucuresti Apartamente 3 camere de vanzare in Bucurestii Noi, Bucuresti

Afla primul de cele mai bune oferte
inainte sa ajunga pe piata

Aboneaza-te la newsletter

Aboneaza-te la notificari