Barbu Vacarescu 3 camere 88 mp 2 2022

Va prezentam o oportunitate de investitie: apartament 3 camere, in complexul rezidential NUSCO City.

Complexul este dezvoltat pe o suprafata totala de 23 de hectare în zona de Nord a Bucurestiului si beneficiza de parc interior amenajat, fatade cu accente de lemn natur, terase generoase si finisaje premium.

Situat in nordul orasului, chiar in inima zonei de business a Bucurestiului si in imediata apropiere a zonelor Aviatiei si Floreasca, prima faza a ansamblului este construita intre statiile de metrou Pipera si Aurel Vlaicu, la mica distanta de Promenada Mall si de cele mai mari cladiri de birouri din zona.

Pentru mai multe detalii si vizionari va rog sa ma contactati.

An constructie 2022

Suprafata construita 105 mp

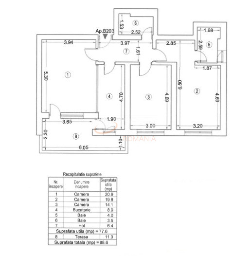
Suprafata utila 88 mp

Suprafata terasa 11 mp

Regim Inaltime 2 / 9

Etaj 2

Nr. camere 3 camere

Nr. bai 1

Nr. balcoane 1 balcon

Confort Lux

Tip constructie In bloc

Status constructie Finalizat

Disponibila incepand cu 2022-12-21

Judet Bucuresti

Oras/ Sector Sector 2

Zona Barbu Vacarescu

Gps lat 44.481640

Gps lng 26.109472

Complex rezidential ENCORE ASSETS

Curent electric

Supraveghere video

Interfon

Cablu TV

Detector de gaze

Internet prin cablu

Geamuri termopan

Repartitoare

Parchet

Gresie

Faianta

Gaz

Incalzire proprie

WC serviciu

Aer conditionat

Lift

Apartament 3 camere Nusco City

Proprietate vanduta

Ai o proprietate similara? Vinde-o cu noi.
Vinde apartament

Cod: REA1013449

Proprietati similare

Bucuresti, Aviatiei

Apartament, 3 camere

73 mp 4 1984

214.500 EUR

Detalii

Bucuresti, Aviatiei

Apartament, 3 camere

68 mp 2 1985

199.900 EUR

Detalii

Bucuresti, Floreasca, Barbu Vacarescu

Apartament, 3 camere

67 mp 4 2024

204.000 EUR

Detalii

Bucuresti, Aviatiei

3 camere cu loc parcare exterior inclus

74.8 mp 3 1986

205.000 EUR

Detalii

Bucuresti, Aviatiei

3 camere cu loc parcare exterior inclus

75.8 mp 4 1987

205.000 EUR

Detalii

Bucuresti, Aviatiei

Apartament, 3 camere

65 mp 2 1986

207.000 EUR

Detalii

Bucuresti, Floreasca, Barbu Vacarescu

Apartament, 3 camere

71 mp 2 2026

216.350 EUR

Detalii

Bucuresti, Floreasca, Barbu Vacarescu

Apartament, 3 camere

92.2 mp 2 2026

216.966 EUR

Detalii
Apartamente 3 camere vandute in Floreasca, Bucuresti Apartamente 3 camere de vanzare in Floreasca, Bucuresti

Afla primul de cele mai bune oferte
inainte sa ajunga pe piata

Aboneaza-te la newsletter

Aboneaza-te la notificari